Wohnung in Wien
Provisionsfreie Terassenwohnung in Ruhelage
auf der Karte ansehenUmzugskosten berechnen
- Kaltmiete
- 999,27 €
- Zimmer
- 2
- Fläche
- 67 m²
3758 Aufrufe
Objekt-ID: 22815263
| Objekttyp: | Wohnung |
| Zimmer: | 2 |
| Größe: | 67.00 m² |
| Etage: | 1 |
| Frei ab: | keine Angabe |
Preise & Kosten
| Miete (netto): | 999,27 € |
| Gesamtmiete: |
999,27 € |
| Preis/m²: | 14,91 € |
| Mit Mietspiegel Wien vergleichen | |
| Kaution: | 6000 € |
Immobilie
Terrasse
Einbauküche
Aufzug
Keller
Neubau
Tiere erlaubt
Behindertengerecht
Teilmöbliert
| Baujahr: | 2018 |
| Qualität der Ausstattung: | Luxus |
| Objektzustand: | gepflegt |
| Befeuerungsart: | Fussbodenheizung |
| Energieausweis: | Verbrauchsausweis |
| Endenergiebedarf: | 30,30 kWh/(m²*a) |
| Energieeffizienzklasse: | A |
Objektbeschreibung
Neuwertige und exklusiv ausgestattete Terrassenwohnung (Hoflage) mit Designerküche (Mielegeräte), Fußbodenheizung und Parkettböden in neu erschlossener Wohngegend gelangt provisionsfrei zur Vermietung.
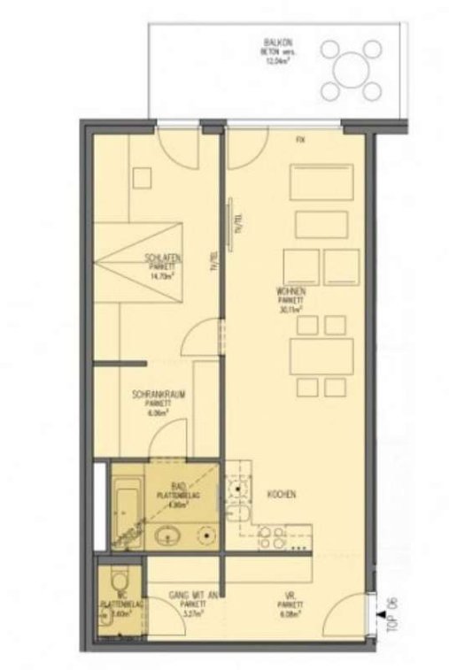
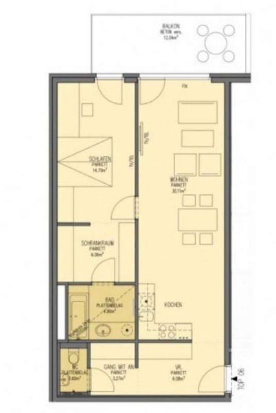
Die Wohnung teilt sich folgendermaßen auf:
- Vorraum inkl. Gaderobennische
- Wohnküche (ca. 31 m²)
- Schlafzimmer (ca. 15 m²)
- Schrankraum (ca. 6 m²)
- Designerbad mit Wanne, Duschwand, Waschbecken und Handtuchtrockner
- separates WC mit Handwaschbecken.
- Terrasse (ca. 12 m²)
- Kellerabteil
Ausstattung:
- Designerküche mit Mielegeräten (Geschirrspüler, Dunstabzug, Backofen, Kühlschrank, Ceran Kochfeld)
- Wohnräume mit hochwertigen Parkettböden
- Designereinrichtung im Bad
- Innenjalousien
- Fußbodenheizung
- Wärmegedämmte Isolierglasfenster
- Bäder, Nassräume, Vorraum verfliest mit hochwertigen Feinsteinzeugfliesen
- Kabel/ Satelliten TV in allen Räumen
- Waschküche und Fahrradabstellraum im Haus vorhanden
Die Wohnung teilt sich folgendermaßen auf:
- Vorraum inkl. Gaderobennische
- Wohnküche (ca. 31 m²)
- Schlafzimmer (ca. 15 m²)
- Schrankraum (ca. 6 m²)
- Designerbad mit Wanne, Duschwand, Waschbecken und Handtuchtrockner
- separates WC mit Handwaschbecken.
- Terrasse (ca. 12 m²)
- Kellerabteil
Ausstattung:
- Designerküche mit Mielegeräten (Geschirrspüler, Dunstabzug, Backofen, Kühlschrank, Ceran Kochfeld)
- Wohnräume mit hochwertigen Parkettböden
- Designereinrichtung im Bad
- Innenjalousien
- Fußbodenheizung
- Wärmegedämmte Isolierglasfenster
- Bäder, Nassräume, Vorraum verfliest mit hochwertigen Feinsteinzeugfliesen
- Kabel/ Satelliten TV in allen Räumen
- Waschküche und Fahrradabstellraum im Haus vorhanden
Bewerbermappe
Jetzt Bewerbermappe erstellen
Lage
Adolf-Czettel-Gasse1160 Wien
Wien
Der aktuelle durchschnittliche Quadratmeterpreis beträgt 18,65 €/m² in Wien.
Mit Mietspiegel
Wien vergleichen
Was kostet dein Umzug?
Du planst einen Umzug? Finde jetzt die günstigste Umzugsfirma in deiner Region!
Umzugskosten berechnen Schütze dich vor Betrug!
Leiste keinerlei Zahlung im Vorraus!
Beachte unsere Sicherheitshinweise zum Thema Immobilienbetrug und lies, woran du solche Anzeigen erkennen kannst und wie du dich vor Betrügern schützt.
Anzeige melden Beachte unsere Sicherheitshinweise zum Thema Immobilienbetrug und lies, woran du solche Anzeigen erkennen kannst und wie du dich vor Betrügern schützt.
*Anzeige
Ähnliche Wohnungen bei ImmoScout24
Wien
- Miete
- 850 €
- Zimmer
- 2 Zi.
- Fläche
- 60 Zi.
Anbieter
privater AnbieterWeitere Ergebnisse für:
Wohnungen
Wien;
Immobilien
Wien;
Haus mieten
Wien;
Wohnung
Wien kaufen;
Haus kaufen
Wien;
Immobilienpreise
Wien Mietspiegel
Wien wohnungsboerse.net übernimmt keine Gewähr für von Dritten gemachte Angaben








