Eigentumswohnung in Wien
Vermiete ruhige, gepflegte, sonnige Stadtwohnung ab April 2023
auf der Karte ansehenUmzugskosten berechnen
- Kaltmiete
- 832 €
- Zimmer
- 3
- Fläche
- 77 m²
9531 Aufrufe
Objekt-ID: 28408165
| Objekttyp: | Eigentumswohnung |
| Zimmer: | 3 |
| Größe: | 77.00 m² |
| Etage: | 3 |
| Frei ab: | 30.04.23 |
Preise & Kosten
| Miete (netto): | 832 € |
| Betriebskosten: | 245 € |
| Heizkosten: | 50 € |
| Gesamtmiete: |
1.127 € |
| Preis/m²: | 10,81 € |
| Mit Mietspiegel Wien vergleichen | |
| Kaution: | 3000,00 |
Immobilie
Terrasse
Garten
Dachterrasse
Einbauküche
Aufzug
Keller
Altbau
WG geeignet
Teilmöbliert
Wohnen auf Zeit
| Baujahr: | 1935 |
| Objektzustand: | gepflegt |
| Befeuerungsart: | Fernwärme |
| Energieausweis: | Verbrauchsausweis |
| Energieverbrauchskennwert: | 56,00 kWh/(m²*a) |
| Energieverbrauch für Warmwasser enthalten? | Ja |
Objektbeschreibung
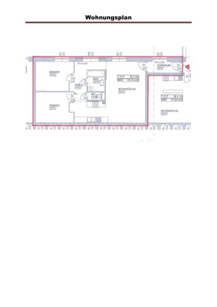
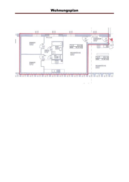
Vermietet wird eine helle, ca.77 m2 gr. 3-Zimmer-Wohnung (innerhalb des Wr. Gürtels)im 3.OG, bestehend aus Eingangsbereich, einem großzügigen Wohnzimmer, zwei geräumigen Schlaf-/Arbeitszimmern (ca 13m2), einem Küchenabteil sowie einem Bad mit getrenntem WC. Der Küchenblock ist im Wohnbereich integriert und verfügt über neuwertige Einbaugeräte, zB E-Herd, Geschirrspüler, Kombi-Gefrierschrank. Die Nebenräume sind verfließt. Alle Zimmer sind baulich voneinander getrennt, verfügen (mit Ausnahme des WC) über natürliches Tageslicht (durch raumhohe Fenster) und sind mit robusten Holzparkettböden versehen. Alle notwendigen Anschlüsse, zB Telefon, SAT, Kabel (Magenta), sind in den Wohnräumen vorhanden. Die Wohnung wird mit Fernwärme beheizt (Energieausweis ist vorhanden). Durch die Wohnungslage besteht ein geringer Energiebedarf. Zur Wohnung gehört auch ein eigenes Kellerabteil. Im Übrigen befindet sich die Miet-Wohnung in einem Wohnhaus unter Denkmalschutz, welches außerdem über eine große, neu renovierte Dachterrasse (mit eigenen Gartenmöbeln) sowie Tiefgaragenplätze verfügt. Im Erdgeschoß befindet sich ein Lebensmittelmarkt.
Das Haus (mit einer außergewöhnlichen Fassade) liegt in einer verkehrsberuhigten Zone innerhalb des Gürtels – in unmittelbarer Nähe zum Matzleinsdorfer Platz / Wiedner Hauptstraße / Reinprechtsdorferstraße, somit in einer sehr verkehrsgünstigen Gegend mit fußläufiger Anbindung zur U-Bahn (U4), zu den Str-Bahnen 6,18,62, zur Buslinie 12A sowie zu den S-Bahnen.
Das Haus (mit einer außergewöhnlichen Fassade) liegt in einer verkehrsberuhigten Zone innerhalb des Gürtels – in unmittelbarer Nähe zum Matzleinsdorfer Platz / Wiedner Hauptstraße / Reinprechtsdorferstraße, somit in einer sehr verkehrsgünstigen Gegend mit fußläufiger Anbindung zur U-Bahn (U4), zu den Str-Bahnen 6,18,62, zur Buslinie 12A sowie zu den S-Bahnen.
Bewerbermappe
Jetzt Bewerbermappe erstellen
Lage
Obere Amtshausgasse1050 Wien
Wien
Der aktuelle durchschnittliche Quadratmeterpreis beträgt 18,45 €/m² in Wien.
Mit Mietspiegel
Wien vergleichen
Was kostet dein Umzug?
Du planst einen Umzug? Finde jetzt die günstigste Umzugsfirma in deiner Region!
Umzugskosten berechnen Schütze dich vor Betrug!
Leiste keinerlei Zahlung im Vorraus!
Beachte unsere Sicherheitshinweise zum Thema Immobilienbetrug und lies, woran du solche Anzeigen erkennen kannst und wie du dich vor Betrügern schützt.
Anzeige melden Beachte unsere Sicherheitshinweise zum Thema Immobilienbetrug und lies, woran du solche Anzeigen erkennen kannst und wie du dich vor Betrügern schützt.
*Anzeige
Ähnliche Wohnungen bei ImmoScout24
Wien
- Miete
- 700 €
- Zimmer
- 3 Zi.
- Fläche
- 70 Zi.
Anbieter
privater AnbieterWeitere Ergebnisse für:
Wohnungen
Wien;
Immobilien
Wien;
Haus mieten
Wien;
Wohnung
Wien kaufen;
Haus kaufen
Wien;
Immobilienpreise
Wien Mietspiegel
Wien wohnungsboerse.net übernimmt keine Gewähr für von Dritten gemachte Angaben
















