
Wohnung in Wien
Objekt nicht gefunden
auf der Karte ansehenUmzugskosten berechnen
- Gesamtmiete
- 680 €
- Zimmer
- 2
- Fläche
- 49 m²
8 Aufrufe
Objekt-ID: 38867377
| Objekttyp: | Wohnung |
| Zimmer: | 2 |
| Größe: | 49.00 m² |
| Frei ab: | keine Angabe |
Immobilie
Einbauküche
Keller
Altbau
Objektbeschreibung
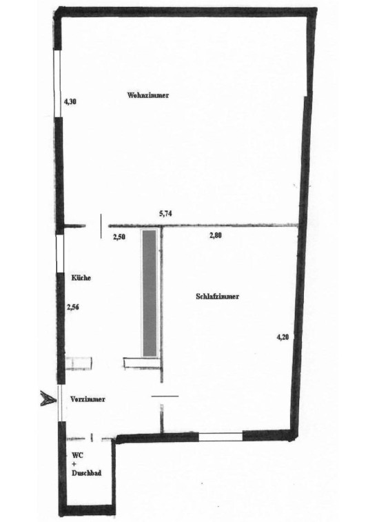
Nachmieter gesucht – helle 2-Zimmer-Altbauwohnung Nähe U6 Jägerstraße (1200 Wien)
Ich suche ab Dezember 2025 einen Nachmieter für meine schöne Altbauwohnung im 3. Stock (ohne Lift) in 1200 Wien, nur ca. 4 Gehminuten von der U6-Station Jägerstraße entfernt.
Details:
• 49,22 m² Wohnfläche
• € 681,17 brutto (inkl. Betriebskosten)
• Kaution: 4 Monatsmieten
• Befristet auf 5 Jahre, Verlängerung möglich
• 3. Stock ohne Lift
Ausstattung:
• Küchenzeile inkl. Gasherd und Ofen (wie am Foto)
• Helle Räume mit Altbaucharme
Lage:
• U6 Jägerstraße (4 Minuten zu Fuß)
• Straßenbahn: 31, 33, 5 - Bus: 5B, 37A, N31
• Supermärkte in unmittelbarer Nähe (BILLA, SPAR, HOFER, Asiamarkt)
Erreichbarkeit:
• Innenstadt (Stephansplatz): ca. 15–20 Minuten
• Westbahnhof: ca. 20 Minuten
• Uni Wien: ca. 18 Minuten
• TU Wien / WU Wien: ca. 25 Minuten
Die Wohnung eignet sich ideal für Studierende oder Berufstätige, die eine gut angebundene, helle Wohnung in zentraler Lage suchen. Bezug ab Dezember möglich.
Ich suche ab Dezember 2025 einen Nachmieter für meine schöne Altbauwohnung im 3. Stock (ohne Lift) in 1200 Wien, nur ca. 4 Gehminuten von der U6-Station Jägerstraße entfernt.
Details:
• 49,22 m² Wohnfläche
• € 681,17 brutto (inkl. Betriebskosten)
• Kaution: 4 Monatsmieten
• Befristet auf 5 Jahre, Verlängerung möglich
• 3. Stock ohne Lift
Ausstattung:
• Küchenzeile inkl. Gasherd und Ofen (wie am Foto)
• Helle Räume mit Altbaucharme
Lage:
• U6 Jägerstraße (4 Minuten zu Fuß)
• Straßenbahn: 31, 33, 5 - Bus: 5B, 37A, N31
• Supermärkte in unmittelbarer Nähe (BILLA, SPAR, HOFER, Asiamarkt)
Erreichbarkeit:
• Innenstadt (Stephansplatz): ca. 15–20 Minuten
• Westbahnhof: ca. 20 Minuten
• Uni Wien: ca. 18 Minuten
• TU Wien / WU Wien: ca. 25 Minuten
Die Wohnung eignet sich ideal für Studierende oder Berufstätige, die eine gut angebundene, helle Wohnung in zentraler Lage suchen. Bezug ab Dezember möglich.
Bewerbermappe
Jetzt Bewerbermappe erstellen
Lage
1200 WienWien
Der aktuelle durchschnittliche Quadratmeterpreis beträgt 18,45 €/m² in Wien.
Mit Mietspiegel
Wien vergleichen
Was kostet dein Umzug?
Du planst einen Umzug? Finde jetzt die günstigste Umzugsfirma in deiner Region!
Umzugskosten berechnen Schütze dich vor Betrug!
Leiste keinerlei Zahlung im Vorraus!
Beachte unsere Sicherheitshinweise zum Thema Immobilienbetrug und lies, woran du solche Anzeigen erkennen kannst und wie du dich vor Betrügern schützt.
Anzeige melden Beachte unsere Sicherheitshinweise zum Thema Immobilienbetrug und lies, woran du solche Anzeigen erkennen kannst und wie du dich vor Betrügern schützt.
Anbieter
Diese Anzeige ist momentan deaktiviert. Daher ist eine Kontaktaufnahme nicht möglich.
Weitere Ergebnisse für:
Wohnungen
Wien;
Immobilien
Wien;
Haus mieten
Wien;
Wohnung
Wien kaufen;
Haus kaufen
Wien;
Immobilienpreise
Wien Mietspiegel
Wien wohnungsboerse.net übernimmt keine Gewähr für von Dritten gemachte Angaben