
Wohnung in Graz
Objekt nicht gefunden
auf der Karte ansehenUmzugskosten berechnen
- Gesamtmiete
- 501,15 €
- Zimmer
- 1
- Fläche
- 31.3 m²
13 Aufrufe
Objekt-ID: 38900682
| Objekttyp: | Wohnung |
| Zimmer: | 1 |
| Größe: | 31.30 m² |
| Frei ab: | keine Angabe |
Immobilie
Balkon
Einbauküche
Aufzug
Keller
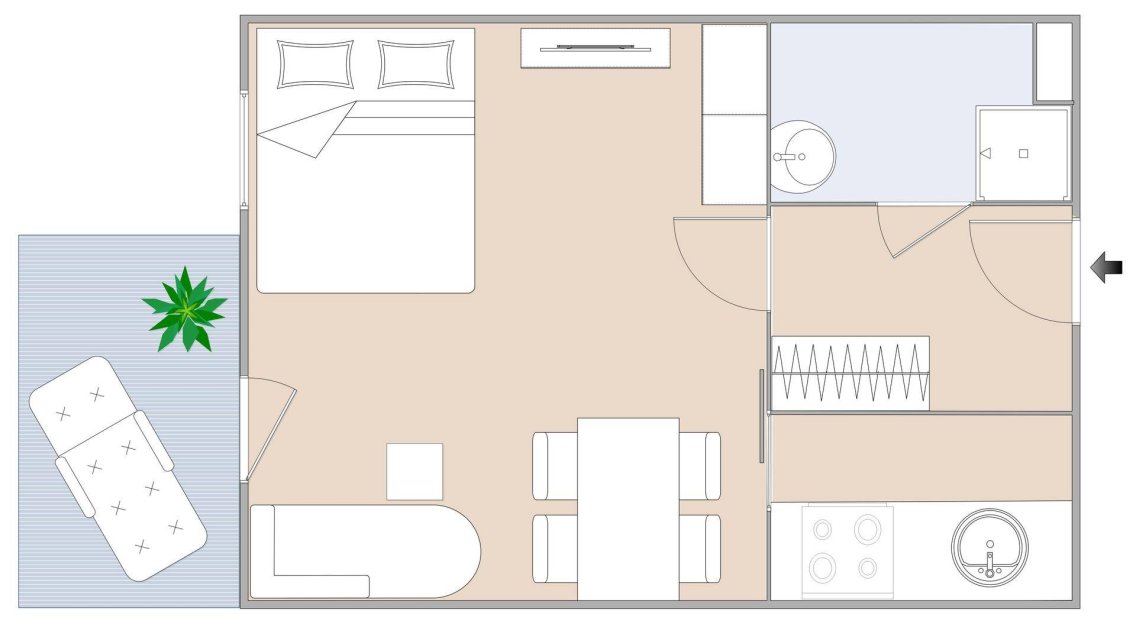
Objektbeschreibung
Kompakte Kleinwohnung mit Balkon und Vorraum
Diese äußerst preiswerte Kleinwohnung bietet auf 31,30 m² dennoch ausreichend Platz für individuelle Wohnbedürfnisse.
Der einladende Wohnraum bildet das Zentrum des neuen Zuhauses. Angrenzend befindet sich die praktische Küche, die Raum für kreative Kochabende bietet.
Der Vorraum sorgt dafür, dass Sie willkommen geheißen werden und Stauraum für Ihre Garderobe haben.
Im Badezimmer mit WC finden Sie alles, was Sie für den Start in den Tag benötigen.
Ein Highlight der Wohnung ist der Balkon, der zum Verweilen und Entspannen einlädt. Genießen Sie hier in der Abendsonne die frische Luft.
Praktischerweise gehört zu der Wohnung auch ein Kellerabteil, welches zusätzlichen Stauraum bietet.
MietdetailsMiete inkl. Betriebskosten EUR 501,15plus Heizung nach Verbrauchplus Strom nach VerbrauchKaution: EUR 1200,00provisionsfreiMietvertrag: 3 Jahre befristet
Facts Top 9a1. Stock31,30 m²4,50 m² Balkongetrennte KücheBad/WC mit WM-AnschlussTiefgarage ca. EUR 95,-
RäumeWohnraumKücheVorraumBad/WCKellerBalkonGarage
Adresse:
Mariatroster Straße 101, 101a-d
8044 Graz-Mariatrost
Mariatrost, einer der grünsten und idyllischsten Bezirke von Graz, bietet nicht nur Erholung inmitten von Natur und charmantem Ambiente, sondern auch eine erstklassige Anbindung an das öffentliche Verkehrsnetz.
Mit der Straßenbahnlinie 1 erreichen Sie das Stadtzentrum schnell und bequem, was Mariatrost zur idealen Wohnlage für Naturliebhaber macht, die gleichzeitig die Vorzüge urbaner Infrastruktur genießen möchten.
Parken
Es sind freie Plätze in der Tiefgarage vorhanden. Ca. EUR 95,- p.m.
Besichtigungstermine:
Samstag, 22. November, 12:15 UhrDienstag, 25. November, 16:15 Uhr
Melden Sie sich bitte hier zur Besichtigung an:
uhrturm.at/grazmaria101/9a
Bitte kopieren Sie den Link in Ihre Browser-Adresszeile und melden Sie sich über das Formular an!
Wir halten unsere Inserate immer auf dem neuesten Stand, daher ist auch dieses Objekt aktuell noch verfügbar.
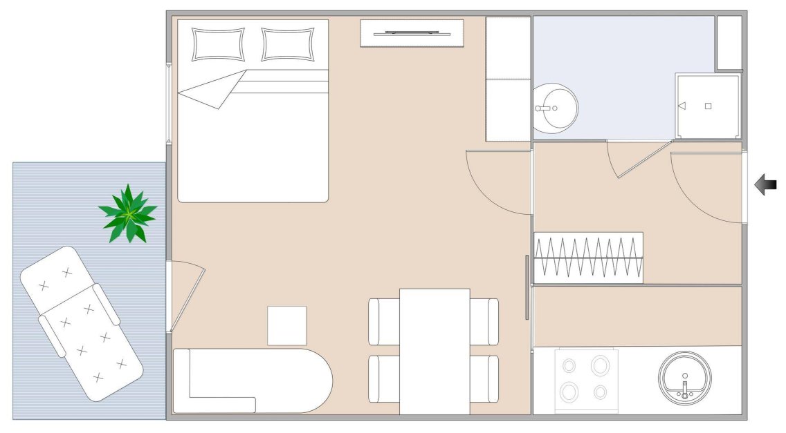
Diese äußerst preiswerte Kleinwohnung bietet auf 31,30 m² dennoch ausreichend Platz für individuelle Wohnbedürfnisse.
Der einladende Wohnraum bildet das Zentrum des neuen Zuhauses. Angrenzend befindet sich die praktische Küche, die Raum für kreative Kochabende bietet.
Der Vorraum sorgt dafür, dass Sie willkommen geheißen werden und Stauraum für Ihre Garderobe haben.
Im Badezimmer mit WC finden Sie alles, was Sie für den Start in den Tag benötigen.
Ein Highlight der Wohnung ist der Balkon, der zum Verweilen und Entspannen einlädt. Genießen Sie hier in der Abendsonne die frische Luft.
Praktischerweise gehört zu der Wohnung auch ein Kellerabteil, welches zusätzlichen Stauraum bietet.
MietdetailsMiete inkl. Betriebskosten EUR 501,15plus Heizung nach Verbrauchplus Strom nach VerbrauchKaution: EUR 1200,00provisionsfreiMietvertrag: 3 Jahre befristet
Facts Top 9a1. Stock31,30 m²4,50 m² Balkongetrennte KücheBad/WC mit WM-AnschlussTiefgarage ca. EUR 95,-
RäumeWohnraumKücheVorraumBad/WCKellerBalkonGarage
Adresse:
Mariatroster Straße 101, 101a-d
8044 Graz-Mariatrost
Mariatrost, einer der grünsten und idyllischsten Bezirke von Graz, bietet nicht nur Erholung inmitten von Natur und charmantem Ambiente, sondern auch eine erstklassige Anbindung an das öffentliche Verkehrsnetz.
Mit der Straßenbahnlinie 1 erreichen Sie das Stadtzentrum schnell und bequem, was Mariatrost zur idealen Wohnlage für Naturliebhaber macht, die gleichzeitig die Vorzüge urbaner Infrastruktur genießen möchten.
Parken
Es sind freie Plätze in der Tiefgarage vorhanden. Ca. EUR 95,- p.m.
Besichtigungstermine:
Samstag, 22. November, 12:15 UhrDienstag, 25. November, 16:15 Uhr
Melden Sie sich bitte hier zur Besichtigung an:
uhrturm.at/grazmaria101/9a
Bitte kopieren Sie den Link in Ihre Browser-Adresszeile und melden Sie sich über das Formular an!
Wir halten unsere Inserate immer auf dem neuesten Stand, daher ist auch dieses Objekt aktuell noch verfügbar.
Bewerbermappe
Jetzt Bewerbermappe erstellen
Lage
Mariatroster Straße8044 Graz
Graz
Der aktuelle durchschnittliche Quadratmeterpreis beträgt 11,33 €/m² in Graz.
Mit Mietspiegel
Graz vergleichen
Was kostet dein Umzug?
Du planst einen Umzug? Finde jetzt die günstigste Umzugsfirma in deiner Region!
Umzugskosten berechnen Schütze dich vor Betrug!
Leiste keinerlei Zahlung im Vorraus!
Beachte unsere Sicherheitshinweise zum Thema Immobilienbetrug und lies, woran du solche Anzeigen erkennen kannst und wie du dich vor Betrügern schützt.
Anzeige melden Beachte unsere Sicherheitshinweise zum Thema Immobilienbetrug und lies, woran du solche Anzeigen erkennen kannst und wie du dich vor Betrügern schützt.
Anbieter
Diese Anzeige ist momentan deaktiviert. Daher ist eine Kontaktaufnahme nicht möglich.
Weitere Ergebnisse für:
Wohnungen
Graz;
Immobilien
Graz;
Haus mieten
Graz;
Wohnung
Graz kaufen;
Haus kaufen
Graz;
Immobilienpreise
Graz Mietspiegel
Graz wohnungsboerse.net übernimmt keine Gewähr für von Dritten gemachte Angaben