
Wohnung in Graz
Objekt nicht gefunden
auf der Karte ansehenUmzugskosten berechnen
- Gesamtmiete
- 829 €
- Zimmer
- 3
- Fläche
- 68 m²
29 Aufrufe
Objekt-ID: 38962571
| Objekttyp: | Wohnung |
| Zimmer: | 3 |
| Größe: | 68.00 m² |
| Frei ab: | keine Angabe |
Immobilie
Balkon
Einbauküche
Aufzug
Altbau
Tiere erlaubt
Objektbeschreibung
Provisionsfrei: Lend, 2er-WG, Heller 3 ZIMMER-Altbau (3 Zi. getr, begehbar), ruhiger bzw. großer Balkon ca. 12m², neuwertige Einbauküche, Abstellraum, Vorraum, neuwertiges Bad mit Dusche und WM-Anschluss, neuwertiges WC mit Waschbecken, Lift, unweit vom Hauptbahnhof bzw. nähe FH-Joanneum!
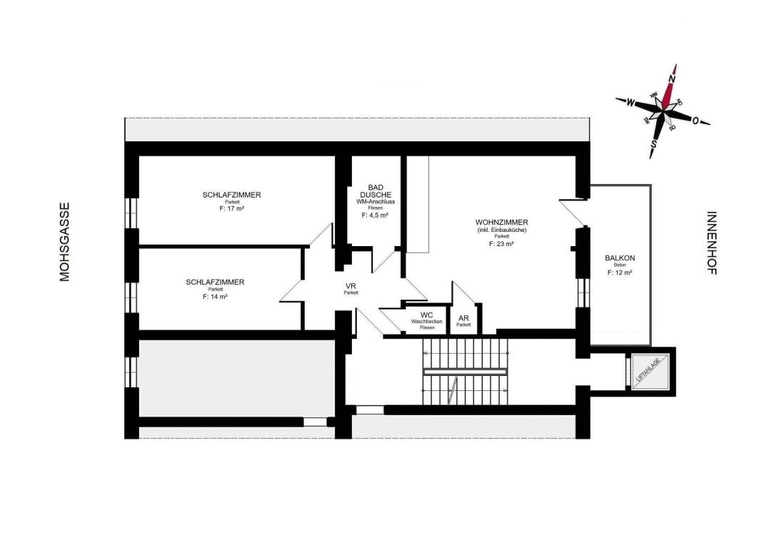
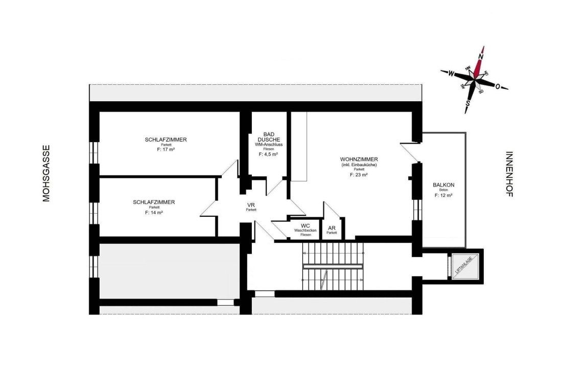
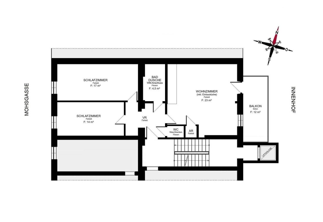
Auf einer Wohnfläche von ca. 68m² verteilen sich in der Mohsgasse unweit vom Hauptbahnhof bzw. nähe FH-Joanneum im 2. Obergeschoß mit Lift perfekt wie folgt: 3 Zimmer, davon 1 größeres Wohnzimmer ca. 23m² mit großen bzw. ruhigen Balkon ca. 12m² und neuwertiger Einbauküche inkl. Geschirrspüler etc. - Innenhof (getr. begehbar), 2 helle Schlafzimmer ca. 17m² + ca. 14m² (beide Zimmer getr. begehbar), Abstellraum, Vorraum, Bad ca. 4,5m² mit Dusche / WM-Anschluss und Sprossenheizkörper, extra WC mit Waschbecken, Parkettböden, Rollläden, UPC- bzw. Telekom-Anschluss und die Wohnung wird mit Fernwärme beheizt (exkl. Heizung - wird direkt mit dem Anbieter abgerechnet).
Die komplette Wohnung wurde von der Malerfirma frisch ausgemalt, Sanitäranlagen (Bad + WC) wurden vom Installateur überprüft, Elektrik bzw. Sicherungskasten wurden überprüft, Rollläden bzw. Fenster werden überprüft usw. und nach Beendigung der Arbeiten wird die Wohnung noch von der Firma gereinigt!
Günstige Parkmöglichkeit für Bewohner gibt es vor dem Haus in der "blauen Zone". Die Wohnung ist durch die sehr gute Aufteilung sowie zentrale Lage, optimal geeignet für ein Pärchen oder eine 2er-WG (z.B. Studenten), da sie um Beihilfe ansuchen können (Wohnunterstützung).
Haustiere: Die Haltung einer Katze geht in Ordnung. Wenn sie einen ruhigen bzw. familienfreundlichen Hund haben, geht die Haltung ebenfalls in Ordnung.
Sehr gute GVB-Verbindung mit der Straßenbahn: 1er, 4er, 6er, 7er und Bus: 53er, 58er, 62er, 63er mit Anbindung zum Jakominiplatz, FH-Joanneum, KF-Universität, Kunst- bzw. Musik-Universität, Campus Alte TU-Graz (Rechbauerstraße), Campus Neue TU-Graz (Steyrergasse), Campus TU-Inffeld (St. Peter), LKH-Graz, UKH-Graz usw.!
Mietbeginn: Sofort bzw. nach Absprache!
Beihilfe: Ja - möglich
Mietdauer: unbefristet
Kaution: € 2.500,--
""Provisionsfrei""
Miete inkl. BK: € 829,-- (exkl. Heizung, Strom)
Eine Besichtigung ist nach vorheriger telefonischer Vereinbarung von Montag bis Freitag möglich und erreichen können sie mich von 09:00 – 18:00 Uhr!
Weitere provisionsfreie 3 Zimmer-Wohnungen in unterschiedlichen Größen sowie Bezirken, finden sie auf unserer eigenen Website!
Auf einer Wohnfläche von ca. 68m² verteilen sich in der Mohsgasse unweit vom Hauptbahnhof bzw. nähe FH-Joanneum im 2. Obergeschoß mit Lift perfekt wie folgt: 3 Zimmer, davon 1 größeres Wohnzimmer ca. 23m² mit großen bzw. ruhigen Balkon ca. 12m² und neuwertiger Einbauküche inkl. Geschirrspüler etc. - Innenhof (getr. begehbar), 2 helle Schlafzimmer ca. 17m² + ca. 14m² (beide Zimmer getr. begehbar), Abstellraum, Vorraum, Bad ca. 4,5m² mit Dusche / WM-Anschluss und Sprossenheizkörper, extra WC mit Waschbecken, Parkettböden, Rollläden, UPC- bzw. Telekom-Anschluss und die Wohnung wird mit Fernwärme beheizt (exkl. Heizung - wird direkt mit dem Anbieter abgerechnet).
Die komplette Wohnung wurde von der Malerfirma frisch ausgemalt, Sanitäranlagen (Bad + WC) wurden vom Installateur überprüft, Elektrik bzw. Sicherungskasten wurden überprüft, Rollläden bzw. Fenster werden überprüft usw. und nach Beendigung der Arbeiten wird die Wohnung noch von der Firma gereinigt!
Günstige Parkmöglichkeit für Bewohner gibt es vor dem Haus in der "blauen Zone". Die Wohnung ist durch die sehr gute Aufteilung sowie zentrale Lage, optimal geeignet für ein Pärchen oder eine 2er-WG (z.B. Studenten), da sie um Beihilfe ansuchen können (Wohnunterstützung).
Haustiere: Die Haltung einer Katze geht in Ordnung. Wenn sie einen ruhigen bzw. familienfreundlichen Hund haben, geht die Haltung ebenfalls in Ordnung.
Sehr gute GVB-Verbindung mit der Straßenbahn: 1er, 4er, 6er, 7er und Bus: 53er, 58er, 62er, 63er mit Anbindung zum Jakominiplatz, FH-Joanneum, KF-Universität, Kunst- bzw. Musik-Universität, Campus Alte TU-Graz (Rechbauerstraße), Campus Neue TU-Graz (Steyrergasse), Campus TU-Inffeld (St. Peter), LKH-Graz, UKH-Graz usw.!
Mietbeginn: Sofort bzw. nach Absprache!
Beihilfe: Ja - möglich
Mietdauer: unbefristet
Kaution: € 2.500,--
""Provisionsfrei""
Miete inkl. BK: € 829,-- (exkl. Heizung, Strom)
Eine Besichtigung ist nach vorheriger telefonischer Vereinbarung von Montag bis Freitag möglich und erreichen können sie mich von 09:00 – 18:00 Uhr!
Weitere provisionsfreie 3 Zimmer-Wohnungen in unterschiedlichen Größen sowie Bezirken, finden sie auf unserer eigenen Website!
Bewerbermappe
Jetzt Bewerbermappe erstellen
Lage
Mohsgasse8020 Graz
Graz
Der aktuelle durchschnittliche Quadratmeterpreis beträgt 11,28 €/m² in Graz.
Mit Mietspiegel
Graz vergleichen
Was kostet dein Umzug?
Du planst einen Umzug? Finde jetzt die günstigste Umzugsfirma in deiner Region!
Umzugskosten berechnen Schütze dich vor Betrug!
Leiste keinerlei Zahlung im Vorraus!
Beachte unsere Sicherheitshinweise zum Thema Immobilienbetrug und lies, woran du solche Anzeigen erkennen kannst und wie du dich vor Betrügern schützt.
Anzeige melden Beachte unsere Sicherheitshinweise zum Thema Immobilienbetrug und lies, woran du solche Anzeigen erkennen kannst und wie du dich vor Betrügern schützt.
Anbieter
Diese Anzeige ist momentan deaktiviert. Daher ist eine Kontaktaufnahme nicht möglich.
Weitere Ergebnisse für:
Wohnungen
Graz;
Immobilien
Graz;
Haus mieten
Graz;
Wohnung
Graz kaufen;
Haus kaufen
Graz;
Immobilienpreise
Graz Mietspiegel
Graz wohnungsboerse.net übernimmt keine Gewähr für von Dritten gemachte Angaben