
Wohnung in Lustenau
Schöne 3-Zimmer-Wohnung mit großem Gartenanteil in Lustenau Schillerstraße 24a zu vermieten
auf der Karte ansehenUmzugskosten berechnen
- Gesamtmiete
- 1.298 €
- Zimmer
- 3
- Fläche
- 78 m²
10 Aufrufe
Objekt-ID: 39016244
| Objekttyp: | Wohnung |
| Zimmer: | 3 |
| Größe: | 78.00 m² |
| Frei ab: | keine Angabe |
Immobilie
Balkon
Garten
Einbauküche
Aufzug
Keller
Objektbeschreibung
Adresse: Schillerstraße 24a, 6890 Lustenau
Etage: 1. Stock
Verfügbar ab: sofort
Miete beträgt 998
BK ca 300
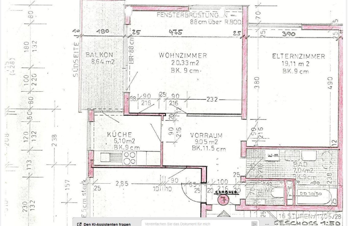
Zur Vermietung steht eine helle und gepflegte 3-Zimmer-Wohnung (BJ77) in ruhiger und zentraler Lage von Lustenau.
Die Wohnung befindet sich im 1. Obergeschoss eines Mehrparteienhauses und überzeugt durch ihre durchdachte Raumaufteilung und den großen privaten Grünbereich.
Raumaufteilung:
Eingangsbereich Gang
WC und Badezimmer getrennt
Bad mit Badewanne und Bidet
Großes Schlafzimmer mit großen Kleiderschrank
Wohnzimmer mit Balkon inkl. Markise
Küche inkl. Geräte
Kleines Schlaf- oder Kinderzimmer
Zusätzliche Ausstattung:
1 Garage inkl. automatischem Torantrieb
1 Außenabstellplatz
Kellerabteil
Private Grünfläche (ca. 425m ) ideal zum Spielen, Grillen oder als Hobbygarten
Lage:
Die Wohnung liegt in der beliebten Schillerstraße in Lustenau eine ruhige Wohngegend mit sehr guter Infrastruktur.
Einkaufsmöglichkeiten, Schulen und öffentliche Verkehrsmittel befinden sich in unmittelbarer Nähe.
Interessiert?
Melden sie sich unter [E-Mail-Adresse entfernt]
Etage: 1. Stock
Verfügbar ab: sofort
Miete beträgt 998
BK ca 300
Zur Vermietung steht eine helle und gepflegte 3-Zimmer-Wohnung (BJ77) in ruhiger und zentraler Lage von Lustenau.
Die Wohnung befindet sich im 1. Obergeschoss eines Mehrparteienhauses und überzeugt durch ihre durchdachte Raumaufteilung und den großen privaten Grünbereich.
Raumaufteilung:
Eingangsbereich Gang
WC und Badezimmer getrennt
Bad mit Badewanne und Bidet
Großes Schlafzimmer mit großen Kleiderschrank
Wohnzimmer mit Balkon inkl. Markise
Küche inkl. Geräte
Kleines Schlaf- oder Kinderzimmer
Zusätzliche Ausstattung:
1 Garage inkl. automatischem Torantrieb
1 Außenabstellplatz
Kellerabteil
Private Grünfläche (ca. 425m ) ideal zum Spielen, Grillen oder als Hobbygarten
Lage:
Die Wohnung liegt in der beliebten Schillerstraße in Lustenau eine ruhige Wohngegend mit sehr guter Infrastruktur.
Einkaufsmöglichkeiten, Schulen und öffentliche Verkehrsmittel befinden sich in unmittelbarer Nähe.
Interessiert?
Melden sie sich unter [E-Mail-Adresse entfernt]
Bewerbermappe
Jetzt Bewerbermappe erstellen
Lage
Schillerstrasse6890 Lustenau
Lustenau
Der aktuelle durchschnittliche Quadratmeterpreis beträgt 13,13 €/m² in Lustenau.
Mit Mietspiegel
Lustenau vergleichen
Was kostet dein Umzug?
Du planst einen Umzug? Finde jetzt die günstigste Umzugsfirma in deiner Region!
Umzugskosten berechnen Schütze dich vor Betrug!
Leiste keinerlei Zahlung im Vorraus!
Beachte unsere Sicherheitshinweise zum Thema Immobilienbetrug und lies, woran du solche Anzeigen erkennen kannst und wie du dich vor Betrügern schützt.
Anzeige melden Beachte unsere Sicherheitshinweise zum Thema Immobilienbetrug und lies, woran du solche Anzeigen erkennen kannst und wie du dich vor Betrügern schützt.
Anbieter
Weitere Ergebnisse für:
Wohnungen
Lustenau;
Immobilien
Lustenau;
Haus mieten
Lustenau;
Wohnung
Lustenau kaufen;
Haus kaufen
Lustenau;
Immobilienpreise
Lustenau Mietspiegel
Lustenau wohnungsboerse.net übernimmt keine Gewähr für von Dritten gemachte Angaben