
Wohnung in Hafnerbach
Schöne 3 Zimmerwohnung im romantischen Ort Hafnerbach
auf der Karte ansehenUmzugskosten berechnen
- Gesamtmiete
- 797,27 €
- Zimmer
- 3
- Fläche
- 70.68 m²
17 Aufrufe
Objekt-ID: 39021036
| Objekttyp: | Wohnung |
| Zimmer: | 3 |
| Größe: | 70.68 m² |
| Frei ab: | keine Angabe |
Immobilie
Balkon
Aufzug
Keller
Objektbeschreibung
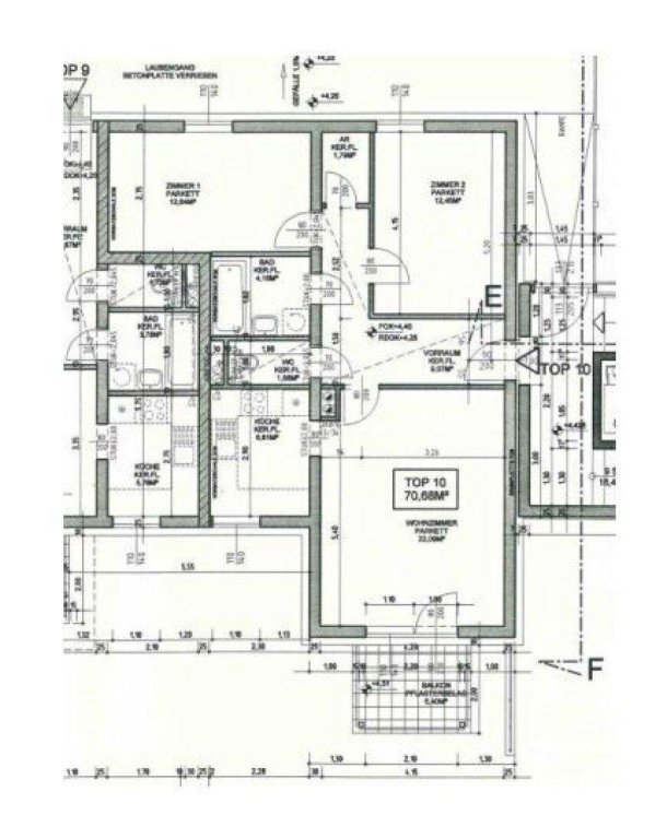
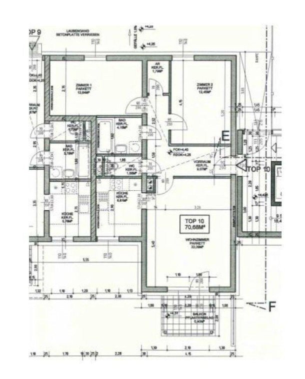
Willkommen in Ihrem neuen Zuhause in der malerischen Gemeinde Hafnerbach! Diese wunderschöne und gepflegte Wohnung befindet sich im ersten Stock eines modernen Mehrfamilienhauses und bietet Ihnen all das, was Sie sich von einem perfekten Wohnraum wünschen.Mit einer großzügigen Fläche von 70,68 m² erstreckt sich die Wohnung über drei lichtdurchflutete Zimmer, die Ihnen ausreichend Platz für individuelle Gestaltungsmöglichkeiten bieten. Ob heimeliges Wohnzimmer, stilvolles Schlafzimmer, herrliches Kinderzimmer oder ein produktives Arbeitszimmer – hier finden Sie genau den Raum, den Sie benötigen.
Vom geräumigen Wohnzimmer gelangen Sie auf den schönen Balkon – einfach entspannen und die Seele baumeln lassen. Die Küche ist separat angelegt und gleich beim Wohnzimmer vorzufinden.Das Badezimmer ist mit einer Badewanne ausgestattet – Entspannung ist hier garantiert. Des Weiteren befinden sich ein Handwaschbecken und ein Waschmaschinenanschluss im Bad.Ein praktischer Abstellraum sorgt für extra Stauraum.Alle Wohnräume sind mit hochwertigen Parkettböden ausgestattet. Ein Kellerabteil und ein PKW Außenabstellplatz (bereits in der Miete inkludiert) runden das Wohnungsangebot perfekt ab.Die Warmwasserbereitung erfolgt über die Gaszentralheizung und über eine Luft-Wärmepumpe.Beheizt wird mittels einer Wärmegaszentralheizung.Die zentrale Lage der Wohnung wird Sie begeistern! Kindergarten, Volksschule, Einkaufsmöglichkeit, Bank, Arzt – alles quasi vor der Haustüre. Die familienfreundliche Gemeinde hat auch ein breit gefächertes Freizeitprogramm für Groß und Klein. Jede Menge Sport, Spaß und Action sind hier garantiert!Eine gute Verkehrsanbindung gibt es Dank der Westautobahn und Bundesstraße 1.Befristung: unbefristet, 1 Jahr Kündigungsverzicht 3 Monate KündigungsfristBezug: ab 1.2.2026Energiekennzahlen: Laut Energieausweis vom 14.4.2020 beträgt der Heizwärmebedarf 46,51 kWh/m²a Klasse B und der Gesamtenergieeffizienz-Faktor 1,29 Klasse C.Der einmalige Finanzierungsbeitrag beträgt ca. € 7.562,49 und die monatliche Miete beläuft sich auf € 797,27 BK und Ust.Die derzeitigen Kosten für Warmwasser und Heizung betragen € 117,89 inkl. Ust.Noch nichts gefunden? Wir informieren Sie über geeignete Immobilienangebote noch vor allen anderen.
Legen Sie jetzt Ihren individuellen Suchagenten unter folgendem Link an. Wir schicken Ihnen passende Immobilien exklusiv vorab zu.
Suchagent anlegen - https://heimat-oesterreich.service.immo/registrieren/de
Infrastruktur / EntfernungenGesundheit
Arzt <2.750m
Apotheke <2.750m
Kinder & Schulen
Schule <500m
Kindergarten <500m
Nahversorgung
Supermarkt <2.500m
Bäckerei <5.750m
Einkaufszentrum <6.750m
Sonstige
Bank <500m
Geldautomat <2.750m
Polizei <2.750m
Post <5.500m
Verkehr
Bus <250m
Bahnhof <2.750m
Autobahnanschluss <6.500m
Flughafen <9.750m
Angaben Entfernung Luftlinie / Quelle: OpenStreetMap
Vom geräumigen Wohnzimmer gelangen Sie auf den schönen Balkon – einfach entspannen und die Seele baumeln lassen. Die Küche ist separat angelegt und gleich beim Wohnzimmer vorzufinden.Das Badezimmer ist mit einer Badewanne ausgestattet – Entspannung ist hier garantiert. Des Weiteren befinden sich ein Handwaschbecken und ein Waschmaschinenanschluss im Bad.Ein praktischer Abstellraum sorgt für extra Stauraum.Alle Wohnräume sind mit hochwertigen Parkettböden ausgestattet. Ein Kellerabteil und ein PKW Außenabstellplatz (bereits in der Miete inkludiert) runden das Wohnungsangebot perfekt ab.Die Warmwasserbereitung erfolgt über die Gaszentralheizung und über eine Luft-Wärmepumpe.Beheizt wird mittels einer Wärmegaszentralheizung.Die zentrale Lage der Wohnung wird Sie begeistern! Kindergarten, Volksschule, Einkaufsmöglichkeit, Bank, Arzt – alles quasi vor der Haustüre. Die familienfreundliche Gemeinde hat auch ein breit gefächertes Freizeitprogramm für Groß und Klein. Jede Menge Sport, Spaß und Action sind hier garantiert!Eine gute Verkehrsanbindung gibt es Dank der Westautobahn und Bundesstraße 1.Befristung: unbefristet, 1 Jahr Kündigungsverzicht 3 Monate KündigungsfristBezug: ab 1.2.2026Energiekennzahlen: Laut Energieausweis vom 14.4.2020 beträgt der Heizwärmebedarf 46,51 kWh/m²a Klasse B und der Gesamtenergieeffizienz-Faktor 1,29 Klasse C.Der einmalige Finanzierungsbeitrag beträgt ca. € 7.562,49 und die monatliche Miete beläuft sich auf € 797,27 BK und Ust.Die derzeitigen Kosten für Warmwasser und Heizung betragen € 117,89 inkl. Ust.Noch nichts gefunden? Wir informieren Sie über geeignete Immobilienangebote noch vor allen anderen.
Legen Sie jetzt Ihren individuellen Suchagenten unter folgendem Link an. Wir schicken Ihnen passende Immobilien exklusiv vorab zu.
Suchagent anlegen - https://heimat-oesterreich.service.immo/registrieren/de
Infrastruktur / EntfernungenGesundheit
Arzt <2.750m
Apotheke <2.750m
Kinder & Schulen
Schule <500m
Kindergarten <500m
Nahversorgung
Supermarkt <2.500m
Bäckerei <5.750m
Einkaufszentrum <6.750m
Sonstige
Bank <500m
Geldautomat <2.750m
Polizei <2.750m
Post <5.500m
Verkehr
Bus <250m
Bahnhof <2.750m
Autobahnanschluss <6.500m
Flughafen <9.750m
Angaben Entfernung Luftlinie / Quelle: OpenStreetMap
Bewerbermappe
Jetzt Bewerbermappe erstellen
Was kostet dein Umzug?
Du planst einen Umzug? Finde jetzt die günstigste Umzugsfirma in deiner Region!
Umzugskosten berechnen Schütze dich vor Betrug!
Leiste keinerlei Zahlung im Vorraus!
Beachte unsere Sicherheitshinweise zum Thema Immobilienbetrug und lies, woran du solche Anzeigen erkennen kannst und wie du dich vor Betrügern schützt.
Anzeige melden Beachte unsere Sicherheitshinweise zum Thema Immobilienbetrug und lies, woran du solche Anzeigen erkennen kannst und wie du dich vor Betrügern schützt.
Anbieter
Weitere Ergebnisse für:
Wohnungen
Hafnerbach;
Immobilien
Hafnerbach;
Haus mieten
Hafnerbach;
Wohnung
Hafnerbach kaufen;
Haus kaufen
Hafnerbach;
Immobilienpreise
Hafnerbach Mietspiegel
Hafnerbach wohnungsboerse.net übernimmt keine Gewähr für von Dritten gemachte Angaben