
Immobilie in Palting
WOHNIDYLLE IN RUHIGER LAGE - mit Lift und Aussen- sowie TG-Stellplatz!
auf der Karte ansehenUmzugskosten berechnen
- Kaufpreis
- Preis auf Anfrage
- Zimmer
- 3
- Fläche
- 70 m²
1 Aufrufe
Objekt-ID: 38616363
Objekttyp: | Wohnung |
Zimmer: | 3 |
Größe: | 70.00 m² |
Verfügbar ab: | keine Angabe |
Immobilie
Balkon
Aufzug
Stellplatz
Keller
Objektbeschreibung
Willkommen in Ihrer neuen Traumwohnung!
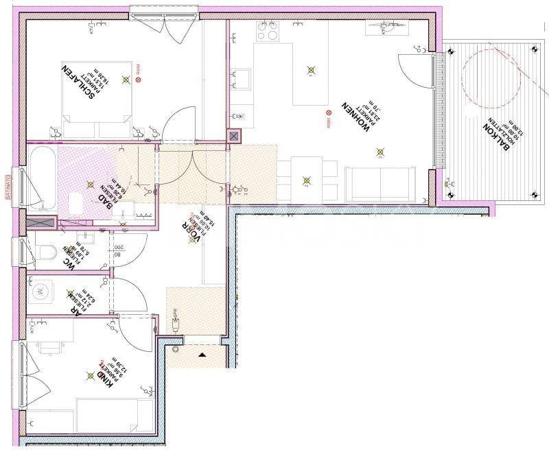
Diese lichtdurchflutete 3-Zimmer-Wohnung im 1. Obergeschoss wurde im Jahr 2018 erbaut und bietet Ihnen eine großzügige Wohnfläche von 69,81 m². Die Wohnoase ist bequem mit dem Lift erreichbar und überzeugt durch ihre moderne Ausstattung sowie durchdachte Raumaufteilung.
Beim Betreten der Wohnung gelangen Sie über den großzügigen Vorraum in den offenen Wohn- und Essbereich, der mit seinen 23,89 m² viel Platz für gesellige Stunden und das Kochen mit Freunden bietet. Die Südsüdwest-Ausrichtung sorgt für eine angenehme Lichtatmosphäre und ermöglicht den Zugang zu einem einladenden Balkon mit einer Fläche von 10 m² – ideal für entspannte Abende im Freien.
Die Wohnung verfügt über ein geräumiges Schlafzimmer sowie ein Kinderzimmer, die beide Ruhe und Komfort bieten. Das Badezimmer ist mit einem Fenster ausgestattet und bietet neben einer Badewanne auch einen Waschbeckenbereich. Eine separate Toilette mit Fenster sorgt für zusätzlichen Komfort. Praktisch ist auch der Abstellraum mit Waschmaschinenanschluss, der Ihnen zusätzlichen Stauraum zum Keller bietet.
Diese Wohnung besticht nicht nur durch ihre hochwertige Tischler-Küche, sondern auch durch zahlreiche weitere Ausstattungsmerkmale:
Rollläden und Insektenschutz an den Fenstern der Schlafräume sowie im Wohnraum
Parkett- und Fliesenböden (mit Fußbodenheizung - Pellet-Heizung)
Kunststofffenster mit 3-fach-Isolierglas
Badezimmer mit Badewanne, Waschbecken und Fenster; separates WC mit Handwaschbecken und Fenster
Glasfaseranschluss für schnelles Internet
Der Kaufpreis beträgt VB 339.000 €, zzgl. eines Außenstellplatzes für 7.000 € und eines Tiefgaragenstellplatzes für 21.000 €, insgesamt also 367.000 €.
Überzeugen Sie sich persönlich von diesem tollen Angebot und vereinbaren Sie noch heute einen Besichtigungstermin unter [Telefonnummer entfernt] (Herr Gerhard Jannasch). Gerne unterstützen wir Sie auch bei Fragen zur möglichen Finanzierung.
Schulen:
VS und Kiga in etwa 850 m, unzählige höhere Schulen und Universtitäten finden Sie unteranderem in der Stadt Salzburg.
Einkaufsmöglichkeiten:
in etwa 750m gibt es einen Metzger sowie einen Dorfladen.
Öffentlicher Verkehr:
Bushaltestelle in etwa 700m, nächster Bahnhof in Oberndorf, Autobahn Eugendorf in etwa 22 km
Diese lichtdurchflutete 3-Zimmer-Wohnung im 1. Obergeschoss wurde im Jahr 2018 erbaut und bietet Ihnen eine großzügige Wohnfläche von 69,81 m². Die Wohnoase ist bequem mit dem Lift erreichbar und überzeugt durch ihre moderne Ausstattung sowie durchdachte Raumaufteilung.
Beim Betreten der Wohnung gelangen Sie über den großzügigen Vorraum in den offenen Wohn- und Essbereich, der mit seinen 23,89 m² viel Platz für gesellige Stunden und das Kochen mit Freunden bietet. Die Südsüdwest-Ausrichtung sorgt für eine angenehme Lichtatmosphäre und ermöglicht den Zugang zu einem einladenden Balkon mit einer Fläche von 10 m² – ideal für entspannte Abende im Freien.
Die Wohnung verfügt über ein geräumiges Schlafzimmer sowie ein Kinderzimmer, die beide Ruhe und Komfort bieten. Das Badezimmer ist mit einem Fenster ausgestattet und bietet neben einer Badewanne auch einen Waschbeckenbereich. Eine separate Toilette mit Fenster sorgt für zusätzlichen Komfort. Praktisch ist auch der Abstellraum mit Waschmaschinenanschluss, der Ihnen zusätzlichen Stauraum zum Keller bietet.
Diese Wohnung besticht nicht nur durch ihre hochwertige Tischler-Küche, sondern auch durch zahlreiche weitere Ausstattungsmerkmale:
Rollläden und Insektenschutz an den Fenstern der Schlafräume sowie im Wohnraum
Parkett- und Fliesenböden (mit Fußbodenheizung - Pellet-Heizung)
Kunststofffenster mit 3-fach-Isolierglas
Badezimmer mit Badewanne, Waschbecken und Fenster; separates WC mit Handwaschbecken und Fenster
Glasfaseranschluss für schnelles Internet
Der Kaufpreis beträgt VB 339.000 €, zzgl. eines Außenstellplatzes für 7.000 € und eines Tiefgaragenstellplatzes für 21.000 €, insgesamt also 367.000 €.
Überzeugen Sie sich persönlich von diesem tollen Angebot und vereinbaren Sie noch heute einen Besichtigungstermin unter [Telefonnummer entfernt] (Herr Gerhard Jannasch). Gerne unterstützen wir Sie auch bei Fragen zur möglichen Finanzierung.
Schulen:
VS und Kiga in etwa 850 m, unzählige höhere Schulen und Universtitäten finden Sie unteranderem in der Stadt Salzburg.
Einkaufsmöglichkeiten:
in etwa 750m gibt es einen Metzger sowie einen Dorfladen.
Öffentlicher Verkehr:
Bushaltestelle in etwa 700m, nächster Bahnhof in Oberndorf, Autobahn Eugendorf in etwa 22 km
Vorstellungsmappe
Jetzt Vorstellungsmappe erstellen
Lage
5163 PaltingPalting
Der aktuelle durchschnittliche Quadratmeterpreis beträgt 6.146,76 €/m² in Palting.
Mit Immobilienpreisen
Palting vergleichen
Was kostet dein Umzug?
Du planst einen Umzug? Finde jetzt die günstigste Umzugsfirma in deiner Region!
Umzugskosten berechnen Schütze dich vor Betrug!
Leiste keinerlei Zahlung im Vorraus!
Beachte unsere Sicherheitshinweise zum Thema Immobilienbetrug und lies, woran du solche Anzeigen erkennen kannst und wie du dich vor Betrügern schützt.
Anzeige melden Beachte unsere Sicherheitshinweise zum Thema Immobilienbetrug und lies, woran du solche Anzeigen erkennen kannst und wie du dich vor Betrügern schützt.
Anbieter
Weitere Ergebnisse für:
Wohnungen
Palting;
Immobilien
Palting;
Haus mieten
Palting;
Wohnung
Palting kaufen;
Haus kaufen
Palting;
Immobilienpreise
Palting Mietspiegel
Palting wohnungsboerse.net übernimmt keine Gewähr für von Dritten gemachte Angaben