
Dachgeschosswohnung in Wien
Befristet vermietet - Eigennutzer oder Anleger
auf der Karte ansehenUmzugskosten berechnen
- Kaufpreis
- 445.500 €
- Zimmer
- 3
- Fläche
- 77 m²
2 Aufrufe
Objekt-ID: 38645044
Objekttyp: | Dachgeschosswohnung |
Zimmer: | 3 |
Größe: | 77.00 m² |
Verfügbar ab: | keine Angabe |
Immobilie
Einbauküche
Aufzug
Objektbeschreibung
Projekt & GebäudeAdresse: Kinskygasse 3 / Anton-Baumgartner-Straße 9–11, 1230 Wien.Zwei hofseitige Baukörper mit 3 Geschoßen (Zugang über Kinskygasse 3).Freiflächen für jede Wohnung (Loggia, Balkon, Terrasse oder Garten); EG-Gärten im ruhigen Innenhof.Tiefgarage (Zufahrt Kinskygasse), Kinderwagen- & Fahrradraum, Kellerabteile, Müllräume in den straßenseitigen Gebäuden.Zentrale Haustechnik für Energie & Warmwasser.Ausstattungs-HighlightsAußenliegender Sonnenschutz, im DG elektrisch (EG straßenseitig Rollläden mit Einbruchschutz).DG-Wohnungen klimatisiert.Großzügige Freiflächen je Einheit.Hochwertiger Parkett (Weitzer).Lage & AnbindungNahversorgung fußläufig. Freizeit in unmittelbarer Nähe (u. a. Steinsee Alt-Erlaa, Schubertpark, Bogi Park, Maxx Entertainment Wien 23; Bowling Alterlaa ca. 6 Min.).
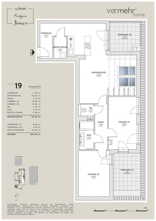
Öffi-Anbindung: Bus 65A/66A/67B (Willendorfer Gasse ~1 Min.), WLB-Station Inzersdorf ~3 Min.; Karlsplatz ~30 Min. öffentlich.Top C19Kaufpreis netto zzgl 20% Ust // Kaufpreis Eigennutzer: 495.000€OBJEKTBESCHREIBUNG:Aufgeteilt auf 3 Zimmer befinden sich auf ca 77m² Wohnfläche insgesamt 1 Vorzimmer, 1 Toilette, 1 Abstellraum, 1 Wohnzimmer mit offener Wohnküche und angrenzender 8m² Terrasse, sowie 2 Schlafzimmer, beide mit Ausgang auf die 8m² große Terrasse, und 1 BadezimmerHighlight hier ist jedenfalls die 98m² große Dachterrasse.Bei Bedarf kann ein Garagenplatz um 22.500€ netto zzgl 20% Ust (Anleger) oder 25.000€ (Eigennutzer) dazu erworben werden.Wir weisen darauf hin, dass zwischen dem Vermittler und dem zu vermittelnden Dritten ein familiäres oder wirtschaftliches Naheverhältnis besteht.Herr Manuel Plachner, MSc MRICS, Mobil: , Mail: [E-Mail-Adresse entfernt], steht für ein persönliches Gespräch sowie für einen Besichtigungstermin gerne zur Verfügung.
Infrastruktur / EntfernungenGesundheit
Arzt <250m
Apotheke <250m
Klinik <1.500m
Krankenhaus <1.500m
Kinder & Schulen
Schule <1.250m
Kindergarten <1.000m
Universität <3.500m
Höhere Schule <3.000m
Nahversorgung
Supermarkt <250m
Bäckerei <1.250m
Einkaufszentrum <1.000m
Sonstige
Geldautomat <1.000m
Bank <1.000m
Post <1.250m
Polizei <250m
Verkehr
Bus <250m
U-Bahn <1.250m
Straßenbahn <1.250m
Bahnhof <250m
Autobahnanschluss <500m
Angaben Entfernung Luftlinie / Quelle: OpenStreetMap
Öffi-Anbindung: Bus 65A/66A/67B (Willendorfer Gasse ~1 Min.), WLB-Station Inzersdorf ~3 Min.; Karlsplatz ~30 Min. öffentlich.Top C19Kaufpreis netto zzgl 20% Ust // Kaufpreis Eigennutzer: 495.000€OBJEKTBESCHREIBUNG:Aufgeteilt auf 3 Zimmer befinden sich auf ca 77m² Wohnfläche insgesamt 1 Vorzimmer, 1 Toilette, 1 Abstellraum, 1 Wohnzimmer mit offener Wohnküche und angrenzender 8m² Terrasse, sowie 2 Schlafzimmer, beide mit Ausgang auf die 8m² große Terrasse, und 1 BadezimmerHighlight hier ist jedenfalls die 98m² große Dachterrasse.Bei Bedarf kann ein Garagenplatz um 22.500€ netto zzgl 20% Ust (Anleger) oder 25.000€ (Eigennutzer) dazu erworben werden.Wir weisen darauf hin, dass zwischen dem Vermittler und dem zu vermittelnden Dritten ein familiäres oder wirtschaftliches Naheverhältnis besteht.Herr Manuel Plachner, MSc MRICS, Mobil: , Mail: [E-Mail-Adresse entfernt], steht für ein persönliches Gespräch sowie für einen Besichtigungstermin gerne zur Verfügung.
Infrastruktur / EntfernungenGesundheit
Arzt <250m
Apotheke <250m
Klinik <1.500m
Krankenhaus <1.500m
Kinder & Schulen
Schule <1.250m
Kindergarten <1.000m
Universität <3.500m
Höhere Schule <3.000m
Nahversorgung
Supermarkt <250m
Bäckerei <1.250m
Einkaufszentrum <1.000m
Sonstige
Geldautomat <1.000m
Bank <1.000m
Post <1.250m
Polizei <250m
Verkehr
Bus <250m
U-Bahn <1.250m
Straßenbahn <1.250m
Bahnhof <250m
Autobahnanschluss <500m
Angaben Entfernung Luftlinie / Quelle: OpenStreetMap
Vorstellungsmappe
Jetzt Vorstellungsmappe erstellen
Lage
Kinskygasse1230 Wien
Wien
Der aktuelle durchschnittliche Quadratmeterpreis beträgt 6.503,09 €/m² in Wien.
Mit Immobilienpreisen
Wien vergleichen
Was kostet dein Umzug?
Du planst einen Umzug? Finde jetzt die günstigste Umzugsfirma in deiner Region!
Umzugskosten berechnen Schütze dich vor Betrug!
Leiste keinerlei Zahlung im Vorraus!
Beachte unsere Sicherheitshinweise zum Thema Immobilienbetrug und lies, woran du solche Anzeigen erkennen kannst und wie du dich vor Betrügern schützt.
Anzeige melden Beachte unsere Sicherheitshinweise zum Thema Immobilienbetrug und lies, woran du solche Anzeigen erkennen kannst und wie du dich vor Betrügern schützt.
*Anzeige

Ähnliche Immobilien bei ImmoScout24
Wien
- Kaufpreis
- 400.000 €
- Zimmer
- 3 Zi.
- Fläche
- 70 Zi.
Anbieter
Weitere Ergebnisse für:
Wohnungen
Wien;
Immobilien
Wien;
Haus mieten
Wien;
Wohnung
Wien kaufen;
Haus kaufen
Wien;
Immobilienpreise
Wien Mietspiegel
Wien wohnungsboerse.net übernimmt keine Gewähr für von Dritten gemachte Angaben