Einfamilienhaus mit Einliegerwohnung zum kaufen in Pocking
Architektonisch anspruchsvolles AusAusbau-Haus mit Einliegerwohnung in bester Lage!
auf der Karte ansehenUmzugskosten berechnen
- Kaufpreis
- 375.000 €
- Zimmer
- 9.5
- Fläche
- 230 m²
719 Aufrufe
Objekt-ID: 32225690
| Objekttyp: | Einfamilienhaus mit Einliegerwohnung |
| Zimmer: | 9.5 |
| Größe: | 230.00 m² |
| Grundstücksfläche: | 700,00 m² |
| Etage: | 1 |
| Verfügbar ab: | ab sofort |
Preise & Kosten
| Kaufpreis: | 375.000 € |
| Jetzt kostenlos Finanzierungsangebot anfragen! | |
| Preis/m²: | 1.630,43 € |
| Mit Immobilienpreisen Pocking vergleichen | |
Immobilie
Terrasse
Garten
Einbauküche
Neubau
WG geeignet
Tiere erlaubt
Behindertengerecht
| Baujahr: | 2018 |
| Objektzustand: | Erstbezug |
| Befeuerungsart: | Gas |
| Energieausweis: | Energieausweis in Vorbereitung |
Objektbeschreibung
Ins Eigenheim mit Eigenkapital durch Eigenleistung!
oder
geringer Investitionsbedarf zur vollen Ausschöpfung!
Handwerker oder Investoren aufgepasst!
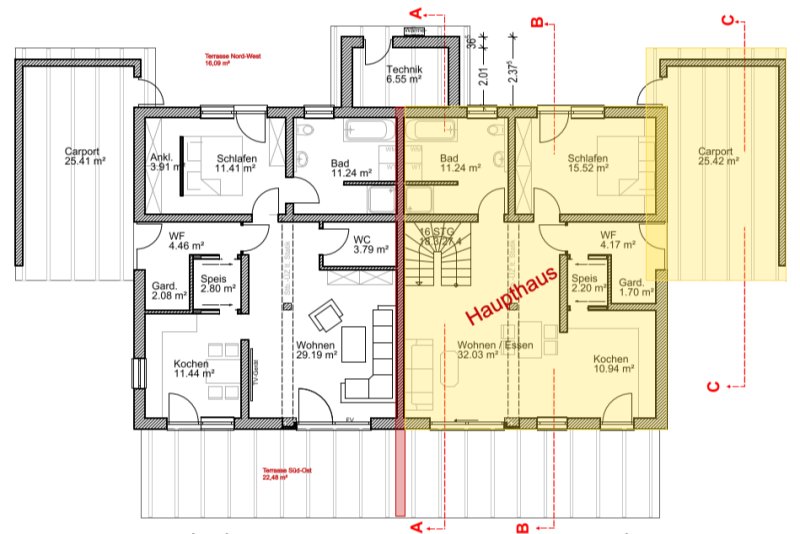
Ich biete ein hochwertiges und modernes Einfamilienhaus mit Einliegerwohnung in Top-Lage von Pocking an.
Das Haus wurde im Jahr 2018 erbaut und zunächst nur die Einliegerwohnung schlüsselfertig erstellt.
Es bietet ausreichend Platz für 6 Personen und kann als Mehrgenerationen-Haus genutzt werden.
Das Grundstück ist auf Erbpacht und muss nach 99 Jahren wieder dem Eigentümer zurückgegeben werden.
Die komplette Immobilie wurde im KFW 55-Standard erstellt und ist „Technikfertig“ ausgestattet:
- Der Rohbau in Massivbauweise mit Thermo-Bodenplatte und hochdämmenden Ziegeln mit Dämm-Putz
- Das Pultdach mit Aluminium-Eindeckung und mit 240mm Holzweichfaser-Dämmung
- Die Fenster und Türen mit hochdämmendem Wärmeschutzglas
- Die Haustüren in Aluminium und hochdämmend
- Die komplette Elektro- sowie Sanitärinstallation durchgeführt
- Eine hocheffiziente Gas-Brennwertanlage mit Fußbodenheizung eingebaut
- Der Estrich eingebaut
- Die Innenwände verputzt und mit hoch diffusionsoffener Farbe gestrichen
Die ca. 90qm große Einliegerwohnung ist komplett barrierefrei und auch seither vermietet.
Sie verfügt über 4 Zimmer, ein separates Gäste-WC, ein Tageslichtbad mit hochwertigen Fliesen, Armaturen und Sanitärobjekten, einen Waschmaschinen-Anschluss, Hochwertige pflegeleichte Vinyl-Böden, Hochwertige Bodenfliesen in Holzoptik, ect.
oder
geringer Investitionsbedarf zur vollen Ausschöpfung!
Handwerker oder Investoren aufgepasst!
Ich biete ein hochwertiges und modernes Einfamilienhaus mit Einliegerwohnung in Top-Lage von Pocking an.
Das Haus wurde im Jahr 2018 erbaut und zunächst nur die Einliegerwohnung schlüsselfertig erstellt.
Es bietet ausreichend Platz für 6 Personen und kann als Mehrgenerationen-Haus genutzt werden.
Das Grundstück ist auf Erbpacht und muss nach 99 Jahren wieder dem Eigentümer zurückgegeben werden.
Die komplette Immobilie wurde im KFW 55-Standard erstellt und ist „Technikfertig“ ausgestattet:
- Der Rohbau in Massivbauweise mit Thermo-Bodenplatte und hochdämmenden Ziegeln mit Dämm-Putz
- Das Pultdach mit Aluminium-Eindeckung und mit 240mm Holzweichfaser-Dämmung
- Die Fenster und Türen mit hochdämmendem Wärmeschutzglas
- Die Haustüren in Aluminium und hochdämmend
- Die komplette Elektro- sowie Sanitärinstallation durchgeführt
- Eine hocheffiziente Gas-Brennwertanlage mit Fußbodenheizung eingebaut
- Der Estrich eingebaut
- Die Innenwände verputzt und mit hoch diffusionsoffener Farbe gestrichen
Die ca. 90qm große Einliegerwohnung ist komplett barrierefrei und auch seither vermietet.
Sie verfügt über 4 Zimmer, ein separates Gäste-WC, ein Tageslichtbad mit hochwertigen Fliesen, Armaturen und Sanitärobjekten, einen Waschmaschinen-Anschluss, Hochwertige pflegeleichte Vinyl-Böden, Hochwertige Bodenfliesen in Holzoptik, ect.
Lage
Mater-Brigitta-Straße94060 Pocking
Pocking
Der aktuelle durchschnittliche Quadratmeterpreis beträgt 2.693,11 €/m² in Pocking.
Mit Immobilienpreisen
Pocking vergleichen
Was kostet dein Umzug?
Du planst einen Umzug? Finde jetzt die günstigste Umzugsfirma in deiner Region!
Umzugskosten berechnen Schütze dich vor Betrug!
Leiste keinerlei Zahlung im Vorraus!
Beachte unsere Sicherheitshinweise zum Thema Immobilienbetrug und lies, woran du solche Anzeigen erkennen kannst und wie du dich vor Betrügern schützt.
Anzeige melden Beachte unsere Sicherheitshinweise zum Thema Immobilienbetrug und lies, woran du solche Anzeigen erkennen kannst und wie du dich vor Betrügern schützt.
*Anzeige
Ähnliche Häuser bei ImmoScout24
Pocking
- Kaufpreis
- 325.000 €
- Zimmer
- 9.5 Zi.
- Fläche
- 220 Zi.
Anbieter
privater AnbieterWeitere Ergebnisse für:
Wohnungen
Pocking;
Immobilien
Pocking;
Haus mieten
Pocking;
WG Zimmer
Pocking;
Wohnung
Pocking kaufen;
Haus kaufen
Pocking;
Immobilienpreise
Pocking Mietspiegel
Pocking wohnungsboerse.net übernimmt keine Gewähr für von Dritten gemachte Angaben











