Eigentumswohnung in Hildesheim
Erstbezug nach Sanierung: 3-Zimmerwohnung - Ideal für Eigennutzer, Kapitalanleger oder als WG
auf der Karte ansehenUmzugskosten berechnen
- Kaufpreis
 - 160.000 €
 
- Zimmer
 - 3
 
- Fläche
 - 65 m²
 
                    2612 Aufrufe
                    
                
                Objekt-ID: 33975425
| Objekttyp: | Eigentumswohnung | 
| Zimmer: | 3 | 
| Größe: | 65.00 m² | 
| Verfügbar ab: | ab sofort | 
Preise & Kosten
| Kaufpreis: | 160.000 € | 
| Jetzt kostenlos Finanzierungsangebot anfragen! | |
| Preis/m²: | 2.461,54 € | 
| Mit Immobilienpreisen Hildesheim vergleichen | |
Immobilie
                                    Keller
                                
                                                            
                                    Altbau
                                
                                                            
                                    WG geeignet
                                
                                                    | Baujahr: | 1950 | 
| Objektzustand: | saniert | 
| Befeuerungsart: | Zentralheizung | 
| Energieausweis: | Energieausweis in Vorbereitung | 
Objektbeschreibung
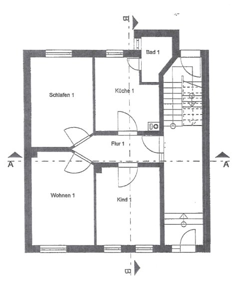
                            Willkommen in Ihrer neuen Traumwohnung! Diese komplett sanierte 3-Zimmerwohnung mit 65 m² Fläche bietet nicht nur modernen Wohnkomfort, sondern auch eine zentrale Wohnlage.
Highlights:
* Komplett saniert: Die Wohnung wurde frisch saniert.
* Alle Fenster wurden ausgetauscht: Helle Räume mit modernen, energieeffizienten Fenstern.
* Alle Wände wurden aufgearbeitet, neu tapeziert und weiß gestrichen: Frischer Anstrich für ein helles, einladendes Ambiente.
* Sämtliche Elektroinstallationen wurden auf den neusten Stand gebracht: Inklusiver einer moderne Unterverteilung und dem Austausch aller Kabel in den Wänden.
* Es gibt Netzwerkanschlüsse in allen Wohnräumen für ein modernes Wohnen und Arbeiten.
* Sämtliche Bodenbeläge wurden ausgetauscht. Der Boden in der Küche wird nach Abschluss der Arbeiten im Badezimmer verlegt.
* Abgehängte Decke im Flur: Die Decke im Flur wurde abgehängt und mit Spots ausgestattet, die für eine angenehme Atmosphäre sorgen.
* Das Badezimmer wird aktuell noch erneuert: Ein modernes und zeitgemäßes Badezimmer ist in Planung.
* Die Zentralheizung des Hauses wurde gerade komplett ausgetauscht und erneuert
Die Wohnung eignet sich auch ideal für WGs: Drei ähnlich große Zimmer bieten Platz und Privatsphäre für jeden Bewohner und zusätzlich gibt es noch eine große Küche als Gemeinschaftsraum.
Diese Wohnung ist die perfekte Kombination aus modernem Wohnen und zentraler Lage.
                                            Highlights:
* Komplett saniert: Die Wohnung wurde frisch saniert.
* Alle Fenster wurden ausgetauscht: Helle Räume mit modernen, energieeffizienten Fenstern.
* Alle Wände wurden aufgearbeitet, neu tapeziert und weiß gestrichen: Frischer Anstrich für ein helles, einladendes Ambiente.
* Sämtliche Elektroinstallationen wurden auf den neusten Stand gebracht: Inklusiver einer moderne Unterverteilung und dem Austausch aller Kabel in den Wänden.
* Es gibt Netzwerkanschlüsse in allen Wohnräumen für ein modernes Wohnen und Arbeiten.
* Sämtliche Bodenbeläge wurden ausgetauscht. Der Boden in der Küche wird nach Abschluss der Arbeiten im Badezimmer verlegt.
* Abgehängte Decke im Flur: Die Decke im Flur wurde abgehängt und mit Spots ausgestattet, die für eine angenehme Atmosphäre sorgen.
* Das Badezimmer wird aktuell noch erneuert: Ein modernes und zeitgemäßes Badezimmer ist in Planung.
* Die Zentralheizung des Hauses wurde gerade komplett ausgetauscht und erneuert
Die Wohnung eignet sich auch ideal für WGs: Drei ähnlich große Zimmer bieten Platz und Privatsphäre für jeden Bewohner und zusätzlich gibt es noch eine große Küche als Gemeinschaftsraum.
Diese Wohnung ist die perfekte Kombination aus modernem Wohnen und zentraler Lage.
Lage
Heinrichstraße31137 Hildesheim
Hildesheim
Der aktuelle durchschnittliche Quadratmeterpreis beträgt 2.414,28 €/m² in Hildesheim.
                                                            Mit Immobilienpreisen
                                    Hildesheim vergleichen
                                                    
                                    Was kostet dein Umzug?
Du planst einen Umzug? Finde jetzt die günstigste Umzugsfirma in deiner Region!
                        Umzugskosten berechnen                    Schütze dich vor Betrug!
                            Leiste keinerlei Zahlung im Vorraus!
                            
Beachte unsere Sicherheitshinweise zum Thema Immobilienbetrug und lies, woran du solche Anzeigen erkennen kannst und wie du dich vor Betrügern schützt.
                        Anzeige melden                    Beachte unsere Sicherheitshinweise zum Thema Immobilienbetrug und lies, woran du solche Anzeigen erkennen kannst und wie du dich vor Betrügern schützt.
            *Anzeige
            
        
        
        Ähnliche Immobilien bei ImmoScout24
Hildesheim
            - Kaufpreis
 - 110.000 €
 
- Zimmer
 - 3 Zi.
 
- Fläche
 - 55 Zi.
 
Anbieter
privater AnbieterWeitere Ergebnisse für:
                Wohnungen
                    Hildesheim;
                Immobilien
                    Hildesheim;
                Haus mieten
                    Hildesheim;
                                    WG Zimmer
                        Hildesheim;
                                Wohnung
                    Hildesheim kaufen;
                Haus kaufen
                    Hildesheim;
                                    Immobilienpreise
                        Hildesheim                                                    Mietspiegel
                        Hildesheim                                wohnungsboerse.net übernimmt keine Gewähr für von Dritten gemachte Angaben
            










