
Etagenwohnung in Tutzing
Gemütliche Wohnung mit großem Westbalkon
auf der Karte ansehenUmzugskosten berechnen
- Kaufpreis
- 950.000 €
- Zimmer
- 3
- Fläche
- 96.79 m²
180 Aufrufe
Objekt-ID: 34175145
| Objekttyp: | Etagenwohnung |
| Zimmer: | 3 |
| Größe: | 96.79 m² |
| Verfügbar ab: | 2026 |
Preise & Kosten
| Kaufpreis: | 950.000 € |
| Jetzt kostenlos Finanzierungsangebot anfragen! | |
| Provision: | Ja |
| Preis/m²: | 9.815,06 € |
| Mit Immobilienpreisen Tutzing vergleichen | |
Immobilie
Balkon
Aufzug
Keller
| Baujahr: | 2026 |
| Befeuerungsart: | Holzpellets |
| Energieausweis: | Bedarfsausweis |
| Endenergiebedarf: | 58,30 kWh/(m²*a) |
| Energieeffizienzklasse: | B |
Objektbeschreibung
Das Projekt „Marienplatz Tutzing“ wurde in einem ästhetischen Architekturstil geplant, mit dem es sich ideal in die Umgebungsbebauung einfügt.
So führt es zu einer zurückhaltenden Aufwertung des Ortskerns. Der Architekten-Entwurf umfasst dabei 22 Wohnungen in hochwertigem Baustil sowie 2 Gewerbeeinheiten mit gesamt über 400 Quadratmetern Fläche.
Eine Übersicht des kompletten Bauprojektes sowie aller Einheiten finden Sie unter: www.marienplatz-tutzing.de
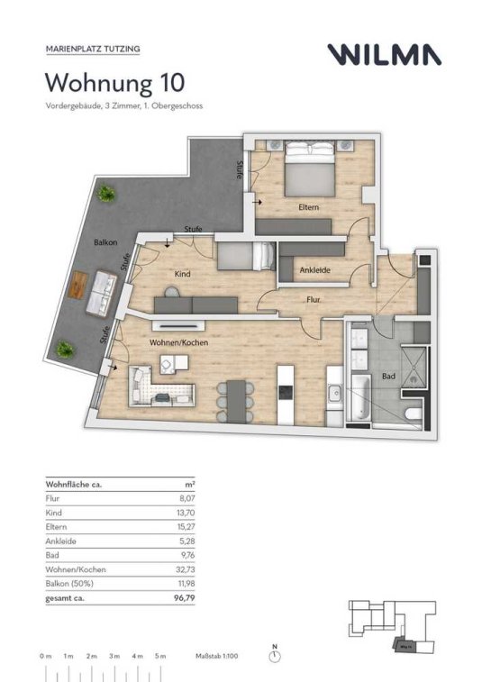
Diese 3-Zimmer-Wohnung befindet sich im 1. Obergeschoss des Vordergebäudes und bieten Ihnen einen großzügigen Balkon. Neben einer kleinen Abstellkammer im Eingangsbereich erreichen Sie über Ihren Flur das Badezimmer mit Badewanne, Dusche und Doppelwaschbecken. Ihr ca. 32 m² großes Wohnzimmer mit Küchenbereich lädt zum Verweilen ein und bietet Ihnen Zugang zum Balkon. Über das ca. 14 m² große Kinderzimmer, respektive Büro oder Gästezimmer gelangen Sie ebenso auf den Balkon. Vorbei an einer Ankleide liegt im nördlichen Bereich der Wohnung das ca. 15 m² große Elternschlafzimmer. Auch von hier können Sie Ihren Westbalkon genießen.
In der Umgebung des Marienplatz Tutzing an der Hauptstraße befinden sich Restaurants, Geschäfte, Freizeitangebote, Ärzte und vieles mehr nur wenige Schritte entfernt.
In den beiden Gebäudeteilen befinden sich insgesamt 22 Wohnungen von 1 bis 4 Zimmern und von ca. 49 m² Wfl. bis 164 m² Wfl.. Die Grundrisse der Wohnungen sind offen und hell gestaltet und die Auswahl der Materialien sind hochwertig.
Auch Ihr Pkw findet seinen Platz in der Tiefgarage auf seinem eigenen Stellplatz. Hier stehen optional zum Kauf Tiefgaragenstellplätze zur Verfügung. Diese sind nicht im Angebotspreis berücksichtigt.
Gerne unterstützen wir Sie mit über 300 angeschlossenen Partnerbanken, bei der Suche nach einer passenden Finanzierung - sprechen Sie uns an.
Haben wir Ihr Interesse geweckt? Schicken Sie uns gerne eine Anfrage zu diesem Objekt. Unser Team steht Ihnen für die Vereinbarung eines Besichtigungstermins oder weitere Fragen gerne zur Verfügung. Telefon: 08158-914830
So führt es zu einer zurückhaltenden Aufwertung des Ortskerns. Der Architekten-Entwurf umfasst dabei 22 Wohnungen in hochwertigem Baustil sowie 2 Gewerbeeinheiten mit gesamt über 400 Quadratmetern Fläche.
Eine Übersicht des kompletten Bauprojektes sowie aller Einheiten finden Sie unter: www.marienplatz-tutzing.de
Diese 3-Zimmer-Wohnung befindet sich im 1. Obergeschoss des Vordergebäudes und bieten Ihnen einen großzügigen Balkon. Neben einer kleinen Abstellkammer im Eingangsbereich erreichen Sie über Ihren Flur das Badezimmer mit Badewanne, Dusche und Doppelwaschbecken. Ihr ca. 32 m² großes Wohnzimmer mit Küchenbereich lädt zum Verweilen ein und bietet Ihnen Zugang zum Balkon. Über das ca. 14 m² große Kinderzimmer, respektive Büro oder Gästezimmer gelangen Sie ebenso auf den Balkon. Vorbei an einer Ankleide liegt im nördlichen Bereich der Wohnung das ca. 15 m² große Elternschlafzimmer. Auch von hier können Sie Ihren Westbalkon genießen.
In der Umgebung des Marienplatz Tutzing an der Hauptstraße befinden sich Restaurants, Geschäfte, Freizeitangebote, Ärzte und vieles mehr nur wenige Schritte entfernt.
In den beiden Gebäudeteilen befinden sich insgesamt 22 Wohnungen von 1 bis 4 Zimmern und von ca. 49 m² Wfl. bis 164 m² Wfl.. Die Grundrisse der Wohnungen sind offen und hell gestaltet und die Auswahl der Materialien sind hochwertig.
Auch Ihr Pkw findet seinen Platz in der Tiefgarage auf seinem eigenen Stellplatz. Hier stehen optional zum Kauf Tiefgaragenstellplätze zur Verfügung. Diese sind nicht im Angebotspreis berücksichtigt.
Gerne unterstützen wir Sie mit über 300 angeschlossenen Partnerbanken, bei der Suche nach einer passenden Finanzierung - sprechen Sie uns an.
Haben wir Ihr Interesse geweckt? Schicken Sie uns gerne eine Anfrage zu diesem Objekt. Unser Team steht Ihnen für die Vereinbarung eines Besichtigungstermins oder weitere Fragen gerne zur Verfügung. Telefon: 08158-914830
Lage
82327 TutzingTutzing
Der aktuelle durchschnittliche Quadratmeterpreis beträgt 8.545,26 €/m² in Tutzing.
Mit Immobilienpreisen
Tutzing vergleichen
Was kostet dein Umzug?
Du planst einen Umzug? Finde jetzt die günstigste Umzugsfirma in deiner Region!
Umzugskosten berechnen Schütze dich vor Betrug!
Leiste keinerlei Zahlung im Vorraus!
Beachte unsere Sicherheitshinweise zum Thema Immobilienbetrug und lies, woran du solche Anzeigen erkennen kannst und wie du dich vor Betrügern schützt.
Anzeige melden Beachte unsere Sicherheitshinweise zum Thema Immobilienbetrug und lies, woran du solche Anzeigen erkennen kannst und wie du dich vor Betrügern schützt.
*Anzeige
Ähnliche Immobilien bei ImmoScout24
Tutzing
- Kaufpreis
- 900.000 €
- Zimmer
- 3 Zi.
- Fläche
- 90 Zi.
Anbieter
Weitere Ergebnisse für:
Wohnungen
Tutzing;
Immobilien
Tutzing;
Haus mieten
Tutzing;
WG Zimmer
Tutzing;
Wohnung
Tutzing kaufen;
Haus kaufen
Tutzing;
Immobilienpreise
Tutzing Mietspiegel
Tutzing wohnungsboerse.net übernimmt keine Gewähr für von Dritten gemachte Angaben