Ein- / Zweifamilienhaus zum kaufen in Stadland
Großzügig. Idyllisch, Energieeffizent. Friesenhaus direkt am Wasser
auf der Karte ansehenUmzugskosten berechnen
- Kaufpreis
- 359.000 €
- Zimmer
- 7
- Fläche
- 267 m²
505 Aufrufe
Objekt-ID: 34795514
| Objekttyp: | Ein- / Zweifamilienhaus |
| Zimmer: | 7 |
| Größe: | 267.00 m² |
| Grundstücksfläche: | 489,00 m² |
| Etage: | 2 |
| Verfügbar ab: | 01.07.2024 |
Preise & Kosten
| Kaufpreis: | 359.000 € |
| Jetzt kostenlos Finanzierungsangebot anfragen! | |
| Garage/Stellplatz Kaufpreis: |
0 € |
| Preis/m²: | 1.344,57 € |
| Mit Immobilienpreisen Stadland vergleichen | |
Immobilie
Balkon
Garten
Einbauküche
Keller
Altbau
Tiere erlaubt
Behindertengerecht
| Baujahr: | 1864 |
| Objektzustand: | saniert |
| Befeuerungsart: | Gas |
| Energieausweis: | Energieausweis in Vorbereitung |
| Energieverbrauchskennwert: | 96,00 kWh/(m²*a) |
| Energieverbrauch für Warmwasser enthalten? | Ja |
Objektbeschreibung
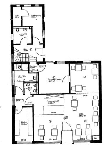
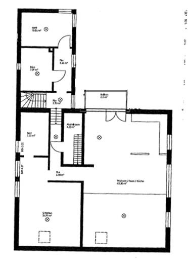
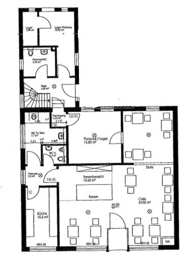
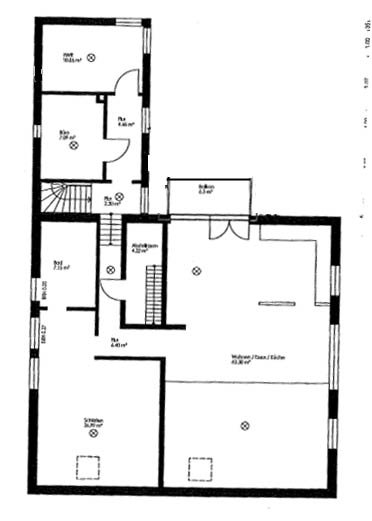
Die offene Raumaufteilung dieses Hauses mit ca. 267 qm Wohn- und ca. 70 qm Nutzfläche bieten alle Möglichkeiten für neue, individuelle Wohnträume. (Gesamtfläche: ca. 337 qm)
Sie können sofort einziehen und sich wohlfühlen.
Ihr neues Zuhause überzeugt mit
• stuckverzierten Raumhöhen von ca. 2,60 – 3,20 m,
• zwei Küchen,
• zwei Bädern (ein Wannen- und ein Duschbad mit Dampfsauna),
• eine weitere Toilette,
• ein behindertengerechtes WC mit Ausbaureserve zu einem vollständigen Bad
• weiteren 7 Zimmern,
• 3-fach-Verglasung mit Schallschutz,
• Elektro-Tankstelle,
• Einbauküche,
• Elektrische Rollläden im Erdgeschoss,
• kleinen Besonderheiten, wie Leder-bezogenen Türgriffe und Treppenstufen.
Die Heizung wurde 2016/17 komplett erneuert und mit einem modernen Brennwertkessel ausgestattet.
Eine Komplettsanierung (Fenster, Türen, Strom, Dämmung im Dach und Zwischendecken) erfolgte ebenfalls 2017. Eine Außendämmung wurde 2022 angebracht.
Lage:
Das Haus liegt in der Nähe des Ortskerns Rodenkirchen, nur wenige Gehminuten von
• Schulen,
• Kindergärten,
• Einkaufen,
• Ärzte,
• medizinische Versorgung
und allen sonstigen Einrichtungen des täglichen Bedarfs entfernt.
Bahn und Bus sind im selben Abstand von weniger als 1 km zu finden.
Die Autobahn Richtung Bremen erreichen Sie in wenigen Autominuten.
Rodenkirchen ist sehr zentral gelegen in der Wesermarsch zwischen Oldenburg, Bremerhaven und Bremen. Auch Wilhelmshaven ist schnell zu erreichen.
Sie können sofort einziehen und sich wohlfühlen.
Ihr neues Zuhause überzeugt mit
• stuckverzierten Raumhöhen von ca. 2,60 – 3,20 m,
• zwei Küchen,
• zwei Bädern (ein Wannen- und ein Duschbad mit Dampfsauna),
• eine weitere Toilette,
• ein behindertengerechtes WC mit Ausbaureserve zu einem vollständigen Bad
• weiteren 7 Zimmern,
• 3-fach-Verglasung mit Schallschutz,
• Elektro-Tankstelle,
• Einbauküche,
• Elektrische Rollläden im Erdgeschoss,
• kleinen Besonderheiten, wie Leder-bezogenen Türgriffe und Treppenstufen.
Die Heizung wurde 2016/17 komplett erneuert und mit einem modernen Brennwertkessel ausgestattet.
Eine Komplettsanierung (Fenster, Türen, Strom, Dämmung im Dach und Zwischendecken) erfolgte ebenfalls 2017. Eine Außendämmung wurde 2022 angebracht.
Lage:
Das Haus liegt in der Nähe des Ortskerns Rodenkirchen, nur wenige Gehminuten von
• Schulen,
• Kindergärten,
• Einkaufen,
• Ärzte,
• medizinische Versorgung
und allen sonstigen Einrichtungen des täglichen Bedarfs entfernt.
Bahn und Bus sind im selben Abstand von weniger als 1 km zu finden.
Die Autobahn Richtung Bremen erreichen Sie in wenigen Autominuten.
Rodenkirchen ist sehr zentral gelegen in der Wesermarsch zwischen Oldenburg, Bremerhaven und Bremen. Auch Wilhelmshaven ist schnell zu erreichen.
Lage
Friesenplatz26935 Stadland
Stadland
Der aktuelle durchschnittliche Quadratmeterpreis beträgt 1.391,39 €/m² in Stadland.
Mit Immobilienpreisen
Stadland vergleichen
Was kostet dein Umzug?
Du planst einen Umzug? Finde jetzt die günstigste Umzugsfirma in deiner Region!
Umzugskosten berechnen Schütze dich vor Betrug!
Leiste keinerlei Zahlung im Vorraus!
Beachte unsere Sicherheitshinweise zum Thema Immobilienbetrug und lies, woran du solche Anzeigen erkennen kannst und wie du dich vor Betrügern schützt.
Anzeige melden Beachte unsere Sicherheitshinweise zum Thema Immobilienbetrug und lies, woran du solche Anzeigen erkennen kannst und wie du dich vor Betrügern schützt.
*Anzeige
Ähnliche Häuser bei ImmoScout24
Stadland
- Kaufpreis
- 310.000 €
- Zimmer
- 7 Zi.
- Fläche
- 260 Zi.
Anbieter
privater AnbieterWeitere Ergebnisse für:
Wohnungen
Stadland;
Immobilien
Stadland;
Haus mieten
Stadland;
WG Zimmer
Stadland;
Wohnung
Stadland kaufen;
Haus kaufen
Stadland;
Immobilienpreise
Stadland Mietspiegel
Stadland wohnungsboerse.net übernimmt keine Gewähr für von Dritten gemachte Angaben












