
Erdgeschosswohnung in Ransbach-Baumbach
PROVISIONSFREI für Käufer!!! – Mit Terrassenfläche, Kellerraum, 2 Tiefgaragen-Stellplätze!
auf der Karte ansehenUmzugskosten berechnen
- Kaufpreis
- 302.200 €
- Zimmer
- 3
- Fläche
- 77.6 m²
204 Aufrufe
Objekt-ID: 35512432
| Objekttyp: | Erdgeschosswohnung |
| Zimmer: | 3 |
| Größe: | 77.60 m² |
| Verfügbar ab: | keine Angabe |
Preise & Kosten
| Kaufpreis: | 302.200 € |
| Jetzt kostenlos Finanzierungsangebot anfragen! | |
| Provision: | Nein |
| Preis/m²: | 3.894,33 € |
| Mit Immobilienpreisen Ransbach-Baumbach vergleichen | |
Immobilie
Terrasse
Aufzug
Garage
Keller
| Baujahr: | 2025 |
| Energieausweis: | Energieausweis nicht notwendig (Denkmalschutz) |
Objektbeschreibung
Die Wohnung:
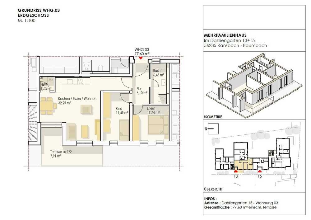
Die hier angebotene 3-Zimmer-Wohnung befindet sich im Erdgeschoss und verfügt über eine Wohnfläche von ca. 77,60 m². Vom Flur- und Eingangsbereich betreten Sie den offenen und ca. 32,25 m² großen Wohn-, Ess- und Küchenbereich mit Zugang zur einladenden Sonnenterrasse. Ebenfalls vom Flur aus betreten Sie das Elternzimmer, das Kinderzimmer sowie abschließend das Badezimmer. Ein praktischer Hauswirtschaftsraum rundet die Wohnräumlichkeiten ab.
Die Wohnung erreichen Sie zudem barrierefrei. Weiterhin wartet dieses Wohnungsangebot mit den beiden im Kaufpreis bereits inbegriffenen Tiefgaragen-Stellplätzen und dem separaten Kellerraum auf.
Das gesamte Mehrfamilienhaus und somit auch jede der einzelnen Wohnungen wird nach dem Energiestandard KfW 55 gebaut. Der Aufzug fährt bis in den Keller mit Zugang zur Tiefgarage.
Die Beheizung ist als Zentralheizung mit Luft-Wasser-Wärmepumpe vorgesehen. Raumthermostate werden zur Einzelsteuerung der Fußbodenheizung in den jeweiligen Räumen eingebaut. Die Warmwasserversorgung erfolgt dezentral. Die Stromversorgung für die Wärmeversorgung und den Allgemeinstrom erfolgt über eine Photovoltaikanlage auf dem Gebäude in Verbindung mit einem Strompufferspeicher.
Die hier angebotene 3-Zimmer-Wohnung befindet sich im Erdgeschoss und verfügt über eine Wohnfläche von ca. 77,60 m². Vom Flur- und Eingangsbereich betreten Sie den offenen und ca. 32,25 m² großen Wohn-, Ess- und Küchenbereich mit Zugang zur einladenden Sonnenterrasse. Ebenfalls vom Flur aus betreten Sie das Elternzimmer, das Kinderzimmer sowie abschließend das Badezimmer. Ein praktischer Hauswirtschaftsraum rundet die Wohnräumlichkeiten ab.
Die Wohnung erreichen Sie zudem barrierefrei. Weiterhin wartet dieses Wohnungsangebot mit den beiden im Kaufpreis bereits inbegriffenen Tiefgaragen-Stellplätzen und dem separaten Kellerraum auf.
Das gesamte Mehrfamilienhaus und somit auch jede der einzelnen Wohnungen wird nach dem Energiestandard KfW 55 gebaut. Der Aufzug fährt bis in den Keller mit Zugang zur Tiefgarage.
Die Beheizung ist als Zentralheizung mit Luft-Wasser-Wärmepumpe vorgesehen. Raumthermostate werden zur Einzelsteuerung der Fußbodenheizung in den jeweiligen Räumen eingebaut. Die Warmwasserversorgung erfolgt dezentral. Die Stromversorgung für die Wärmeversorgung und den Allgemeinstrom erfolgt über eine Photovoltaikanlage auf dem Gebäude in Verbindung mit einem Strompufferspeicher.
Lage
56235 Ransbach-BaumbachRansbach-Baumbach
Der aktuelle durchschnittliche Quadratmeterpreis beträgt 3.281,33 €/m² in Ransbach-Baumbach.
Mit Immobilienpreisen
Ransbach-Baumbach vergleichen
Was kostet dein Umzug?
Du planst einen Umzug? Finde jetzt die günstigste Umzugsfirma in deiner Region!
Umzugskosten berechnen Schütze dich vor Betrug!
Leiste keinerlei Zahlung im Vorraus!
Beachte unsere Sicherheitshinweise zum Thema Immobilienbetrug und lies, woran du solche Anzeigen erkennen kannst und wie du dich vor Betrügern schützt.
Anzeige melden Beachte unsere Sicherheitshinweise zum Thema Immobilienbetrug und lies, woran du solche Anzeigen erkennen kannst und wie du dich vor Betrügern schützt.
*Anzeige
Ähnliche Immobilien bei ImmoScout24
Ransbach-Baumbach
- Kaufpreis
- 255.000 €
- Zimmer
- 3 Zi.
- Fläche
- 70 Zi.
Anbieter
Weitere Ergebnisse für:
Wohnungen
Ransbach-Baumbach;
Immobilien
Ransbach-Baumbach;
Haus mieten
Ransbach-Baumbach;
WG Zimmer
Ransbach-Baumbach;
Wohnung
Ransbach-Baumbach kaufen;
Haus kaufen
Ransbach-Baumbach;
Immobilienpreise
Ransbach-Baumbach Mietspiegel
Ransbach-Baumbach wohnungsboerse.net übernimmt keine Gewähr für von Dritten gemachte Angaben