
Loft in Maxdorf
*Top Gelegenheit für Handwerker*ca.250m² Großzügige Wohn-Etage, 3 WE möglich; Loft-WE u./o. Gewerbe
auf der Karte ansehenUmzugskosten berechnen
- Kaufpreis
- 358.800 €
- Zimmer
- 6
- Fläche
- 270 m²
120 Aufrufe
Objekt-ID: 37027640
| Objekttyp: | Loft |
| Zimmer: | 6 |
| Größe: | 270.00 m² |
| Verfügbar ab: | nach Absprache |
Preise & Kosten
| Kaufpreis: | 358.800 € |
| Jetzt kostenlos Finanzierungsangebot anfragen! | |
| Provision: | Ja |
| Preis/m²: | 1.328,89 € |
| Mit Immobilienpreisen Maxdorf vergleichen | |
Immobilie
Einbauküche
Keller
| Baujahr: | 1993 |
| Befeuerungsart: | Gas |
Objektbeschreibung
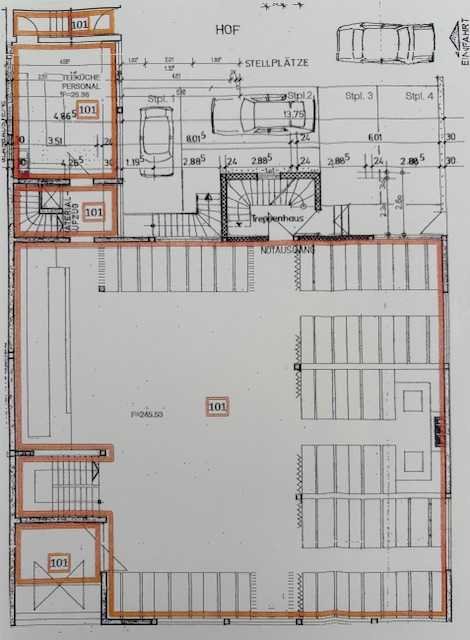
Die von uns exklusiv angebotenen Räumlichkeiten in Maxdorf befinden sich in einem 1993 in massiver Bauweise errichteten Mehrfamilienhaus.
Insgesamt gibt es noch 5 weitere Wohnungen im Haus. Aktuell wird die von uns angebotene, attraktive Teileinheit als Gewerbefläche genutzt. Die Teilungserklärung gestattet heute bereits die Wohnnutzung.
Der zukünftige Eigentümer kann die aktuelle Gewerbeeinheit weiter nutzen, oder alternativ eine großzügige Wohnung ohne weitere Wände, z.B. in Form eines Lofts, gestalten. Eine Wohn-Etage mit drei Eigentumswohnungen könnte ebenfalls auf der großzügigen Fläche errichtet werden. Die baulichen Möglichkeiten lassen hier viel Raum. Die Umnutzung Gewerbe in Wohnen soll vom neuen Eigentümer beantragt werden. Der Energieausweis ist in Bearbeitung und wird vorgelegt.
Im Untergeschoss sind Kellerräume, aktuell getrennte Toilettenanlagen für Damen und Herren, sowie ein Kühlhaus installiert.
Sämtliche Räumlichkeiten im Objekt sind gepflegt. Die Ausstattung entspricht im Wesentlichen dem Stand Baujahr 1993.
Zusätzlich werden 6 Stellplätze im Freien mit verkauft.
Das Objekt ist äußerst interessant aufgrund der vielfältigen Nutzungsmöglichkeiten.
Mit dem Erwerb bieten sich einmalige Möglichkeiten verschiedene Nutzungsarten zu realisieren. Verkauft wird das Sondereigentum als Gewerbeeinheit, so wie es heute genutzt wird. Fotos des Objekts werden aus diskretionsgründen nicht veröffentlicht. Bitte Schreiben Sie uns mit Ihren vollständigen Kontakt- und Adressdaten an.
Wir beraten Sie gerne!
Insgesamt gibt es noch 5 weitere Wohnungen im Haus. Aktuell wird die von uns angebotene, attraktive Teileinheit als Gewerbefläche genutzt. Die Teilungserklärung gestattet heute bereits die Wohnnutzung.
Der zukünftige Eigentümer kann die aktuelle Gewerbeeinheit weiter nutzen, oder alternativ eine großzügige Wohnung ohne weitere Wände, z.B. in Form eines Lofts, gestalten. Eine Wohn-Etage mit drei Eigentumswohnungen könnte ebenfalls auf der großzügigen Fläche errichtet werden. Die baulichen Möglichkeiten lassen hier viel Raum. Die Umnutzung Gewerbe in Wohnen soll vom neuen Eigentümer beantragt werden. Der Energieausweis ist in Bearbeitung und wird vorgelegt.
Im Untergeschoss sind Kellerräume, aktuell getrennte Toilettenanlagen für Damen und Herren, sowie ein Kühlhaus installiert.
Sämtliche Räumlichkeiten im Objekt sind gepflegt. Die Ausstattung entspricht im Wesentlichen dem Stand Baujahr 1993.
Zusätzlich werden 6 Stellplätze im Freien mit verkauft.
Das Objekt ist äußerst interessant aufgrund der vielfältigen Nutzungsmöglichkeiten.
Mit dem Erwerb bieten sich einmalige Möglichkeiten verschiedene Nutzungsarten zu realisieren. Verkauft wird das Sondereigentum als Gewerbeeinheit, so wie es heute genutzt wird. Fotos des Objekts werden aus diskretionsgründen nicht veröffentlicht. Bitte Schreiben Sie uns mit Ihren vollständigen Kontakt- und Adressdaten an.
Wir beraten Sie gerne!
Lage
67133 MaxdorfMaxdorf
Der aktuelle durchschnittliche Quadratmeterpreis beträgt 3.209,08 €/m² in Maxdorf.
Mit Immobilienpreisen
Maxdorf vergleichen
Was kostet dein Umzug?
Du planst einen Umzug? Finde jetzt die günstigste Umzugsfirma in deiner Region!
Umzugskosten berechnen Schütze dich vor Betrug!
Leiste keinerlei Zahlung im Vorraus!
Beachte unsere Sicherheitshinweise zum Thema Immobilienbetrug und lies, woran du solche Anzeigen erkennen kannst und wie du dich vor Betrügern schützt.
Anzeige melden Beachte unsere Sicherheitshinweise zum Thema Immobilienbetrug und lies, woran du solche Anzeigen erkennen kannst und wie du dich vor Betrügern schützt.
*Anzeige
Ähnliche Immobilien bei ImmoScout24
Maxdorf
- Kaufpreis
- 310.000 €
- Zimmer
- 6 Zi.
- Fläche
- 260 Zi.
Anbieter
Weitere Ergebnisse für:
Wohnungen
Maxdorf;
Immobilien
Maxdorf;
Haus mieten
Maxdorf;
WG Zimmer
Maxdorf;
Wohnung
Maxdorf kaufen;
Haus kaufen
Maxdorf;
Immobilienpreise
Maxdorf Mietspiegel
Maxdorf wohnungsboerse.net übernimmt keine Gewähr für von Dritten gemachte Angaben