Einfamilienhaus zum kaufen in Rheinau
Einfamilienhaus mit großem Garten & Pool
auf der Karte ansehenUmzugskosten berechnen
- Kaufpreis
- 480.000 €
- Zimmer
- 3
- Fläche
- 124.49 m²
226 Aufrufe
Objekt-ID: 37146639
| Objekttyp: | Einfamilienhaus |
| Zimmer: | 3 |
| Größe: | 124.49 m² |
| Grundstücksfläche: | 764,00 m² |
| Verfügbar ab: | 01.06.2025 |
Preise & Kosten
| Kaufpreis: | 480.000 € |
| Jetzt kostenlos Finanzierungsangebot anfragen! | |
| Preis/m²: | 3.855,73 € |
| Mit Immobilienpreisen Rheinau vergleichen | |
Immobilie
Balkon
Terrasse
Garten
Dachterrasse
Einbauküche
Neubau
Behindertengerecht
Teilmöbliert
| Baujahr: | 2018 |
| Objektzustand: | gepflegt |
| Energieausweis: | Energieausweis in Vorbereitung |
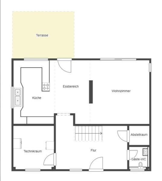
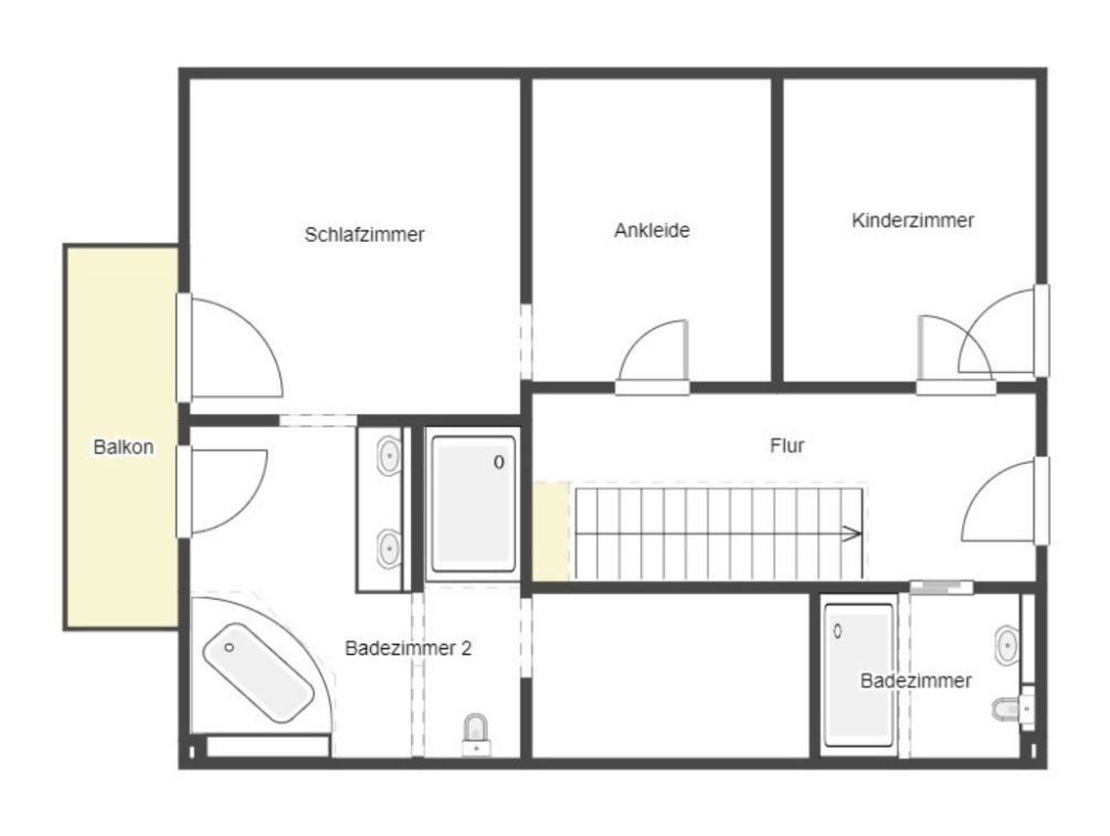
Objektbeschreibung
Es handelt sich hier um eine Immobilie auf Erbbaugrund. Der Erbbauvertrag läuft noch bis 31.12.2116 und der jährliche Erbbauzins beträgt ca. 5.100 €.
In Rheinau präsentiert sich diese Immobilie als Familientraum. Vorteilhaft am Stadtrand gelegen, profitieren Sie hier von einer ruhigen Umgebung und gleichzeitig von einer guten Anbindung an die Innenstadt. Ihren Top-Zustand verdankt die 2018 erbaute Immobilie einem stets pfleglichen Umgang. Mit Wärmepumpenheizung und Strom als Hauptenergieträger und einer Energieeffizienzklasse von A präsentiert sich die Energieversorgung durchaus nachhaltig.
Insgesamt 3 Zimmer und etwa 124,49 m² Wohnfläche bietet unter anderem 2 Schlafzimmer und somit ideale Bedingungen für Paare und Familien. Zum Grundriss der Immobilie gehören außerdem 2 Badezimmer mit Dusche und Badewanne sowie Gäste-WC. Die Ausstattung mit einer Einbauküche erleichtert den zukünftigen Bewohnern den Alltag. Elektrische Jalousien, eine Fußbodenheizung sowie eine Video-Türsprechanlage gehören ebenfalls zu den Ausstattungsmerkmalen. Spa-Flair können Sie wunderbar dank eines eigenen Swimmingpools genießen.
Genuss an warmen Sommertagen: Hier verlegen Sie Freizeit und Beisammensein mühelos unter freien Himmel. Dafür steht Ihnen neben einem Balkon auch ein ca. 764 m² großes Grundstück zur Verfügung. Ganz besonders besticht das Haus hier durch den großen Garten mit Terrasse, der als absolutes Highlight herausragt. Abschließend sorgen auf Ihrem Grundstück zudem 2 Carports und 2
In Rheinau präsentiert sich diese Immobilie als Familientraum. Vorteilhaft am Stadtrand gelegen, profitieren Sie hier von einer ruhigen Umgebung und gleichzeitig von einer guten Anbindung an die Innenstadt. Ihren Top-Zustand verdankt die 2018 erbaute Immobilie einem stets pfleglichen Umgang. Mit Wärmepumpenheizung und Strom als Hauptenergieträger und einer Energieeffizienzklasse von A präsentiert sich die Energieversorgung durchaus nachhaltig.
Insgesamt 3 Zimmer und etwa 124,49 m² Wohnfläche bietet unter anderem 2 Schlafzimmer und somit ideale Bedingungen für Paare und Familien. Zum Grundriss der Immobilie gehören außerdem 2 Badezimmer mit Dusche und Badewanne sowie Gäste-WC. Die Ausstattung mit einer Einbauküche erleichtert den zukünftigen Bewohnern den Alltag. Elektrische Jalousien, eine Fußbodenheizung sowie eine Video-Türsprechanlage gehören ebenfalls zu den Ausstattungsmerkmalen. Spa-Flair können Sie wunderbar dank eines eigenen Swimmingpools genießen.
Genuss an warmen Sommertagen: Hier verlegen Sie Freizeit und Beisammensein mühelos unter freien Himmel. Dafür steht Ihnen neben einem Balkon auch ein ca. 764 m² großes Grundstück zur Verfügung. Ganz besonders besticht das Haus hier durch den großen Garten mit Terrasse, der als absolutes Highlight herausragt. Abschließend sorgen auf Ihrem Grundstück zudem 2 Carports und 2
Lage
Max-Beckmann-Weg.77866 Rheinau
Rheinau
Der aktuelle durchschnittliche Quadratmeterpreis beträgt 3.133,21 €/m² in Rheinau.
Mit Immobilienpreisen
Rheinau vergleichen
Was kostet dein Umzug?
Du planst einen Umzug? Finde jetzt die günstigste Umzugsfirma in deiner Region!
Umzugskosten berechnen Schütze dich vor Betrug!
Leiste keinerlei Zahlung im Vorraus!
Beachte unsere Sicherheitshinweise zum Thema Immobilienbetrug und lies, woran du solche Anzeigen erkennen kannst und wie du dich vor Betrügern schützt.
Anzeige melden Beachte unsere Sicherheitshinweise zum Thema Immobilienbetrug und lies, woran du solche Anzeigen erkennen kannst und wie du dich vor Betrügern schützt.
*Anzeige
Ähnliche Häuser bei ImmoScout24
Rheinau
- Kaufpreis
- 430.000 €
- Zimmer
- 3 Zi.
- Fläche
- 115 Zi.
Anbieter
privater AnbieterWeitere Ergebnisse für:
Wohnungen
Rheinau;
Immobilien
Rheinau;
Haus mieten
Rheinau;
WG Zimmer
Rheinau;
Wohnung
Rheinau kaufen;
Haus kaufen
Rheinau;
Immobilienpreise
Rheinau Mietspiegel
Rheinau wohnungsboerse.net übernimmt keine Gewähr für von Dritten gemachte Angaben

















