
Etagenwohnung in Leipzig-Sellerhausen-Stünz
Kaufen statt Mieten * Förderfähiger NEUBAU * 5 Zimmer * KFW 40 und QNG
auf der Karte ansehenUmzugskosten berechnen
- Kaufpreis
 - 575.120 €
 
- Zimmer
 - 5
 
- Fläche
 - 110.6 m²
 
                    73 Aufrufe
                    
                
                Objekt-ID: 37272296
| Objekttyp: | Etagenwohnung | 
| Zimmer: | 5 | 
| Größe: | 110.60 m² | 
| Etage: | 4 von 4 | 
| Verfügbar ab: | 2027 | 
Preise & Kosten
| Kaufpreis: | 575.120 € | 
| Jetzt kostenlos Finanzierungsangebot anfragen! | |
| Provision: | Nein | 
| Preis/m²: | 5.200,00 € | 
| Mit Immobilienpreisen Leipzig vergleichen | |
Immobilie
                                    Balkon
                                
                                                            
                                    Garten
                                
                                                            
                                    Aufzug
                                
                                                            
                                    Neubau
                                
                                                            
                                    Behindertengerecht
                                
                                                    | Baujahr: | 2027 | 
| Befeuerungsart: | Strom | 
| Energieausweis: | Bedarfsausweis | 
| Endenergiebedarf: | 13,00 kWh/(m²*a) | 
| Energieeffizienzklasse: | A+ | 
Objektbeschreibung
                            Ein nachhaltiges Projekt 
Wer baut, übernimmt Verantwortung für die Zukunft. Neben dem Anspruch, ein gestalterisch möglichst zeitloses Gebäude zu schaffen, möchten wir auch konstruktiv nachhaltig bauen. So werden wir die tragende Konstruktion der Wohngeschosse aus Holz ausführen. Dieses wird in den Wohnungen an den Decken sichtbar sein. Die nachhaltige Fassadenkonstruktion besteht aus
vorgehängten Faserzementplatten.
Die Wärmeversorgung erfolgt mit einer Wärmepumpe. Der hierfür benötigte Strom kommt teilweise aus einer etwa 160 qm großen Solarstromanlage auf dem Dach. Zusammen mit der Dreifach-Verglasung und der Dämmung der opaken Bauteile werden die geltenden Standards zum Klimaschutz und der Nachhaltigkeit übertroffen. Es wird der KfW-Standard EH 40 mit QNG erreicht. Damit kommen für Sie bis zu drei KfW- Förderprogramme (124, 297 bzw. 298 und 300) in Frage. Für Kapitalanleger gilt die degressive 5%-Abschreibung sowie die Sonderabschreibung für QNG.
Eine lebendige Gemeinschaft
Die Wohnungsgrößen haben wir so angelegt, dass eine dynamische soziale Gemeinschaft entstehen kann. So finden Familien ebenso ein Zuhause wie Bewohner, die auf der Suche nach einer praktischen Wohnung für den Ruhestand sind. Treffpunkte für die Gemeinschaft sind der Garten und die Dachterrasse.
Ein zeitgenössisches Haus
Das Gebäude verfügt über 4 Wohnetagen, sowie über einen Dachboden und ein Erdgeschoss. Über den Aufzug können alle Stockwerke erreicht werden. Die Fassaden sind Ausdruck einer modernen Haltung, ohne modisch zu sein. Wichtig sind uns gute Proportionen und Nutzbarkeit. Die straßenseitige Fassade fügt sich mit den homogenen Fensterformaten und eingerückten Loggien in die gründerzeitliche Nachbarbebauung ein. Die stärker aufgelockerte hofseitige Fassade interagiert über den Laubengang und die Balkone mit dem Freiraum. Zur Straße hin und teilweise zum Hof hin werden die Fenster mit Senkrechtmarkisen mit Ausstellfunktion ausgestattet.
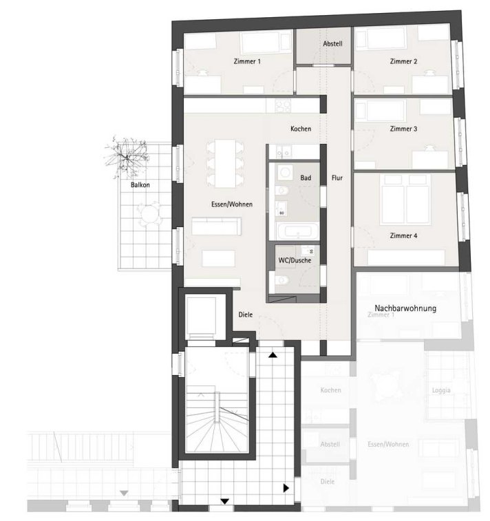
Wohnungen
Die Grundrisse mit 1 bis 6 Zimmern bieten eine ausgewogene Mischung aus Großzügigkeit und pragmatischer Nutzbarkeit. Die meisten Einheiten sind durch den Baukörper durchgesteckt.
                                                    
                                            Wer baut, übernimmt Verantwortung für die Zukunft. Neben dem Anspruch, ein gestalterisch möglichst zeitloses Gebäude zu schaffen, möchten wir auch konstruktiv nachhaltig bauen. So werden wir die tragende Konstruktion der Wohngeschosse aus Holz ausführen. Dieses wird in den Wohnungen an den Decken sichtbar sein. Die nachhaltige Fassadenkonstruktion besteht aus
vorgehängten Faserzementplatten.
Die Wärmeversorgung erfolgt mit einer Wärmepumpe. Der hierfür benötigte Strom kommt teilweise aus einer etwa 160 qm großen Solarstromanlage auf dem Dach. Zusammen mit der Dreifach-Verglasung und der Dämmung der opaken Bauteile werden die geltenden Standards zum Klimaschutz und der Nachhaltigkeit übertroffen. Es wird der KfW-Standard EH 40 mit QNG erreicht. Damit kommen für Sie bis zu drei KfW- Förderprogramme (124, 297 bzw. 298 und 300) in Frage. Für Kapitalanleger gilt die degressive 5%-Abschreibung sowie die Sonderabschreibung für QNG.
Eine lebendige Gemeinschaft
Die Wohnungsgrößen haben wir so angelegt, dass eine dynamische soziale Gemeinschaft entstehen kann. So finden Familien ebenso ein Zuhause wie Bewohner, die auf der Suche nach einer praktischen Wohnung für den Ruhestand sind. Treffpunkte für die Gemeinschaft sind der Garten und die Dachterrasse.
Ein zeitgenössisches Haus
Das Gebäude verfügt über 4 Wohnetagen, sowie über einen Dachboden und ein Erdgeschoss. Über den Aufzug können alle Stockwerke erreicht werden. Die Fassaden sind Ausdruck einer modernen Haltung, ohne modisch zu sein. Wichtig sind uns gute Proportionen und Nutzbarkeit. Die straßenseitige Fassade fügt sich mit den homogenen Fensterformaten und eingerückten Loggien in die gründerzeitliche Nachbarbebauung ein. Die stärker aufgelockerte hofseitige Fassade interagiert über den Laubengang und die Balkone mit dem Freiraum. Zur Straße hin und teilweise zum Hof hin werden die Fenster mit Senkrechtmarkisen mit Ausstellfunktion ausgestattet.
Wohnungen
Die Grundrisse mit 1 bis 6 Zimmern bieten eine ausgewogene Mischung aus Großzügigkeit und pragmatischer Nutzbarkeit. Die meisten Einheiten sind durch den Baukörper durchgesteckt.
Lage
Julius-Krause-Straße04318 Leipzig
Leipzig Sellerhausen-Stünz
Der aktuelle durchschnittliche Quadratmeterpreis beträgt 3.284,08 €/m² in Leipzig - Sellerhausen-Stünz. Der durchschnittliche Immobilienpreis in Leipzig liegt derzeit bei 3.471,50 €/m².
                                                            Mit Immobilienpreisen
                                    Leipzig vergleichen
                                                    
                                    Was kostet dein Umzug?
Du planst einen Umzug? Finde jetzt die günstigste Umzugsfirma in deiner Region!
                        Umzugskosten berechnen                    Schütze dich vor Betrug!
                            Leiste keinerlei Zahlung im Vorraus!
                            
Beachte unsere Sicherheitshinweise zum Thema Immobilienbetrug und lies, woran du solche Anzeigen erkennen kannst und wie du dich vor Betrügern schützt.
                        Anzeige melden                    Beachte unsere Sicherheitshinweise zum Thema Immobilienbetrug und lies, woran du solche Anzeigen erkennen kannst und wie du dich vor Betrügern schützt.
            *Anzeige
            
        
        
        Ähnliche Immobilien bei ImmoScout24
Leipzig-Sellerhausen-Stünz
            - Kaufpreis
 - 530.000 €
 
- Zimmer
 - 5 Zi.
 
- Fläche
 - 105 Zi.
 
Anbieter
Weitere Ergebnisse für:
                Wohnungen
                    Leipzig;
                Immobilien
                    Leipzig;
                Haus mieten
                    Leipzig;
                                    WG Zimmer
                        Leipzig;
                                Wohnung
                    Leipzig kaufen;
                Haus kaufen
                    Leipzig;
                                    Immobilienpreise
                        Leipzig                                                    Mietspiegel
                        Leipzig                                wohnungsboerse.net übernimmt keine Gewähr für von Dritten gemachte Angaben