
Einfamilienhaus zum kaufen in Knittlingen
Ihr Traumhaus in Perfektion - Bien-Zenker macht's möglich!
auf der Karte ansehenUmzugskosten berechnen
- Kaufpreis
- 876.999 €
- Zimmer
- 5
- Fläche
- 220 m²
48 Aufrufe
Objekt-ID: 37929067
| Objekttyp: | Einfamilienhaus |
| Zimmer: | 5 |
| Größe: | 220.00 m² |
| Grundstücksfläche: | 689,00 m² |
| Verfügbar ab: | keine Angabe |
Preise & Kosten
| Kaufpreis: | 876.999 € |
| Jetzt kostenlos Finanzierungsangebot anfragen! | |
| Provision: | Nein |
| Preis/m²: | 3.986,36 € |
| Mit Immobilienpreisen Knittlingen vergleichen | |
Immobilie
Objektbeschreibung
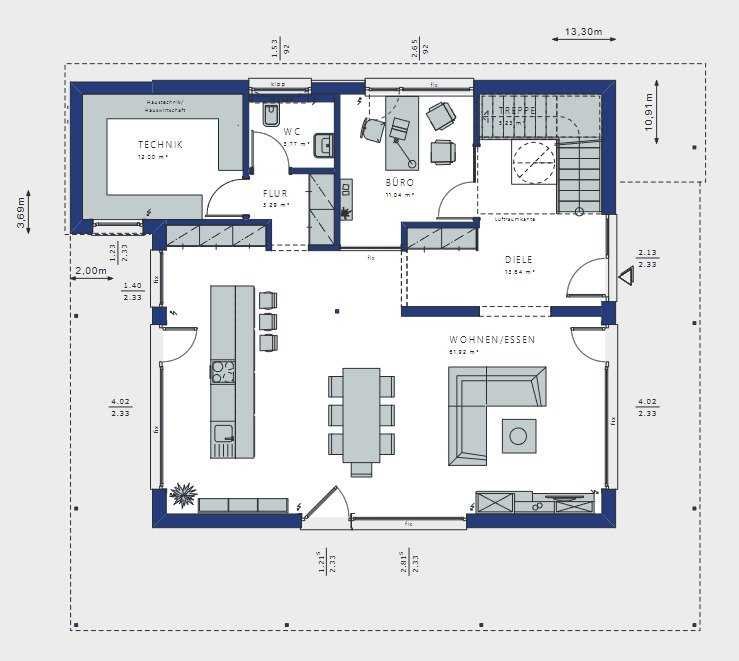
Das CONCEPT-M 177 von Bien-Zenker ist ein wahres Raumwunder auf zwei Ebenen, das Ihnen und Ihrer Familie alle Möglichkeiten zur persönlichen Entfaltung bietet. Auf einer großzügigen Wohnfläche von 220 m² verteilen sich insgesamt fünf Zimmer, die durchdacht konzipiert sind, um sowohl Gemeinschaft als auch Privatsphäre zu fördern. Im Erdgeschoss laden offene und lichtdurchflutete Räume zum Verweilen ein, während im Obergeschoss drei behagliche Schlafzimmer und zwei moderne Badezimmer für Ruhe und Rückzug sorgen. Diese intelligente Grundrissgestaltung macht das Haus ideal für Familien mit bis zu vier Personen.
Architektonisch besticht das Haus durch seine flexiblen Erweiterungsmöglichkeiten. Mit zusätzlichen Architektur-Bauteilen können Sie den Entwurf individuell an Ihre Wünsche anpassen und so Ihr persönliches Wohlfühlhaus schaffen. Ob eine zusätzliche Terrasse für laue Sommerabende oder ein großzügiger Balkon mit Blick ins Grüne - hier sind Ihren Vorstellungen keine Grenzen gesetzt.
Die angebotene Ausbaustufe "Schlüsselfertig" ermöglicht Ihnen einen stressfreien Bauprozess. Bien-Zenker übernimmt sämtliche Arbeiten vom Fundament bis hin zur letzten Schraube im Innenausbau. Sie profitieren von einem reibungslosen Ablauf ohne Planungsstress und können einfach einziehen, sobald alles fertiggestellt ist. Dies spart Ihnen nicht nur Zeit und Nerven, sondern steigert auch die Vorfreude auf Ihr neues Zuhause erheblich.
Bei Bien-Zenker ist es nie nur »Haus.« Es ist Zuhause, es ist Ankommen, es ist Familie. Bien-Zenker, das sind 80.000 gebaute Häuser, mehr als 700 Mitarbeitende und über 115 Jahre Erfolgsgeschichte. Der Pionier des Fertighauses mit Sitz im hessischen Schlüchtern zählt zu den größten und erfahrensten Fertighausanbietern Deutschlands. Dank Know-how, Leidenschaft und Einfühlungsvermögen wird jede Baufamilie individuell und kompetent beraten und unterstützt - bis sie den Schlüssel in die Tür des eigenen Heims stecken können. Mit wohngesunden Materialien und zukunftsweisenden Standards ist nicht nur jedes Bien-Zenker Haus für die Zukunft gerüstet, sondern auch jeder Bauherr.
Grundrisse und Abbildungen können Extras zeigen. Flächenangaben nach DIN 277.
Architektonisch besticht das Haus durch seine flexiblen Erweiterungsmöglichkeiten. Mit zusätzlichen Architektur-Bauteilen können Sie den Entwurf individuell an Ihre Wünsche anpassen und so Ihr persönliches Wohlfühlhaus schaffen. Ob eine zusätzliche Terrasse für laue Sommerabende oder ein großzügiger Balkon mit Blick ins Grüne - hier sind Ihren Vorstellungen keine Grenzen gesetzt.
Die angebotene Ausbaustufe "Schlüsselfertig" ermöglicht Ihnen einen stressfreien Bauprozess. Bien-Zenker übernimmt sämtliche Arbeiten vom Fundament bis hin zur letzten Schraube im Innenausbau. Sie profitieren von einem reibungslosen Ablauf ohne Planungsstress und können einfach einziehen, sobald alles fertiggestellt ist. Dies spart Ihnen nicht nur Zeit und Nerven, sondern steigert auch die Vorfreude auf Ihr neues Zuhause erheblich.
Bei Bien-Zenker ist es nie nur »Haus.« Es ist Zuhause, es ist Ankommen, es ist Familie. Bien-Zenker, das sind 80.000 gebaute Häuser, mehr als 700 Mitarbeitende und über 115 Jahre Erfolgsgeschichte. Der Pionier des Fertighauses mit Sitz im hessischen Schlüchtern zählt zu den größten und erfahrensten Fertighausanbietern Deutschlands. Dank Know-how, Leidenschaft und Einfühlungsvermögen wird jede Baufamilie individuell und kompetent beraten und unterstützt - bis sie den Schlüssel in die Tür des eigenen Heims stecken können. Mit wohngesunden Materialien und zukunftsweisenden Standards ist nicht nur jedes Bien-Zenker Haus für die Zukunft gerüstet, sondern auch jeder Bauherr.
Grundrisse und Abbildungen können Extras zeigen. Flächenangaben nach DIN 277.
Lage
75438 KnittlingenKnittlingen
Der aktuelle durchschnittliche Quadratmeterpreis beträgt 4.217,21 €/m² in Knittlingen.
Mit Immobilienpreisen
Knittlingen vergleichen
Was kostet dein Umzug?
Du planst einen Umzug? Finde jetzt die günstigste Umzugsfirma in deiner Region!
Umzugskosten berechnen Schütze dich vor Betrug!
Leiste keinerlei Zahlung im Vorraus!
Beachte unsere Sicherheitshinweise zum Thema Immobilienbetrug und lies, woran du solche Anzeigen erkennen kannst und wie du dich vor Betrügern schützt.
Anzeige melden Beachte unsere Sicherheitshinweise zum Thema Immobilienbetrug und lies, woran du solche Anzeigen erkennen kannst und wie du dich vor Betrügern schützt.
*Anzeige
Ähnliche Häuser bei ImmoScout24
Knittlingen
- Kaufpreis
- 830.000 €
- Zimmer
- 5 Zi.
- Fläche
- 210 Zi.
Anbieter
Weitere Ergebnisse für:
Wohnungen
Knittlingen;
Immobilien
Knittlingen;
Haus mieten
Knittlingen;
WG Zimmer
Knittlingen;
Wohnung
Knittlingen kaufen;
Haus kaufen
Knittlingen;
Immobilienpreise
Knittlingen Mietspiegel
Knittlingen wohnungsboerse.net übernimmt keine Gewähr für von Dritten gemachte Angaben