
Immobilie in Wiesmoor
* Neubau * Wärmepumpe * PV-Anlage * Fußbodenheizung * Terrasse * 2 Bäder * elektrische Jalousien *
auf der Karte ansehenUmzugskosten berechnen
- Kaufpreis
- 349.000 €
- Zimmer
- 4
- Fläche
- 116.48 m²
53 Aufrufe
Objekt-ID: 37979411
| Objekttyp: | Keine Angabe |
| Zimmer: | 4 |
| Größe: | 116.48 m² |
| Verfügbar ab: | keine Angabe |
Preise & Kosten
| Kaufpreis: | 349.000 € |
| Jetzt kostenlos Finanzierungsangebot anfragen! | |
| Provision: | Ja |
| Preis/m²: | 2.996,22 € |
| Mit Immobilienpreisen Wiesmoor vergleichen | |
Immobilie
Balkon
Terrasse
Neubau
Fußbodenheizung
Objektbeschreibung
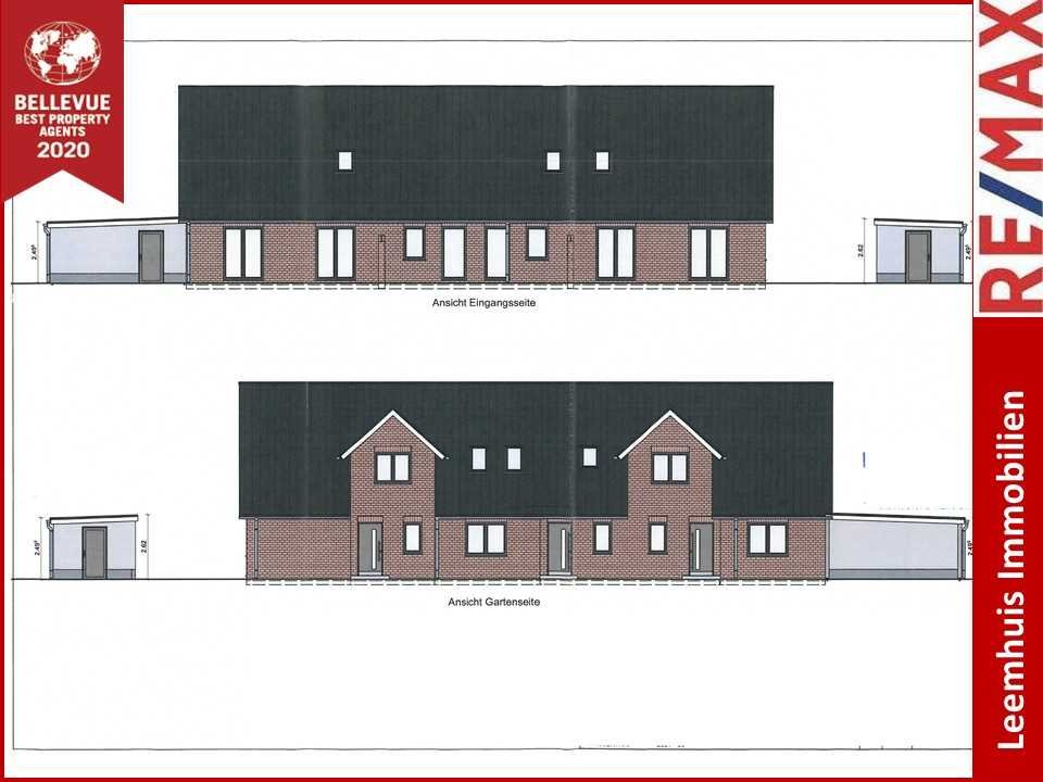
Zum Verkauf steht eine exklusive Neubau-Eigentumswohnung, die modernen Wohnkomfort mit nachhaltiger Energieeffizienz vereint. Auf einer Wohnfläche von ca. 116,80 m² bietet sich Ihnen ein großzügiges und durchdachtes Raumkonzept. Die außergewöhnliche Ausstattung dieser Immobilie wird durch eine innovative Wärmepumpe und eine leistungsstarke Photovoltaikanlage unterstrichen, die nicht nur zu einem umweltfreundlichen Lebensstil, sondern auch zu erheblichen Einsparungen bei den Energiekosten beitragen.
Raumaufteilung Wohneinheit 3:
Erdgeschoss:
- Wohnzimmer: ca. 19,50 m²
- Schlafzimmer: ca. 12,21 m²
- Küche: ca. 11,63 m²
- Bad: ca. 5,41 m²
- Flur: ca. 8,36 m²
- Abstellraum: ca. 5,08 m²
- Schuppen: ca. 2,52 m²
- Terrasse: ca. 31,12 m²
Obergeschoss:
- Zimmer I: ca. 14,29 m²
- Zimmer II: ca. 14,15 m²
- Abstellraum: ca. 6,50 m²
- Flur: ca. 3,55 m²
- Bad: ca. 7,84 m²
Raumaufteilung Wohneinheit 3:
Erdgeschoss:
- Wohnzimmer: ca. 19,50 m²
- Schlafzimmer: ca. 12,21 m²
- Küche: ca. 11,63 m²
- Bad: ca. 5,41 m²
- Flur: ca. 8,36 m²
- Abstellraum: ca. 5,08 m²
- Schuppen: ca. 2,52 m²
- Terrasse: ca. 31,12 m²
Obergeschoss:
- Zimmer I: ca. 14,29 m²
- Zimmer II: ca. 14,15 m²
- Abstellraum: ca. 6,50 m²
- Flur: ca. 3,55 m²
- Bad: ca. 7,84 m²
Lage
26639 WiesmoorWiesmoor
Der aktuelle durchschnittliche Quadratmeterpreis beträgt 3.021,12 €/m² in Wiesmoor.
Mit Immobilienpreisen
Wiesmoor vergleichen
Was kostet dein Umzug?
Du planst einen Umzug? Finde jetzt die günstigste Umzugsfirma in deiner Region!
Umzugskosten berechnen Schütze dich vor Betrug!
Leiste keinerlei Zahlung im Vorraus!
Beachte unsere Sicherheitshinweise zum Thema Immobilienbetrug und lies, woran du solche Anzeigen erkennen kannst und wie du dich vor Betrügern schützt.
Anzeige melden Beachte unsere Sicherheitshinweise zum Thema Immobilienbetrug und lies, woran du solche Anzeigen erkennen kannst und wie du dich vor Betrügern schützt.
*Anzeige
Ähnliche Immobilien bei ImmoScout24
Wiesmoor
- Kaufpreis
- 300.000 €
- Zimmer
- 4 Zi.
- Fläche
- 110 Zi.
Anbieter
Weitere Ergebnisse für:
Wohnungen
Wiesmoor;
Immobilien
Wiesmoor;
Haus mieten
Wiesmoor;
WG Zimmer
Wiesmoor;
Wohnung
Wiesmoor kaufen;
Haus kaufen
Wiesmoor;
Immobilienpreise
Wiesmoor Mietspiegel
Wiesmoor wohnungsboerse.net übernimmt keine Gewähr für von Dritten gemachte Angaben