
Etagenwohnung in Landshut-West
Barrierefreie 3-Zimmer-Whg. mit 15 m² Westbalkon
auf der Karte ansehenUmzugskosten berechnen
- Kaufpreis
- 638.800 €
- Zimmer
- 3
- Fläche
- 84.16 m²
                    22 Aufrufe
                    
                
                Objekt-ID: 38249473
| Objekttyp: | Etagenwohnung | 
| Zimmer: | 3 | 
| Größe: | 84.16 m² | 
| Etage: | 1 von 3 | 
| Verfügbar ab: | 01.07.2026 | 
Preise & Kosten
| Kaufpreis: | 638.800 € | 
| Jetzt kostenlos Finanzierungsangebot anfragen! | |
| Provision: | Nein | 
| Preis/m²: | 7.590,30 € | 
| Mit Immobilienpreisen Landshut vergleichen | |
Immobilie
                                    Balkon
                                
                                                            
                                    Aufzug
                                
                                                            
                                    Keller
                                
                                                            
                                    Behindertengerecht
                                
                                                    | Baujahr: | 2026 | 
| Befeuerungsart: | Umweltwärme | 
| Energieausweis: | Energieausweis in Vorbereitung | 
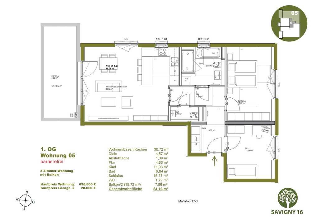
Objektbeschreibung
                            Es erwartet Sie eine perfekt geschnittene 3-Zimmer-Wohnung im ersten Obergeschoss einer im Bau befindlichen Wohnanlage mit nur 10 Wohneinheiten in Landshuter Vorzugslage zwischen Stadtpark und Isar. 
* großzügiges Wohnzimmer mit offener Küche zum Essplatz und zum Wohnbereich
* riesiger Westbalkon mit 15,72 m²
* Tageslichtbad mit Wanne und großer bodengleicher Dusche 140/80 cm
* Gäste WC
* geräumige Diele mit guten Stellmöglichkeiten
* großes Schlafzimmer mit bodentiefem Fenster und optimalen Bewegungsflächen (Barriefefreiheit)
* helles Kinder- oder Gästezimmer oder Büro mit bodentiefem Fenster
                                                    
                                            * großzügiges Wohnzimmer mit offener Küche zum Essplatz und zum Wohnbereich
* riesiger Westbalkon mit 15,72 m²
* Tageslichtbad mit Wanne und großer bodengleicher Dusche 140/80 cm
* Gäste WC
* geräumige Diele mit guten Stellmöglichkeiten
* großes Schlafzimmer mit bodentiefem Fenster und optimalen Bewegungsflächen (Barriefefreiheit)
* helles Kinder- oder Gästezimmer oder Büro mit bodentiefem Fenster
Lage
Savignystraße84034 Landshut
Landshut West
Der aktuelle durchschnittliche Quadratmeterpreis beträgt 5.486,61 €/m² in Landshut - West. Der durchschnittliche Immobilienpreis in Landshut liegt derzeit bei 5.062,15 €/m².
                                                            Mit Immobilienpreisen
                                    Landshut vergleichen
                                                    
                                    Was kostet dein Umzug?
Du planst einen Umzug? Finde jetzt die günstigste Umzugsfirma in deiner Region!
                        Umzugskosten berechnen                    Schütze dich vor Betrug!
                            Leiste keinerlei Zahlung im Vorraus!
                            
Beachte unsere Sicherheitshinweise zum Thema Immobilienbetrug und lies, woran du solche Anzeigen erkennen kannst und wie du dich vor Betrügern schützt.
                        Anzeige melden                    Beachte unsere Sicherheitshinweise zum Thema Immobilienbetrug und lies, woran du solche Anzeigen erkennen kannst und wie du dich vor Betrügern schützt.
            *Anzeige
             
        
         
        Ähnliche Immobilien bei ImmoScout24
Landshut-West
            - Kaufpreis
- 590.000 €
- Zimmer
- 3 Zi.
- Fläche
- 75 Zi.
Anbieter
Weitere Ergebnisse für:
                Wohnungen
                    Landshut;
                Immobilien
                    Landshut;
                Haus mieten
                    Landshut;
                                    WG Zimmer
                        Landshut;
                                Wohnung
                    Landshut kaufen;
                Haus kaufen
                    Landshut;
                                    Immobilienpreise
                        Landshut                                                    Mietspiegel
                        Landshut                                wohnungsboerse.net übernimmt keine Gewähr für von Dritten gemachte Angaben