
Maisonette-Wohnung in Trier-Irsch
Anstatt Eigentumswohnung - Neues Reihenhaus Trier-Irsch mit toller Dachterrasse und Weitblick
auf der Karte ansehenUmzugskosten berechnen
- Kaufpreis
- 589.000 €
- Zimmer
- 4
- Fläche
- 121 m²
40 Aufrufe
Objekt-ID: 38322357
Objekttyp: | Maisonette-Wohnung |
Zimmer: | 4 |
Größe: | 121.00 m² |
Verfügbar ab: | keine Angabe |
Preise & Kosten
Kaufpreis: | 589.000 € |
Jetzt kostenlos Finanzierungsangebot anfragen! |
Provision: | Nein |
Preis/m²: | 4.867,77 € |
Mit Immobilienpreisen Trier vergleichen |
Immobilie
Balkon
Terrasse
Dachterrasse
Baujahr: | 2025 |
Befeuerungsart: | Strom |
Energieausweis: | Bedarfsausweis |
Endenergiebedarf: | 16,00 kWh/(m²*a) |
Energieeffizienzklasse: | A+ |
Objektbeschreibung
Die Alternative zur Eigentumswohnung - Neues Stadthaus als Energiesparhaus mit toller Dachterrasse und herrlicher Weitsicht in schöner Lage von Trier-Irsch - Nahe Universität.
Neues Einfamilienreihenhaus in schöner Lage von Trier-Irsch. Das Haus entsteht in massiver Ausführung (Stein auf Stein) mit einem attraktiven Grundriss, guter Ausstattung sowie moderner Technik
Die Planung für dieses Objekt sieht im Erdgeschoß einen geräumigen Wohnraum mit offener Küche von insgesamt ca. 32 m² und Ausgang auf die sonnige Terrasse von ca. 15 m² und in den kleinen Garten vor. Das Erdgeschoß wird durch den Abstellraum sowie das Gäste-WC vervollständigt. Das Obergeschoß erreichen Sie über eine massive Treppe. Hier befindet sich das große Elternschlafzimmer von ca. 19 m² , ein schönes großes Kinderzimmer von ca. 18 m² sowie das Bad mit Wanne
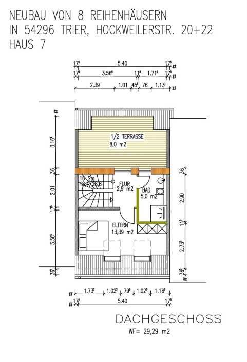
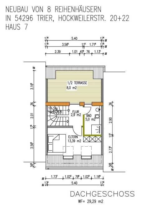
Im Dachgeschoß befinden sich ein attraktives Schlafzimmer von ca. 14 m², ein geräumiges Duschbad sowie die schöne Dachterrasse von ca. 16 m² mit herrlicher Weitsicht.
Das Haus ist voll unterkellert. Hier sind der Waschraum, die Technik sowie ein Lagerraum vorhanden.
Zum Haus gehören 2 Stellplätze in unmittelbarer Nähe des Hauses.
Die Fertigstellung ist für Ende 2025 vorgesehen.
Sie können die Innenausstattung noch mitbestimmen. Hier sind attraktive Fliesenbeläge bzw schöne Parkett oder Vinylboden vorgesehen.
Neues Einfamilienreihenhaus in schöner Lage von Trier-Irsch. Das Haus entsteht in massiver Ausführung (Stein auf Stein) mit einem attraktiven Grundriss, guter Ausstattung sowie moderner Technik
Die Planung für dieses Objekt sieht im Erdgeschoß einen geräumigen Wohnraum mit offener Küche von insgesamt ca. 32 m² und Ausgang auf die sonnige Terrasse von ca. 15 m² und in den kleinen Garten vor. Das Erdgeschoß wird durch den Abstellraum sowie das Gäste-WC vervollständigt. Das Obergeschoß erreichen Sie über eine massive Treppe. Hier befindet sich das große Elternschlafzimmer von ca. 19 m² , ein schönes großes Kinderzimmer von ca. 18 m² sowie das Bad mit Wanne
Im Dachgeschoß befinden sich ein attraktives Schlafzimmer von ca. 14 m², ein geräumiges Duschbad sowie die schöne Dachterrasse von ca. 16 m² mit herrlicher Weitsicht.
Das Haus ist voll unterkellert. Hier sind der Waschraum, die Technik sowie ein Lagerraum vorhanden.
Zum Haus gehören 2 Stellplätze in unmittelbarer Nähe des Hauses.
Die Fertigstellung ist für Ende 2025 vorgesehen.
Sie können die Innenausstattung noch mitbestimmen. Hier sind attraktive Fliesenbeläge bzw schöne Parkett oder Vinylboden vorgesehen.
Lage
54296 TrierTrier Irsch
Der aktuelle durchschnittliche Quadratmeterpreis beträgt 3.457,99 €/m² in Trier - Irsch. Der durchschnittliche Immobilienpreis in Trier liegt derzeit bei 3.726,16 €/m².
Mit Immobilienpreisen
Trier vergleichen
Was kostet dein Umzug?
Du planst einen Umzug? Finde jetzt die günstigste Umzugsfirma in deiner Region!
Umzugskosten berechnen Schütze dich vor Betrug!
Leiste keinerlei Zahlung im Vorraus!
Beachte unsere Sicherheitshinweise zum Thema Immobilienbetrug und lies, woran du solche Anzeigen erkennen kannst und wie du dich vor Betrügern schützt.
Anzeige melden Beachte unsere Sicherheitshinweise zum Thema Immobilienbetrug und lies, woran du solche Anzeigen erkennen kannst und wie du dich vor Betrügern schützt.
*Anzeige

Ähnliche Immobilien bei ImmoScout24
Trier-Irsch
- Kaufpreis
- 540.000 €
- Zimmer
- 4 Zi.
- Fläche
- 115 Zi.
Anbieter
Weitere Ergebnisse für:
Wohnungen
Trier;
Immobilien
Trier;
Haus mieten
Trier;
WG Zimmer
Trier;
Wohnung
Trier kaufen;
Haus kaufen
Trier;
Immobilienpreise
Trier Mietspiegel
Trier wohnungsboerse.net übernimmt keine Gewähr für von Dritten gemachte Angaben