
Erdgeschosswohnung in Trier
Helle Neubauwohnung mit eigenem Garten im KFW 40 Energiesparhaus Nähe Porta Nigra
auf der Karte ansehenUmzugskosten berechnen
- Kaufpreis
- 649.000 €
- Zimmer
- 4
- Fläche
- 115.25 m²
37 Aufrufe
Objekt-ID: 38336942
Objekttyp: | Erdgeschosswohnung |
Zimmer: | 4 |
Größe: | 115.25 m² |
Verfügbar ab: | keine Angabe |
Preise & Kosten
Kaufpreis: | 649.000 € |
Jetzt kostenlos Finanzierungsangebot anfragen! |
Provision: | Nein |
Preis/m²: | 5.631,24 € |
Mit Immobilienpreisen Trier vergleichen |
Immobilie
Balkon
Garten
Neubau
Baujahr: | 2025 |
Befeuerungsart: | Strom |
Energieausweis: | Bedarfsausweis |
Endenergiebedarf: | 14,00 kWh/(m²*a) |
Energieeffizienzklasse: | A+ |
Objektbeschreibung
Altersgerechtes Wohnen im KFW 40 Energiesparhaus in Trier Nähe Porta Nigra – unmittelbar an den Krankenhäusern - Darlehen von 100.000 EUR ab 0,35 % Zins möglich.
Moderne Eigentumswohnungen in altersgerechter Ausführung im Energiesparhaus (KfW 40 Standard) in zentraler Innenstadtlage Trier mit moderner Technik, Aufzug und guter Ausstattung. In dieser exponierten Lage entstehen attraktive Eigentumswohnungen mit Aufzug und Tiefgarage, moderner Technik in altersgerechter Ausführung. Es sind eine moderne Luftwärmepumpe in Verbindung mit Fußbodenheizung, elektrische Rollläden, Aufzug, eine kontrollierte Wohnraumbelüftung mit Wärmerückgewinnung, eine Photovoltaikanlage, schöne Fliesen sowie attraktive Parkettböden in einer guten Qualität vorgesehen. Sie können hier noch Ihre persönliche Note einbringen. Die Errichtung erfolgt unter Berücksichtigung moderner Energiestandards (KfW-Effizienzhaus 40 Programm 297 bzw. 298 sowie Familienförderung 300) sowie einer guten Ausstattung. Die Kombination von moderner Technik und hochwertiger Isolierung führt zu günstigen Heizkosten bzw. Nebenkosten. Alle Wohnungen verfügen über schöne Balkone oder Terrassen. Die Wohnungen im Erdgeschoß haben die Möglichkeit für eine eigene Grünfläche/ eigenen Garten.
Geniesen Sie den Wohnkomfort eines modernen hellen überwiegend barrierefreien Gebäudes mit neuester Technik.
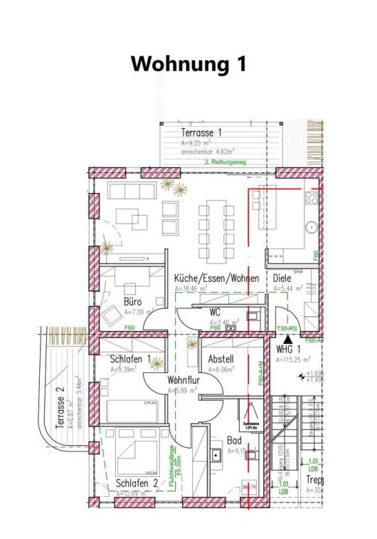
Das Angebot bezieht sich auf die Wohnung 1 im Erdgeschoß. Sie gelangen über eine geräumige Diele mit Garderobe in die Wohnung. Von der Diele gelangen Sie in das Gäste-WC sowie in den das Büro von ca. 8 m². Ebenso gelangen Sie in hellen geräumigen Wohn/Eßbereich mit offener Küche von ca. 30 m² sowie auf die sonnige Terrasse von 11 m² sowie in den eigenen Garten Über den Wohnbereich gelangen Sie in den separaten Schlaftrakt. Dieser besteht aus dem geräumigen Bad mit Fenster von ca. 9 m² ausgestattet mit Dusche und Wanne, dem gut aufgeteilten Elternschlafzimmer von ca. 13 m², dem funktionellen Hauswirtschaftsraum von . 6 m² sowie dem hellen Kinderzimmer/Büro von ca. 10 m² mit Zugang auf die zweite Terrasse sowie in den Garten. Die Wohnung hat eine Wohnfläche von ca. 109 m². Der Wohnung ist ein Kellerraum zugeordnet.
Die Wohnanlage erfüllt die technischen Voraussetzungen um die KFW Darlehen nach den Programmen 297, 298 und dem Programm 300 (Familieförderung)
Es besteht die Möglichkeit Tiefgaragenstellplätze für 30.000 EUR oder einen Außenstellplatz für 20.000 EUR Mehrpreis zu erwerben. Der Baubeginn ist für Ende 2025 vorgesehen mit einer geplanten Bauzeit von ca. 18 Monaten. Der Energieausweis ist in Bearbeitung und wird wegen dem KFW 40 Standard Energieklasse A + ausweisen.
Moderne Eigentumswohnungen in altersgerechter Ausführung im Energiesparhaus (KfW 40 Standard) in zentraler Innenstadtlage Trier mit moderner Technik, Aufzug und guter Ausstattung. In dieser exponierten Lage entstehen attraktive Eigentumswohnungen mit Aufzug und Tiefgarage, moderner Technik in altersgerechter Ausführung. Es sind eine moderne Luftwärmepumpe in Verbindung mit Fußbodenheizung, elektrische Rollläden, Aufzug, eine kontrollierte Wohnraumbelüftung mit Wärmerückgewinnung, eine Photovoltaikanlage, schöne Fliesen sowie attraktive Parkettböden in einer guten Qualität vorgesehen. Sie können hier noch Ihre persönliche Note einbringen. Die Errichtung erfolgt unter Berücksichtigung moderner Energiestandards (KfW-Effizienzhaus 40 Programm 297 bzw. 298 sowie Familienförderung 300) sowie einer guten Ausstattung. Die Kombination von moderner Technik und hochwertiger Isolierung führt zu günstigen Heizkosten bzw. Nebenkosten. Alle Wohnungen verfügen über schöne Balkone oder Terrassen. Die Wohnungen im Erdgeschoß haben die Möglichkeit für eine eigene Grünfläche/ eigenen Garten.
Geniesen Sie den Wohnkomfort eines modernen hellen überwiegend barrierefreien Gebäudes mit neuester Technik.
Das Angebot bezieht sich auf die Wohnung 1 im Erdgeschoß. Sie gelangen über eine geräumige Diele mit Garderobe in die Wohnung. Von der Diele gelangen Sie in das Gäste-WC sowie in den das Büro von ca. 8 m². Ebenso gelangen Sie in hellen geräumigen Wohn/Eßbereich mit offener Küche von ca. 30 m² sowie auf die sonnige Terrasse von 11 m² sowie in den eigenen Garten Über den Wohnbereich gelangen Sie in den separaten Schlaftrakt. Dieser besteht aus dem geräumigen Bad mit Fenster von ca. 9 m² ausgestattet mit Dusche und Wanne, dem gut aufgeteilten Elternschlafzimmer von ca. 13 m², dem funktionellen Hauswirtschaftsraum von . 6 m² sowie dem hellen Kinderzimmer/Büro von ca. 10 m² mit Zugang auf die zweite Terrasse sowie in den Garten. Die Wohnung hat eine Wohnfläche von ca. 109 m². Der Wohnung ist ein Kellerraum zugeordnet.
Die Wohnanlage erfüllt die technischen Voraussetzungen um die KFW Darlehen nach den Programmen 297, 298 und dem Programm 300 (Familieförderung)
Es besteht die Möglichkeit Tiefgaragenstellplätze für 30.000 EUR oder einen Außenstellplatz für 20.000 EUR Mehrpreis zu erwerben. Der Baubeginn ist für Ende 2025 vorgesehen mit einer geplanten Bauzeit von ca. 18 Monaten. Der Energieausweis ist in Bearbeitung und wird wegen dem KFW 40 Standard Energieklasse A + ausweisen.
Lage
54292 TrierTrier
Der aktuelle durchschnittliche Quadratmeterpreis beträgt 3.726,16 €/m² in Trier.
Mit Immobilienpreisen
Trier vergleichen
Was kostet dein Umzug?
Du planst einen Umzug? Finde jetzt die günstigste Umzugsfirma in deiner Region!
Umzugskosten berechnen Schütze dich vor Betrug!
Leiste keinerlei Zahlung im Vorraus!
Beachte unsere Sicherheitshinweise zum Thema Immobilienbetrug und lies, woran du solche Anzeigen erkennen kannst und wie du dich vor Betrügern schützt.
Anzeige melden Beachte unsere Sicherheitshinweise zum Thema Immobilienbetrug und lies, woran du solche Anzeigen erkennen kannst und wie du dich vor Betrügern schützt.
*Anzeige

Ähnliche Immobilien bei ImmoScout24
Trier
- Kaufpreis
- 600.000 €
- Zimmer
- 4 Zi.
- Fläche
- 110 Zi.
Anbieter
Weitere Ergebnisse für:
Wohnungen
Trier;
Immobilien
Trier;
Haus mieten
Trier;
WG Zimmer
Trier;
Wohnung
Trier kaufen;
Haus kaufen
Trier;
Immobilienpreise
Trier Mietspiegel
Trier wohnungsboerse.net übernimmt keine Gewähr für von Dritten gemachte Angaben