
Einfamilienhaus zum kaufen in Seesen
Inkl. Grundstück, ein Komforthaus für jedermann in Seesen.
auf der Karte ansehenUmzugskosten berechnen
- Kaufpreis
- 372.850 €
- Zimmer
- 5
- Fläche
- 124 m²
10 Aufrufe
Objekt-ID: 38524469
Objekttyp: | Einfamilienhaus |
Zimmer: | 5 |
Größe: | 124.00 m² |
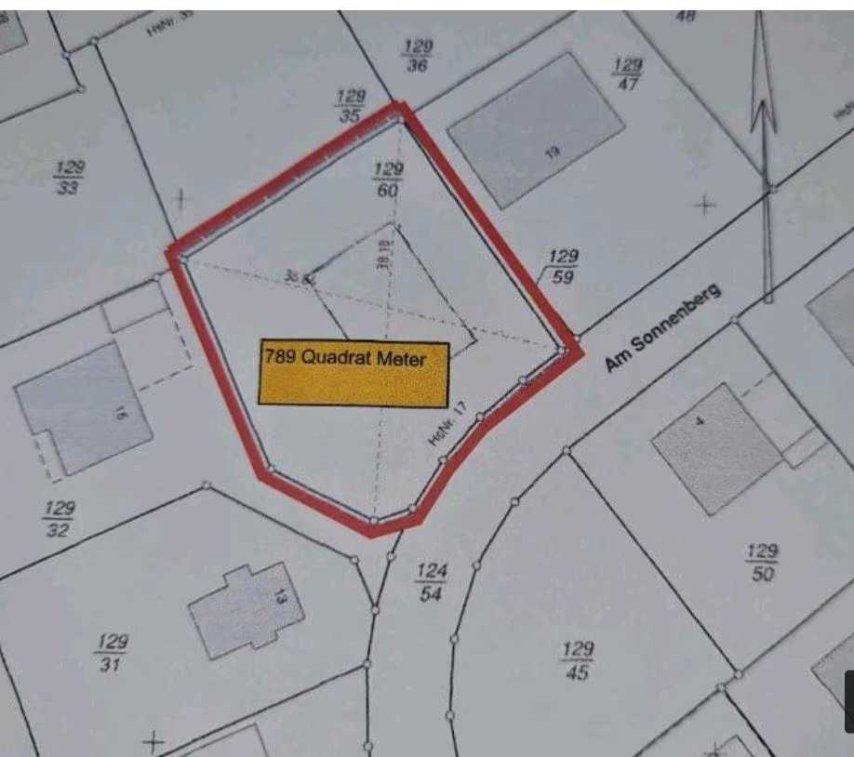
Grundstücksfläche: | 789,00 m² |
Verfügbar ab: | keine Angabe |
Preise & Kosten
Kaufpreis: | 372.850 € |
Jetzt kostenlos Finanzierungsangebot anfragen! |
Provision: | Nein |
Preis/m²: | 3.006,85 € |
Mit Immobilienpreisen Seesen vergleichen |
Immobilie
Energieausweis: | Energieausweis in Vorbereitung |
Objektbeschreibung
Das Flair 113 ist nicht ohne Grund das meistgekaufte Town & Country Haus. Es bietet alles, was ein Massivhaus gemütlich macht. Im Erdgeschoss betreten Sie ein geräumiges Wohn- und Esszimmer, eine Küche mit genügend Freiraum, ein Gäste-WC und einen Hauswirtschaftsraum mit ausreichend Platz für Waschmaschine und Co. Im Dachgeschoss erwarten Sie neben drei weiteren geräumigen Zimmern ein komfortabel ausgestattetes Badezimmer.
Auf beiden Hausebenen herrscht eine behagliche Wohnatmosphäre und die Räume sind angenehm hell. Dank einer ausgefeilten Planung ist das Flair 113 besonders flexibel: das große Wohnzimmer lässt sich mühelos in zwei Zimmer aufteilen – so gewinnen Sie neuen Platz für ein Kinder-, Gäste- oder Arbeitszimmer.
Das Flair 113 ist ein variables Familienhaus zum wohlfühlen.
Sie wünschen sich mehr Unabhängigkeit beim Energieverbrauch? Kein Problem. Das Flair 113 gibt es auch als KfW- oder Passivhaus.
Der Preis für Ihr schlüsselfertiges Haus beträgt 237.850€. Als Grundstückspreis wurden 135.000 €, zzgl. Baunebenkosten berücksichtigt.
Auf beiden Hausebenen herrscht eine behagliche Wohnatmosphäre und die Räume sind angenehm hell. Dank einer ausgefeilten Planung ist das Flair 113 besonders flexibel: das große Wohnzimmer lässt sich mühelos in zwei Zimmer aufteilen – so gewinnen Sie neuen Platz für ein Kinder-, Gäste- oder Arbeitszimmer.
Das Flair 113 ist ein variables Familienhaus zum wohlfühlen.
Sie wünschen sich mehr Unabhängigkeit beim Energieverbrauch? Kein Problem. Das Flair 113 gibt es auch als KfW- oder Passivhaus.
Der Preis für Ihr schlüsselfertiges Haus beträgt 237.850€. Als Grundstückspreis wurden 135.000 €, zzgl. Baunebenkosten berücksichtigt.
Lage
Am Sonnenberg38723 Seesen
Seesen
Der aktuelle durchschnittliche Quadratmeterpreis beträgt 2.676,60 €/m² in Seesen.
Mit Immobilienpreisen
Seesen vergleichen
Was kostet dein Umzug?
Du planst einen Umzug? Finde jetzt die günstigste Umzugsfirma in deiner Region!
Umzugskosten berechnen Schütze dich vor Betrug!
Leiste keinerlei Zahlung im Vorraus!
Beachte unsere Sicherheitshinweise zum Thema Immobilienbetrug und lies, woran du solche Anzeigen erkennen kannst und wie du dich vor Betrügern schützt.
Anzeige melden Beachte unsere Sicherheitshinweise zum Thema Immobilienbetrug und lies, woran du solche Anzeigen erkennen kannst und wie du dich vor Betrügern schützt.
*Anzeige

Ähnliche Häuser bei ImmoScout24
Seesen
- Kaufpreis
- 325.000 €
- Zimmer
- 5 Zi.
- Fläche
- 115 Zi.
Anbieter
Weitere Ergebnisse für:
Wohnungen
Seesen;
Immobilien
Seesen;
Haus mieten
Seesen;
WG Zimmer
Seesen;
Wohnung
Seesen kaufen;
Haus kaufen
Seesen;
Immobilienpreise
Seesen Mietspiegel
Seesen wohnungsboerse.net übernimmt keine Gewähr für von Dritten gemachte Angaben