
Maisonette-Wohnung in Markgröningen
Einzigartige, helle Maisonette-Wohnung mit zusätzlicher Nutzfläche, inkl. TG-Stellplatz
auf der Karte ansehenUmzugskosten berechnen
- Kaufpreis
- 259.000 €
- Zimmer
- 3
- Fläche
- 78 m²
11 Aufrufe
Objekt-ID: 38578051
Objekttyp: | Maisonette-Wohnung |
Zimmer: | 3 |
Größe: | 78.00 m² |
Etage: | 3 von 3 |
Verfügbar ab: | keine Angabe |
Preise & Kosten
Kaufpreis: | 259.000 € |
Jetzt kostenlos Finanzierungsangebot anfragen! |
Provision: | Nein |
Preis/m²: | 3.320,51 € |
Mit Immobilienpreisen Markgröningen vergleichen |
Immobilie
Balkon
Einbauküche
Stellplatz
Keller
Baujahr: | 1988 |
Befeuerungsart: | Zentralheizung |
Energieausweis: | Bedarfsausweis |
Endenergiebedarf: | 132,70 kWh/(m²*a) |
Energieeffizienzklasse: | E |
Objektbeschreibung
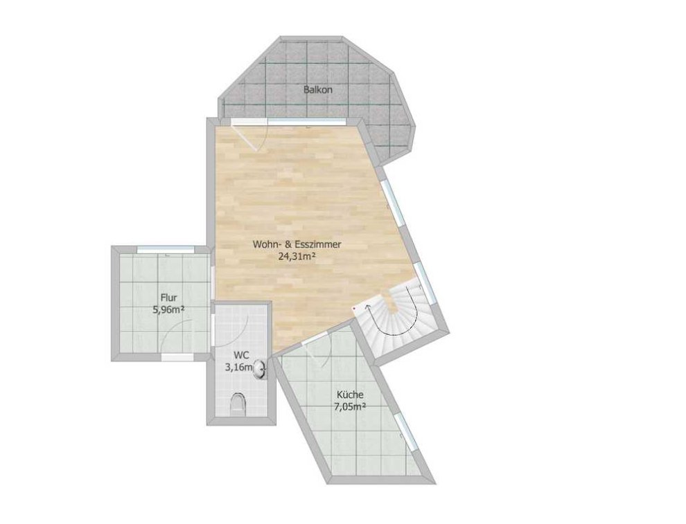
Die einzigartige und attraktive Maisonette-Wohnung erstreckt sich über zwei Stockwerke. Sie zeichnet sich durch ihre zahlreichen Fenster, ungewöhnliche Winkel und die offene Treppe aus. Außerdem verfügt sie über zwei große, überdachte Balkone mit Weitblick auf Felder und Weinberge.
Der Eingangsflur bietet ausreichend Platz für Garderobenschränke, angrenzend befindet sich ein geräumiges Gäste-WC. Danach betritt man den großzügigen und hellen Wohn- und Essbereich. Die ebenfalls im unteren Stockwerk befindliche Küche kann durch einen Türe abgetrennt werden oder über einen offenen Durchgang mit dem Wohn-/ Esszimmer verbunden bleiben. Eine offene Treppe führt in den oberen Bereich der Wohnung. Hier befindet sich ein Badezimmer, ein geräumiges Schlafzimmer und ein weiteres Zimmer, das als Büro, Baby-Zimmer oder Ankleide genutzt werden kann. Vom Flur aus führt eine weitere Treppe in ein großes Dachzimmer, das als zusätzliche Nutzfläche dienen kann.
Zur Wohnung gehören ein Kellerabteil und ein Tiefgaragenstellplatz mit separat abschließbarem Garagentor. Außerdem sind ein Fahrradabstellraum und eine gemeinschaftliche Waschküche vorhanden.
Die Wohnung steht derzeit leer und ist bezugsfertig – Einzelpersonen, Paare oder kleine Familien können direkt einziehen und sie zu Ihrem individuellen Wohlfühl-Zuhause machen. Die Wohnung ist sowohl für den Eigenbedarf attraktiv als auch zur Vermietung geeignet. Melden Sie sich bei Interesse gerne zur Vereinbarung eines Besichtigungstermins.
Der Eingangsflur bietet ausreichend Platz für Garderobenschränke, angrenzend befindet sich ein geräumiges Gäste-WC. Danach betritt man den großzügigen und hellen Wohn- und Essbereich. Die ebenfalls im unteren Stockwerk befindliche Küche kann durch einen Türe abgetrennt werden oder über einen offenen Durchgang mit dem Wohn-/ Esszimmer verbunden bleiben. Eine offene Treppe führt in den oberen Bereich der Wohnung. Hier befindet sich ein Badezimmer, ein geräumiges Schlafzimmer und ein weiteres Zimmer, das als Büro, Baby-Zimmer oder Ankleide genutzt werden kann. Vom Flur aus führt eine weitere Treppe in ein großes Dachzimmer, das als zusätzliche Nutzfläche dienen kann.
Zur Wohnung gehören ein Kellerabteil und ein Tiefgaragenstellplatz mit separat abschließbarem Garagentor. Außerdem sind ein Fahrradabstellraum und eine gemeinschaftliche Waschküche vorhanden.
Die Wohnung steht derzeit leer und ist bezugsfertig – Einzelpersonen, Paare oder kleine Familien können direkt einziehen und sie zu Ihrem individuellen Wohlfühl-Zuhause machen. Die Wohnung ist sowohl für den Eigenbedarf attraktiv als auch zur Vermietung geeignet. Melden Sie sich bei Interesse gerne zur Vereinbarung eines Besichtigungstermins.
Lage
71706 MarkgröningenMarkgröningen
Der aktuelle durchschnittliche Quadratmeterpreis beträgt 4.347,06 €/m² in Markgröningen.
Mit Immobilienpreisen
Markgroeningen vergleichen
Was kostet dein Umzug?
Du planst einen Umzug? Finde jetzt die günstigste Umzugsfirma in deiner Region!
Umzugskosten berechnen Schütze dich vor Betrug!
Leiste keinerlei Zahlung im Vorraus!
Beachte unsere Sicherheitshinweise zum Thema Immobilienbetrug und lies, woran du solche Anzeigen erkennen kannst und wie du dich vor Betrügern schützt.
Anzeige melden Beachte unsere Sicherheitshinweise zum Thema Immobilienbetrug und lies, woran du solche Anzeigen erkennen kannst und wie du dich vor Betrügern schützt.
*Anzeige

Ähnliche Immobilien bei ImmoScout24
Markgröningen
- Kaufpreis
- 210.000 €
- Zimmer
- 3 Zi.
- Fläche
- 70 Zi.
Weitere Ergebnisse für:
Wohnungen
Markgröningen;
Immobilien
Markgröningen;
Haus mieten
Markgröningen;
WG Zimmer
Markgröningen;
Wohnung
Markgröningen kaufen;
Haus kaufen
Markgröningen;
Immobilienpreise
Markgröningen Mietspiegel
Markgröningen wohnungsboerse.net übernimmt keine Gewähr für von Dritten gemachte Angaben