
Erdgeschosswohnung in Mayen
Vermietete 3-Zimmer-Wohnung mit Terrasse
auf der Karte ansehenUmzugskosten berechnen
- Kaufpreis
- 339.776,82 €
- Zimmer
- 3
- Fläche
- 91.73 m²
6 Aufrufe
Objekt-ID: 38595856
Objekttyp: | Erdgeschosswohnung |
Zimmer: | 3 |
Größe: | 91.73 m² |
Verfügbar ab: | keine Angabe |
Preise & Kosten
Kaufpreis: | 339.776,82 € |
Jetzt kostenlos Finanzierungsangebot anfragen! |
Provision: | Nein |
Preis/m²: | 3.704,10 € |
Mit Immobilienpreisen Mayen vergleichen |
Immobilie
Balkon
Terrasse
Aufzug
Keller
Behindertengerecht
Baujahr: | 2025 |
Befeuerungsart: | Fernwärme |
Energieausweis: | Bedarfsausweis |
Endenergiebedarf: | 49,00 kWh/(m²*a) |
Energieeffizienzklasse: | A |
Objektbeschreibung
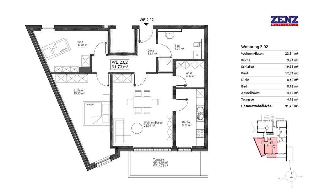
Diese vermietete 3-Zimmer-Wohnung befindet sich im Erdgeschoss der Wohnanlage Burgpalais Mayen und wird als Investorenwohnung angeboten.
Mit einer großzügigen Wohnfläche von 91,73 m² sowie einer Terrasse mit 9,45 m² bietet sie attraktiven Wohnkomfort in zentraler Lage – ideal für Kapitalanleger, die auf langfristige Mieteinnahmen setzen.
Die Wohnung überzeugt durch eine durchdachte und familienfreundliche Raumaufteilung. Der helle Wohn- und Essbereich mit 23,94 m² bildet das Herzstück der Wohnung und bietet direkten Zugang zur Terrasse. Die Küche ist separat gehalten und misst 9,21 m² – ideal für eine klassische Einbauküche mit ausreichend Platz.
Das Schlafzimmer mit 19,53 m² bietet viel Raum, während das Kinderzimmer mit 12,81 m² flexibel nutzbar ist. Das Badezimmer ist mit 8,72 m² großzügig geschnitten und modern ausgestattet. Eine geräumige Diele mit 8,62 m² verbindet die Räume sinnvoll miteinander.
Ein Abstellraum innerhalb der Wohnung mit 4,17 m² sorgt für zusätzlichen Stauraum. Darüber hinaus gehört ein weiterer Abstellraum im Keller zur Wohnung.
Mit ihrer großzügigen Fläche, der attraktiven Ausstattung, der Terrasse sowie der beliebten Lage ist diese Wohnung besonders interessant für Mieter – und somit eine solide und langfristige Kapitalanlage.
Mit einer großzügigen Wohnfläche von 91,73 m² sowie einer Terrasse mit 9,45 m² bietet sie attraktiven Wohnkomfort in zentraler Lage – ideal für Kapitalanleger, die auf langfristige Mieteinnahmen setzen.
Die Wohnung überzeugt durch eine durchdachte und familienfreundliche Raumaufteilung. Der helle Wohn- und Essbereich mit 23,94 m² bildet das Herzstück der Wohnung und bietet direkten Zugang zur Terrasse. Die Küche ist separat gehalten und misst 9,21 m² – ideal für eine klassische Einbauküche mit ausreichend Platz.
Das Schlafzimmer mit 19,53 m² bietet viel Raum, während das Kinderzimmer mit 12,81 m² flexibel nutzbar ist. Das Badezimmer ist mit 8,72 m² großzügig geschnitten und modern ausgestattet. Eine geräumige Diele mit 8,62 m² verbindet die Räume sinnvoll miteinander.
Ein Abstellraum innerhalb der Wohnung mit 4,17 m² sorgt für zusätzlichen Stauraum. Darüber hinaus gehört ein weiterer Abstellraum im Keller zur Wohnung.
Mit ihrer großzügigen Fläche, der attraktiven Ausstattung, der Terrasse sowie der beliebten Lage ist diese Wohnung besonders interessant für Mieter – und somit eine solide und langfristige Kapitalanlage.
Lage
Bornhaustert56727 Mayen
Mayen
Der aktuelle durchschnittliche Quadratmeterpreis beträgt 3.293,83 €/m² in Mayen.
Mit Immobilienpreisen
Mayen vergleichen
Was kostet dein Umzug?
Du planst einen Umzug? Finde jetzt die günstigste Umzugsfirma in deiner Region!
Umzugskosten berechnen Schütze dich vor Betrug!
Leiste keinerlei Zahlung im Vorraus!
Beachte unsere Sicherheitshinweise zum Thema Immobilienbetrug und lies, woran du solche Anzeigen erkennen kannst und wie du dich vor Betrügern schützt.
Anzeige melden Beachte unsere Sicherheitshinweise zum Thema Immobilienbetrug und lies, woran du solche Anzeigen erkennen kannst und wie du dich vor Betrügern schützt.
*Anzeige

Ähnliche Immobilien bei ImmoScout24
Mayen
- Kaufpreis
- 290.000 €
- Zimmer
- 3 Zi.
- Fläche
- 85 Zi.
Anbieter
Weitere Ergebnisse für:
Wohnungen
Mayen;
Immobilien
Mayen;
Haus mieten
Mayen;
WG Zimmer
Mayen;
Wohnung
Mayen kaufen;
Haus kaufen
Mayen;
Immobilienpreise
Mayen Mietspiegel
Mayen wohnungsboerse.net übernimmt keine Gewähr für von Dritten gemachte Angaben