
Etagenwohnung in Grömitz
2,5-Zimmer Apartment mit Balkon und direktem Ostseeblick in Grömitz
auf der Karte ansehenUmzugskosten berechnen
- Kaufpreis
- 325.000 €
- Zimmer
- 3
- Fläche
- 46.02 m²
3 Aufrufe
Objekt-ID: 38628643
Objekttyp: | Etagenwohnung |
Zimmer: | 3 |
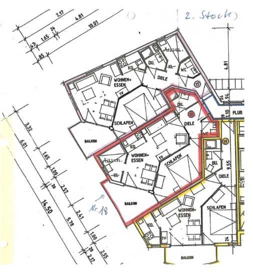
Größe: | 46.02 m² |
Etage: | 2 von 2 |
Verfügbar ab: | 10.10.2025 |
Preise & Kosten
Kaufpreis: | 325.000 € |
Jetzt kostenlos Finanzierungsangebot anfragen! |
Provision: | Nein |
Preis/m²: | 7.062,15 € |
Mit Immobilienpreisen Grömitz vergleichen |
Immobilie
Balkon
Einbauküche
Keller
Baujahr: | 1991 |
Befeuerungsart: | Zentralheizung |
Energieausweis: | Bedarfsausweis |
Endenergiebedarf: | 134,30 kWh/(m²*a) |
Energieeffizienzklasse: | E |
Objektbeschreibung
Willkommen in diesem wunderschönen 2,5-Zimmer Apartment mit ca. 46 m² Wohnfläche, gelegen im 2. Obergeschoss mit direktem Blick auf die Ostsee eines gepflegten Mehrfamilienhauses in Grömitz. Die Wohnung besticht durch ihre hochwertige Innenausstattung und bietet einen Balkon für entspannte Stunden.
WLAN im gesamten Gebäude vorhanden. Die beiden Fernseher sind Internetfähig.
Eine komplett Modernisierung (Elektrik, Sanitäreinrichtung und Innenausbau) hat 2021 stattgefunden.
Ein Stellplatz gehört ebenfalls zur Immobilie und die Wohnung wird ab dem 10.10.2025 bezugsfrei sein. Ein Keller bietet zusätzlichen Stauraum.
Über eine Außentreppe ist ein direkter Zugang vom Grundstück zur viel belebten Promenade gegeben.
Die Wohnung ist nur als Ferienwohnung und nicht als Dauerwohnung zulässig. Ein Energieausweis und Immobiliengutachten liegt vor.
WLAN im gesamten Gebäude vorhanden. Die beiden Fernseher sind Internetfähig.
Eine komplett Modernisierung (Elektrik, Sanitäreinrichtung und Innenausbau) hat 2021 stattgefunden.
Ein Stellplatz gehört ebenfalls zur Immobilie und die Wohnung wird ab dem 10.10.2025 bezugsfrei sein. Ein Keller bietet zusätzlichen Stauraum.
Über eine Außentreppe ist ein direkter Zugang vom Grundstück zur viel belebten Promenade gegeben.
Die Wohnung ist nur als Ferienwohnung und nicht als Dauerwohnung zulässig. Ein Energieausweis und Immobiliengutachten liegt vor.
Lage
Haffkamp23743 Grömitz
Grömitz
Der aktuelle durchschnittliche Quadratmeterpreis beträgt 5.407,77 €/m² in Grömitz.
Mit Immobilienpreisen
Groemitz vergleichen
Was kostet dein Umzug?
Du planst einen Umzug? Finde jetzt die günstigste Umzugsfirma in deiner Region!
Umzugskosten berechnen Schütze dich vor Betrug!
Leiste keinerlei Zahlung im Vorraus!
Beachte unsere Sicherheitshinweise zum Thema Immobilienbetrug und lies, woran du solche Anzeigen erkennen kannst und wie du dich vor Betrügern schützt.
Anzeige melden Beachte unsere Sicherheitshinweise zum Thema Immobilienbetrug und lies, woran du solche Anzeigen erkennen kannst und wie du dich vor Betrügern schützt.
*Anzeige

Ähnliche Immobilien bei ImmoScout24
Grömitz
- Kaufpreis
- 275.000 €
- Zimmer
- 3 Zi.
- Fläche
- 40 Zi.
Weitere Ergebnisse für:
Wohnungen
Grömitz;
Immobilien
Grömitz;
Haus mieten
Grömitz;
WG Zimmer
Grömitz;
Wohnung
Grömitz kaufen;
Haus kaufen
Grömitz;
Immobilienpreise
Grömitz Mietspiegel
Grömitz wohnungsboerse.net übernimmt keine Gewähr für von Dritten gemachte Angaben