
Bungalow zum kaufen in Leipzig-Lindenthal
Grundstücks-Preis inkl.! 5 Zimmer auf einer Ebene, u.a.m. FBH, L-W-Wärmepumpe, Ton-Dachsteine, etc.
auf der Karte ansehenUmzugskosten berechnen
- Kaufpreis
- 553.180 €
- Zimmer
- 5
- Fläche
- 116 m²
8 Aufrufe
Objekt-ID: 38702430
| Objekttyp: | Bungalow |
| Zimmer: | 5 |
| Größe: | 116.00 m² |
| Grundstücksfläche: | 650,00 m² |
| Verfügbar ab: | nach Vereinbarung |
Preise & Kosten
| Kaufpreis: | 553.180 € |
| Jetzt kostenlos Finanzierungsangebot anfragen! | |
| Provision: | Ja |
| Preis/m²: | 4.768,79 € |
| Mit Immobilienpreisen Leipzig vergleichen | |
Immobilie
| Befeuerungsart: | Umweltwärme |
Objektbeschreibung
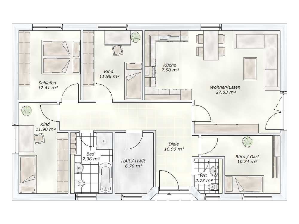
Dieser Bungalow ist das Parade-Beispiel für effiziente Raum-Ausnutzung: Auf 116 qm Wohnfläche findet die Bau-Familie nicht nur einen großzügigen Wohn-Ess-Bereich mit offener Küche über 35 qm sondern auch noch zwei Kinderzimmer, ein Arbeitszimmer, Schlafzimmer, Bad, Küche und Hauswirtschaftsraum!
Natürlich ist auch dieser Bungalow - wie alle unsere Häuser - individuell gestaltbar: Da in unseren Haus-Preisen immer die Architekten-Leistung inkludiert ist, kann jeder sein Traumhaus ganz nach dem persönlichen Geschmack konfigurieren!
Natürlich ist auch dieser Bungalow - wie alle unsere Häuser - individuell gestaltbar: Da in unseren Haus-Preisen immer die Architekten-Leistung inkludiert ist, kann jeder sein Traumhaus ganz nach dem persönlichen Geschmack konfigurieren!
Lage
04158 LeipzigLeipzig Lindenthal
Der aktuelle durchschnittliche Quadratmeterpreis beträgt 4.815,06 €/m² in Leipzig - Lindenthal. Der durchschnittliche Immobilienpreis in Leipzig liegt derzeit bei 3.977,85 €/m².
Mit Immobilienpreisen
Leipzig vergleichen
Was kostet dein Umzug?
Du planst einen Umzug? Finde jetzt die günstigste Umzugsfirma in deiner Region!
Umzugskosten berechnen Schütze dich vor Betrug!
Leiste keinerlei Zahlung im Vorraus!
Beachte unsere Sicherheitshinweise zum Thema Immobilienbetrug und lies, woran du solche Anzeigen erkennen kannst und wie du dich vor Betrügern schützt.
Anzeige melden Beachte unsere Sicherheitshinweise zum Thema Immobilienbetrug und lies, woran du solche Anzeigen erkennen kannst und wie du dich vor Betrügern schützt.
*Anzeige
Ähnliche Häuser bei ImmoScout24
Leipzig-Lindenthal
- Kaufpreis
- 505.000 €
- Zimmer
- 5 Zi.
- Fläche
- 110 Zi.
Anbieter
Weitere Ergebnisse für:
Wohnungen
Leipzig;
Immobilien
Leipzig;
Haus mieten
Leipzig;
WG Zimmer
Leipzig;
Wohnung
Leipzig kaufen;
Haus kaufen
Leipzig;
Immobilienpreise
Leipzig Mietspiegel
Leipzig wohnungsboerse.net übernimmt keine Gewähr für von Dritten gemachte Angaben