
Erdgeschosswohnung in Neustetten
Gepflegte 2,5-Zimmer Wohnung im Erdgeschoss in Neustetten
auf der Karte ansehenUmzugskosten berechnen
- Kaufpreis
- 145.000 €
- Zimmer
- 2.5
- Fläche
- 54 m²
2 Aufrufe
Objekt-ID: 38811774
| Objekttyp: | Erdgeschosswohnung |
| Zimmer: | 2.5 |
| Größe: | 54.00 m² |
| Etage: | 1 von 4 |
| Verfügbar ab: | keine Angabe |
Preise & Kosten
| Kaufpreis: | 145.000 € |
| Jetzt kostenlos Finanzierungsangebot anfragen! | |
| Provision: | Nein |
| Preis/m²: | 2.685,19 € |
| Mit Immobilienpreisen Neustetten vergleichen | |
Immobilie
Keller
Behindertengerecht
| Baujahr: | 1997 |
| Befeuerungsart: | Zentralheizung |
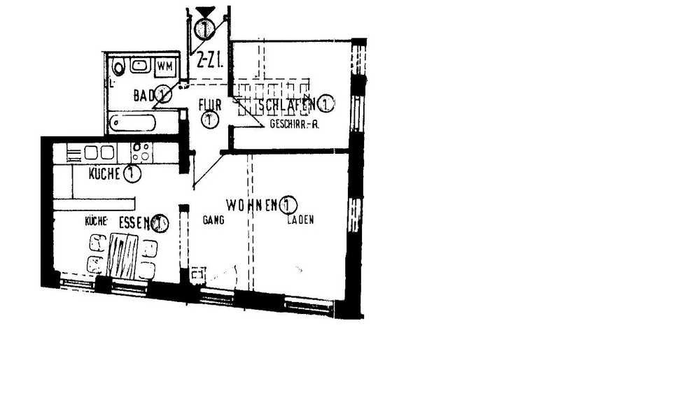
Objektbeschreibung
Diese gepflegte 2,5-Zimmer Erdgeschosswohnung mit ca. 54 m² Wohnfläche befindet sich in einem Mehrfamilienhaus mit insgesamt 4 Etagen in Neustetten. Das Baujahr ist 1997 und die Wohnung ist barrierefrei zugänglich. Ein Keller bietet zusätzlichen Stauraum. Die Beheizung erfolgt über eine Zentralheizung mit Öl als Brennstoff. Die Wohnung ist derzeit vermietet und generiert eine Mieteinnahme von 455,00 €.
Lage
Bei der Kirche72149 Neustetten
Neustetten
Der aktuelle durchschnittliche Quadratmeterpreis beträgt 3.219,82 €/m² in Neustetten.
Mit Immobilienpreisen
Neustetten vergleichen
Was kostet dein Umzug?
Du planst einen Umzug? Finde jetzt die günstigste Umzugsfirma in deiner Region!
Umzugskosten berechnen Schütze dich vor Betrug!
Leiste keinerlei Zahlung im Vorraus!
Beachte unsere Sicherheitshinweise zum Thema Immobilienbetrug und lies, woran du solche Anzeigen erkennen kannst und wie du dich vor Betrügern schützt.
Anzeige melden Beachte unsere Sicherheitshinweise zum Thema Immobilienbetrug und lies, woran du solche Anzeigen erkennen kannst und wie du dich vor Betrügern schützt.
*Anzeige
Ähnliche Immobilien bei ImmoScout24
Neustetten
- Kaufpreis
- 95.000 €
- Zimmer
- 2.5 Zi.
- Fläche
- 45 Zi.
Weitere Ergebnisse für:
Wohnungen
Neustetten;
Immobilien
Neustetten;
Haus mieten
Neustetten;
WG Zimmer
Neustetten;
Wohnung
Neustetten kaufen;
Haus kaufen
Neustetten;
Immobilienpreise
Neustetten Mietspiegel
Neustetten wohnungsboerse.net übernimmt keine Gewähr für von Dritten gemachte Angaben