Betreutes Wohnen in Ebersbach-Neugersdorf
Betreutes Seniorenwohnen im Zentrum einer Kleinstadt
auf der Karte ansehenUmzugskosten berechnen
- Kaltmiete
- 338 €
- Zimmer
- 2
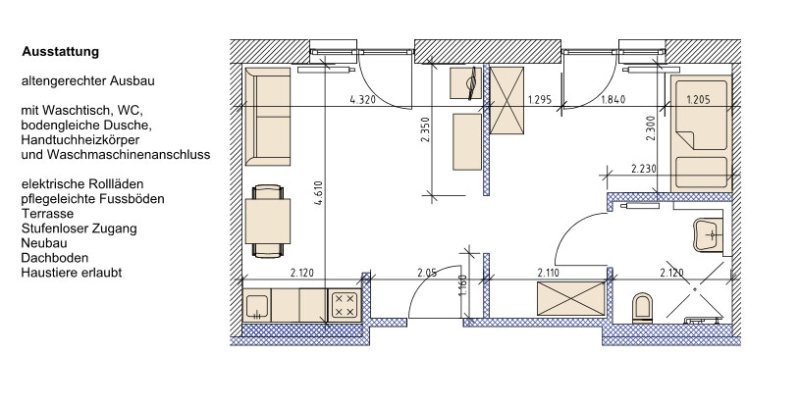
- Fläche
- 38 m²
1381 Aufrufe
Objekt-ID: 27440716
| Objekttyp: | Betreutes Wohnen |
| Zimmer: | 2 |
| Größe: | 38.00 m² |
| Frei ab: | ab sofort |
Preise & Kosten
| Kaltmiete: | 338 € |
| Nebenkosten: | 73 € |
| Gesamtmiete: |
411 € |
| Preis/m²: | 8,89 € |
| Mit Mietspiegel Ebersbach-Neugersdorf vergleichen | |
| Kaution: | 676 € |
Immobilie
Terrasse
| Baujahr: | 2020 |
| Qualität der Ausstattung: | gehoben |
| Objektzustand: | gepflegt |
| Befeuerungsart: | Holzpellets |
| Energieausweis: | Energieausweis in Vorbereitung |
Objektbeschreibung
innerstädtische Lage mit integrierter Parkanalge
keine Stufen
2 Allgemeinärzte mit auf dem Grundstück
Kirche, Rathaus, Friedhof, Café, Bushaltestelle in 200 m Entfernung
Physiotherapie, Friseur, Getränkemarkt im Umkreis von 100 m
Bäcker, Netto, Einkaufsmöglichkeiten im Umkreis von 250 m Entfernung
Betreuungspauschale (für zusätzliche Aufenthaltsräume und Organisation von Ausflügen) 99 EUR/monatlich
keine Stufen
2 Allgemeinärzte mit auf dem Grundstück
Kirche, Rathaus, Friedhof, Café, Bushaltestelle in 200 m Entfernung
Physiotherapie, Friseur, Getränkemarkt im Umkreis von 100 m
Bäcker, Netto, Einkaufsmöglichkeiten im Umkreis von 250 m Entfernung
Betreuungspauschale (für zusätzliche Aufenthaltsräume und Organisation von Ausflügen) 99 EUR/monatlich
Lage
Rumburger Straße02727 Ebersbach-Neugersdorf
Ebersbach-Neugersdorf
Der aktuelle durchschnittliche Quadratmeterpreis beträgt 5,36 €/m² in Ebersbach-Neugersdorf.
Mit Mietspiegel
Ebersbach-Neugersdorf vergleichen
Was kostet dein Umzug?
Du planst einen Umzug? Finde jetzt die günstigste Umzugsfirma in deiner Region!
Umzugskosten berechnen Schütze dich vor Betrug!
Leiste keinerlei Zahlung im Vorraus!
Beachte unsere Sicherheitshinweise zum Thema Immobilienbetrug und lies, woran du solche Anzeigen erkennen kannst und wie du dich vor Betrügern schützt.
Anzeige melden Beachte unsere Sicherheitshinweise zum Thema Immobilienbetrug und lies, woran du solche Anzeigen erkennen kannst und wie du dich vor Betrügern schützt.
*Anzeige
Ähnliche Wohnungen bei ImmoScout24
Ebersbach-Neugersdorf
- Miete
- 200 €
- Zimmer
- 2 Zi.
- Fläche
- 30 Zi.
Anbieter
privater AnbieterWeitere Ergebnisse für:
Wohnungen
Ebersbach-Neugersdorf;
Immobilien
Ebersbach-Neugersdorf;
Haus mieten
Ebersbach-Neugersdorf;
WG Zimmer
Ebersbach-Neugersdorf;
Wohnung
Ebersbach-Neugersdorf kaufen;
Haus kaufen
Ebersbach-Neugersdorf;
Immobilienpreise
Ebersbach-Neugersdorf Mietspiegel
Ebersbach-Neugersdorf wohnungsboerse.net übernimmt keine Gewähr für von Dritten gemachte Angaben



