WG-Zimmer in Stuttgart-Untertürkheim
Möbliertes schönes, helles Zimmer für 1 Jahr mit Blick in die Weinberge und in Daimler-Nähe in Stuttgart-Untertürkheim
auf der Karte ansehenUmzugskosten berechnen
- Kaltmiete
- 435 €
- Zimmer
- 1
- Zimmergröße
- 20 m²
1989 Aufrufe
Objekt-ID: 32386116
| Objekttyp: | WG-Zimmer |
| Zimmer: | 1 |
| Zimmergröße: | 20.00 m² |
| Etage: | 2 |
| Frei ab: | 10.08.2023 |
Preise & Kosten
| Kaltmiete: | 435 € |
| Nebenkosten: | 125 € |
| Gesamtmiete: |
560 € |
| Preis/m²: | 21,75 € |
| Mit Mietspiegel Stuttgart vergleichen | |
| Kaution: | 500 |
Immobilie
Möbliert
Balkon
Terrasse
Garten
Einbauküche
Keller
Altbau
Wohnen auf Zeit
| Baujahr: | 1990 |
| Objektzustand: | gepflegt |
| Befeuerungsart: | Gas |
| Energieausweis: | Energieausweis in Vorbereitung |
Objektbeschreibung
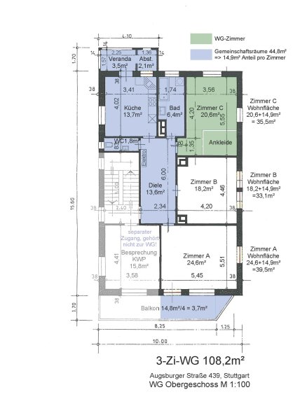
Suche für mein Zimmer mit Blick in die Weinberge eine:n vertrauensvolle:n Zwischenmieter:in.
Die Hard Facts: 20,9qm Zimmer
Kaltmiete 435 + Nebenkostenpauschale von 125 = Warmmiete von 560 €.
Telefon, WLAN und GEZ kosten monatlich nochmal ca. 19 Euro.
Die WG, in der ich mit zwei Mitbewohner innen Moritz und Svenja wohne, befindet sich im Obergeschoss einer Jugendstil-Villa, direkt an den Weinbergen und oberhalb der Weinberge befindet sich das Naturschutzgebiet Kappelberg und Rotenberg mit einem wunderschönen Wald zur Erholung. Das Zimmer hat einen kleinen Wintergarten, der zu den Weinbergen rauszeigt (in Wohnfläche einkalkuliert). Im Zimmer ist außerdem ein großer, begehbarer Kleiderschrank fest eingebaut, der viel Stauraum bietet.
Von der Küche aus zugänglich ist eine Veranda, die einen tollen Ausblick auf die Weinberge und die Rotenberg-Kapelle bietet. Waschmachine im Bad vorhanden. Der Balkon, kann nach Absprache mit ihm mitgenutzt werden. Außerdem verfügbar und nutzbar: ein Garten und eine Terasse auf den Garagendächern unterhalb des Hauses.
Sehr gute ÖPNV-Anbindung: S-Bahn und U-Bahn sind in weniger als 10 Minuten fußläufig erreichbar (10 Min bis Hbf). Die Bushaltestelle ist fußläufig in 5 Minuten erreichbar.
Einkaufsmöglichkeiten befinden sich in unmittelbarer Nähe. Das Zentrum von Untertürkheim ist fußläufig in 10 Min Einkaufsmöglichkeiten befinden sich in unmittelbarer Nähe. Hier befinden sich eine Vielzahl weiterer Einkaufsmöglichkeiten.
Die Hard Facts: 20,9qm Zimmer
Kaltmiete 435 + Nebenkostenpauschale von 125 = Warmmiete von 560 €.
Telefon, WLAN und GEZ kosten monatlich nochmal ca. 19 Euro.
Die WG, in der ich mit zwei Mitbewohner innen Moritz und Svenja wohne, befindet sich im Obergeschoss einer Jugendstil-Villa, direkt an den Weinbergen und oberhalb der Weinberge befindet sich das Naturschutzgebiet Kappelberg und Rotenberg mit einem wunderschönen Wald zur Erholung. Das Zimmer hat einen kleinen Wintergarten, der zu den Weinbergen rauszeigt (in Wohnfläche einkalkuliert). Im Zimmer ist außerdem ein großer, begehbarer Kleiderschrank fest eingebaut, der viel Stauraum bietet.
Von der Küche aus zugänglich ist eine Veranda, die einen tollen Ausblick auf die Weinberge und die Rotenberg-Kapelle bietet. Waschmachine im Bad vorhanden. Der Balkon, kann nach Absprache mit ihm mitgenutzt werden. Außerdem verfügbar und nutzbar: ein Garten und eine Terasse auf den Garagendächern unterhalb des Hauses.
Sehr gute ÖPNV-Anbindung: S-Bahn und U-Bahn sind in weniger als 10 Minuten fußläufig erreichbar (10 Min bis Hbf). Die Bushaltestelle ist fußläufig in 5 Minuten erreichbar.
Einkaufsmöglichkeiten befinden sich in unmittelbarer Nähe. Das Zentrum von Untertürkheim ist fußläufig in 10 Min Einkaufsmöglichkeiten befinden sich in unmittelbarer Nähe. Hier befinden sich eine Vielzahl weiterer Einkaufsmöglichkeiten.
Was kostet dein Umzug?
Du planst einen Umzug? Finde jetzt die günstigste Umzugsfirma in deiner Region!
Umzugskosten berechnen Schütze dich vor Betrug!
Leiste keinerlei Zahlung im Vorraus!
Beachte unsere Sicherheitshinweise zum Thema Immobilienbetrug und lies, woran du solche Anzeigen erkennen kannst und wie du dich vor Betrügern schützt.
Anzeige melden Beachte unsere Sicherheitshinweise zum Thema Immobilienbetrug und lies, woran du solche Anzeigen erkennen kannst und wie du dich vor Betrügern schützt.
*Anzeige
Ähnliche Zimmer bei ImmoScout24
Stuttgart-Untertürkheim
- Miete
- 300 €
- Zimmer
- 1 Zi.
- Fläche
- 10 Zi.
Anbieter
privater AnbieterWeitere Ergebnisse für:
Wohnungen
Stuttgart;
Immobilien
Stuttgart;
Haus mieten
Stuttgart;
WG Zimmer
Stuttgart;
Wohnung
Stuttgart kaufen;
Haus kaufen
Stuttgart;
Immobilienpreise
Stuttgart Mietspiegel
Stuttgart wohnungsboerse.net übernimmt keine Gewähr für von Dritten gemachte Angaben











