
Eigentumswohnung in Braunschweig-Braunschweig
Möblierte 3-Zimmer Wohnung mit 2 Balkonen+Tiefgarage auf Zeit in der Nordstadt
auf der Karte ansehenUmzugskosten berechnen
- Kaltmiete
- 1.600 €
- Zimmer
- 3
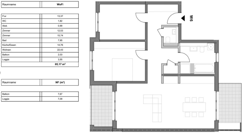
- Fläche
- 95 m²
1272 Aufrufe
Objekt-ID: 32748924
| Objekttyp: | Eigentumswohnung |
| Zimmer: | 3 |
| Größe: | 95.00 m² |
| Etage: | 1 |
| Frei ab: | 01.01.2024 |
Preise & Kosten
| Kaltmiete: | 1.600 € |
| Nebenkosten: | 300 € |
| Gesamtmiete: |
1.900 € |
| Preis/m²: | 16,84 € |
| Mit Mietspiegel Braunschweig vergleichen | |
| Kaution: | 2600 |
Immobilie
Möbliert
Balkon
Loggia
Einbauküche
Aufzug
Keller
Neubau
WG geeignet
Behindertengerecht
Wohnen auf Zeit
| Baujahr: | 2016 |
| Objektzustand: | gepflegt |
| Befeuerungsart: | Fussbodenheizung |
| Energieausweis: | Energieausweis in Vorbereitung |
| Endenergiebedarf: | 40,00 kWh/(m²*a) |
| Energieeffizienzklasse: | A |
Objektbeschreibung
Vorabanzeige:
Zeitlich befristete Vermietung ab voraussichtlich 01.01.2024, voll möbliert, inkl. 2 Balkonen und einem Stellplatz in der Tiefgarage, für 24 Monate, mit der Option auf Verlängerung.
Die Mindestmietdauer sollten 12 Monate sein.
Weitere Fotos und Infos folgen, können aber auch bei Interesse bereits angefragt werden.
Zeitlich befristete Vermietung ab voraussichtlich 01.01.2024, voll möbliert, inkl. 2 Balkonen und einem Stellplatz in der Tiefgarage, für 24 Monate, mit der Option auf Verlängerung.
Die Mindestmietdauer sollten 12 Monate sein.
Weitere Fotos und Infos folgen, können aber auch bei Interesse bereits angefragt werden.
Lage
Nordanger38106 Braunschweig
Braunschweig Braunschweig
Der aktuelle durchschnittliche Quadratmeterpreis beträgt 9,72 €/m² in Braunschweig - Braunschweig. Der durchschnittliche Quadratmeterpreis in Braunschweig liegt derzeit bei 10,29 €/m².
Mit Mietspiegel
Braunschweig vergleichen
Was kostet dein Umzug?
Du planst einen Umzug? Finde jetzt die günstigste Umzugsfirma in deiner Region!
Umzugskosten berechnen Schütze dich vor Betrug!
Leiste keinerlei Zahlung im Vorraus!
Beachte unsere Sicherheitshinweise zum Thema Immobilienbetrug und lies, woran du solche Anzeigen erkennen kannst und wie du dich vor Betrügern schützt.
Anzeige melden Beachte unsere Sicherheitshinweise zum Thema Immobilienbetrug und lies, woran du solche Anzeigen erkennen kannst und wie du dich vor Betrügern schützt.
*Anzeige
Ähnliche Wohnungen bei ImmoScout24
Braunschweig-Braunschweig
- Miete
- 1.450 €
- Zimmer
- 3 Zi.
- Fläche
- 85 Zi.
Anbieter
privater AnbieterWeitere Ergebnisse für:
Wohnungen
Braunschweig;
Immobilien
Braunschweig;
Haus mieten
Braunschweig;
WG Zimmer
Braunschweig;
Wohnung
Braunschweig kaufen;
Haus kaufen
Braunschweig;
Immobilienpreise
Braunschweig Mietspiegel
Braunschweig wohnungsboerse.net übernimmt keine Gewähr für von Dritten gemachte Angaben