Dachgeschosswohnung in Prisdorf
3 Zimmer Dachgeschosswohnung
auf der Karte ansehenUmzugskosten berechnen
- Kaltmiete
- 883 €
- Zimmer
- 3
- Fläche
- 80 m²
1098 Aufrufe
Objekt-ID: 34024260
| Objekttyp: | Dachgeschosswohnung |
| Zimmer: | 3 |
| Größe: | 80.00 m² |
| Etage: | 1 |
| Frei ab: | 01.03.2024 |
Preise & Kosten
| Kaltmiete: | 883 € |
| Nebenkosten: | 170 € |
| Miete für Garage/Stellplatz: | 0 € |
| Gesamtmiete: |
1.053 € |
| Preis/m²: | 11,04 € |
| Mit Mietspiegel Prisdorf vergleichen | |
| Ablöse: | 0 € |
| Kaution: | 2649,00 |
Immobilie
Einbauküche
Altbau
| Baujahr: | 1974 |
| Objektzustand: | gepflegt |
| Befeuerungsart: | Zentralheizung |
| Energieausweis: | Energieausweis in Vorbereitung |
| Endenergiebedarf: | 236,10 kWh/(m²*a) |
| Energieeffizienzklasse: | G |
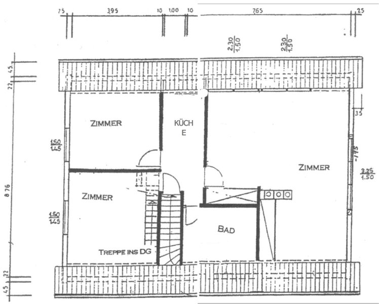
Objektbeschreibung
Zum 01.03.2024 können Sie in diese schöne DG-Wohnung einziehen, die in der ersten Etage eines Einfamilienhauses mit Einliegerwohnung liegt und durch eine gehobene Innenausstattung besticht. Das Objekt verfügt über drei hübsche Zimmer, sowie über einen Spielboden. Durch den zur Wohnung gehörenden Stellplatz gehört die lange Suche nach einem Parkplatz der Vergangenheit an. Anschließend können Sie Ihre Wocheneinkäufe entspannt in die bereits vorhandene Einbauküche tragen.
Dachgeschosswohnung in absolut ruhiger, grüner Lage in einer kleinen Seitenstraße am Rande eines kleinen Waldes, sucht solventen Nachmieter. Neben einem teilausgebauten Spitzboden, gibt es auch Stauraum im Dachboden. Fahrräder können i.d. gemeinsam genutzten Garage untergestellt werden. Ausschließlich Einfamilienhäuser in der Nachbarschaft.
Dachgeschosswohnung in absolut ruhiger, grüner Lage in einer kleinen Seitenstraße am Rande eines kleinen Waldes, sucht solventen Nachmieter. Neben einem teilausgebauten Spitzboden, gibt es auch Stauraum im Dachboden. Fahrräder können i.d. gemeinsam genutzten Garage untergestellt werden. Ausschließlich Einfamilienhäuser in der Nachbarschaft.
Lage
Neuenkamp25497 Prisdorf
Prisdorf
Der aktuelle durchschnittliche Quadratmeterpreis beträgt 12,37 €/m² in Prisdorf.
Mit Mietspiegel
Prisdorf vergleichen
Was kostet dein Umzug?
Du planst einen Umzug? Finde jetzt die günstigste Umzugsfirma in deiner Region!
Umzugskosten berechnen Schütze dich vor Betrug!
Leiste keinerlei Zahlung im Vorraus!
Beachte unsere Sicherheitshinweise zum Thema Immobilienbetrug und lies, woran du solche Anzeigen erkennen kannst und wie du dich vor Betrügern schützt.
Anzeige melden Beachte unsere Sicherheitshinweise zum Thema Immobilienbetrug und lies, woran du solche Anzeigen erkennen kannst und wie du dich vor Betrügern schützt.
*Anzeige
Ähnliche Wohnungen bei ImmoScout24
Prisdorf
- Miete
- 750 €
- Zimmer
- 3 Zi.
- Fläche
- 70 Zi.
Anbieter
privater AnbieterWeitere Ergebnisse für:
Wohnungen
Prisdorf;
Immobilien
Prisdorf;
Haus mieten
Prisdorf;
WG Zimmer
Prisdorf;
Wohnung
Prisdorf kaufen;
Haus kaufen
Prisdorf;
Immobilienpreise
Prisdorf Mietspiegel
Prisdorf wohnungsboerse.net übernimmt keine Gewähr für von Dritten gemachte Angaben







