
Etagenwohnung in Simmern/Hunsrück
Helle 4-ZKB mit Balkon im Herzen von Simmern mit Garage
auf der Karte ansehenUmzugskosten berechnen
- Kaltmiete
- 918 €
- Zimmer
- 4
- Fläche
- 102 m²
60 Aufrufe
Objekt-ID: 36579452
Objekttyp: | Etagenwohnung |
Zimmer: | 4 |
Größe: | 102.00 m² |
Etage: | 1 von 4 |
Frei ab: | Ab sofort bezugsfrei |
Preise & Kosten
Kaltmiete: | 918 € |
Nebenkosten: | 340 € |
Gesamtmiete: |
1.258 € |
Preis/m²: | 9,00 € |
Mit Mietspiegel Simmern/Hunsrück vergleichen | |
Kaution: | k.A. |
Immobilie
Balkon
Einbauküche
Garage
Baujahr: | 1969 |
Befeuerungsart: | Holzpellets |
Energieausweis: | liegt vor |
Objektbeschreibung
Mietwohnung:
Etage: 1. Obergeschoss
Haustiere : nein
Garage (ca. 29 m2): 85,00 €
Kaltmiete 9,00 €/Quadratmeter = 918,00 €
Nebenkosten: 340,00 € (ohne Stromkosten)
Küchenübernahme: 35€ pro Monat
Warmmiete:
Zimmer: 4 Zimmer
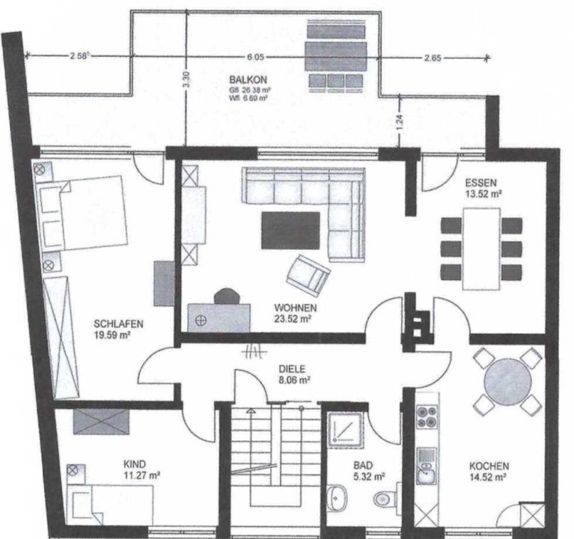
1 Schlafzimmer, 1 Arbeitszimmer, Esszimmer Durchgang zum Wohnzimmer, großer Balkon
Wohnfläche: ca. 102 Quadratmeter (102,40 Quadratmeter)
Strom ist vom Mieter separat anzumelden
Einbauküche Ja und zu übernehmen
Bezugfrei ab: sofort
Badezimmer: 1
Kaution: 2 Monatsmieten kalt
Kellerraum vorhanden: ca. 18 Quadratmeter
Baujahr: 1969
Modernisiert zuletzt: 2021
Objektzustand: modernisiert
Ausstattung: Normale Ausstattung
Heizungsart: Holz-Pelletheizung
Energieausweis: liegt zur Besichtigung vor
Objektbeschreibung:
Die Wohnung befindet sich im 1. Stock des Wohnhauses. Fenster, Türen, Bad, Heizung und Fußboden wurden bis 2021 modernisiert. Das gemütlich große Wohnzimmer mit rd. 24 Quadratmeter mit einem großen Fenster zum Balkon lädt zum Verweilen ein. Vom Wohnzimmer aus besteht ein offener Durchgang zum Esszimmer, von dem auch der Balkon zu erreichen ist. Auf gleicher Etage befindet sich die helle Küche, das sanierte Bad, das große Schlafzimmer sowie ein Zimmer, welches als Gäste- oder Arbeitszimmer genutzt werden kann.
Die zur Wohnung im 1. Stock gehörende Garage von ca. 29 Quadratmeter befindet sich innerhalb des Gebäudes und ist durch das Treppenhaus zu erreichen.
Des Weiteren gehört ein 18 Quadratmeter großer und geräumiger Kellerraum mit zum Angebot.
Weitere Angaben:
Die vorhandene Einbauküche ist zu übernehmen für 35€ im Monat.
Für die Objektbesichtigung wird eine Selbstauskunft benötigt.
Etage: 1. Obergeschoss
Haustiere : nein
Garage (ca. 29 m2): 85,00 €
Kaltmiete 9,00 €/Quadratmeter = 918,00 €
Nebenkosten: 340,00 € (ohne Stromkosten)
Küchenübernahme: 35€ pro Monat
Warmmiete:
Zimmer: 4 Zimmer
1 Schlafzimmer, 1 Arbeitszimmer, Esszimmer Durchgang zum Wohnzimmer, großer Balkon
Wohnfläche: ca. 102 Quadratmeter (102,40 Quadratmeter)
Strom ist vom Mieter separat anzumelden
Einbauküche Ja und zu übernehmen
Bezugfrei ab: sofort
Badezimmer: 1
Kaution: 2 Monatsmieten kalt
Kellerraum vorhanden: ca. 18 Quadratmeter
Baujahr: 1969
Modernisiert zuletzt: 2021
Objektzustand: modernisiert
Ausstattung: Normale Ausstattung
Heizungsart: Holz-Pelletheizung
Energieausweis: liegt zur Besichtigung vor
Objektbeschreibung:
Die Wohnung befindet sich im 1. Stock des Wohnhauses. Fenster, Türen, Bad, Heizung und Fußboden wurden bis 2021 modernisiert. Das gemütlich große Wohnzimmer mit rd. 24 Quadratmeter mit einem großen Fenster zum Balkon lädt zum Verweilen ein. Vom Wohnzimmer aus besteht ein offener Durchgang zum Esszimmer, von dem auch der Balkon zu erreichen ist. Auf gleicher Etage befindet sich die helle Küche, das sanierte Bad, das große Schlafzimmer sowie ein Zimmer, welches als Gäste- oder Arbeitszimmer genutzt werden kann.
Die zur Wohnung im 1. Stock gehörende Garage von ca. 29 Quadratmeter befindet sich innerhalb des Gebäudes und ist durch das Treppenhaus zu erreichen.
Des Weiteren gehört ein 18 Quadratmeter großer und geräumiger Kellerraum mit zum Angebot.
Weitere Angaben:
Die vorhandene Einbauküche ist zu übernehmen für 35€ im Monat.
Für die Objektbesichtigung wird eine Selbstauskunft benötigt.
Lage
Aulergasse55469 Simmern/Hunsrück
Simmern/Hunsrück
Der aktuelle durchschnittliche Quadratmeterpreis beträgt 8,92 €/m² in Simmern/Hunsrück.
Mit Mietspiegel
SimmernHunsrueck vergleichen
Was kostet dein Umzug?
Du planst einen Umzug? Finde jetzt die günstigste Umzugsfirma in deiner Region!
Umzugskosten berechnen Schütze dich vor Betrug!
Leiste keinerlei Zahlung im Vorraus!
Beachte unsere Sicherheitshinweise zum Thema Immobilienbetrug und lies, woran du solche Anzeigen erkennen kannst und wie du dich vor Betrügern schützt.
Anzeige melden Beachte unsere Sicherheitshinweise zum Thema Immobilienbetrug und lies, woran du solche Anzeigen erkennen kannst und wie du dich vor Betrügern schützt.
*Anzeige

Ähnliche Wohnungen bei ImmoScout24
Simmern/Hunsrück
- Miete
- 800 €
- Zimmer
- 4 Zi.
- Fläche
- 95 Zi.
Weitere Ergebnisse für:
Wohnungen
Simmern/Hunsrück;
Immobilien
Simmern/Hunsrück;
Haus mieten
Simmern/Hunsrück;
WG Zimmer
Simmern/Hunsrück;
Wohnung
Simmern/Hunsrück kaufen;
Haus kaufen
Simmern/Hunsrück;
Immobilienpreise
Simmern/Hunsrück Mietspiegel
Simmern/Hunsrück wohnungsboerse.net übernimmt keine Gewähr für von Dritten gemachte Angaben