Eigentumswohnung in Leipzig-Plagwitz
Leipzig-Plagwitz! SANIERTE attraktive 2,5-Raumwohnung frei ab 01.03.
auf der Karte ansehenUmzugskosten berechnen
- Kaltmiete
- 590 €
- Zimmer
- 2.5
- Fläche
- 63 m²
2269 Aufrufe
Objekt-ID: 36865786
| Objekttyp: | Eigentumswohnung |
| Zimmer: | 2.5 |
| Größe: | 63.00 m² |
| Etage: | 1 |
| Frei ab: | 01.09.2025 |
Preise & Kosten
| Kaltmiete: | 590 € |
| Nebenkosten: | 160 € |
| Gesamtmiete: |
750 € |
| Preis/m²: | 9,37 € |
| Mit Mietspiegel Leipzig vergleichen | |
| Kaution: | 1770 |
Immobilie
Balkon
Garten
Keller
Altbau
| Baujahr: | 1900 |
| Objektzustand: | saniert |
| Befeuerungsart: | Zentralheizung |
| Energieausweis: | Energieausweis in Vorbereitung |
| Energieverbrauchskennwert: | 183,00 kWh/(m²*a) |
| Energieverbrauch für Warmwasser enthalten? | Ja |
Objektbeschreibung
Leipzig-Plagwitz! SANIERTE attraktive 2,5-Raumwohnung
Bitte zunächst eine Mieterselbstauskunft zusenden.
OBJEKTBESCHREIBUNG:
Das Mehrfamilienhaus (Bj. um 1900) wurde liebevoll und umfangreich nach energieeffizienten Gesichtspunkten in 2017 saniert. Durch Wärmedämmung und neue Technik sparen Sie üblichen Kosten für Heizung und Warmwasser! Auf dem Innenhof befindet sich ein Grillplatz sowie Stellmöglichkeiten für Fahrräder. 4 Garagen sind ebenfalls auf dem Grundstück vorhanden.
AUSSTATTUNG:
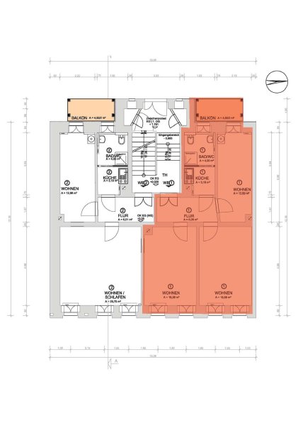
2,5-Raumwohnung im 2.5 Erdgeschoss (01)
- 1 Wohnzimmer
- 1 Schlafzimmer
- 1 Küche (alle Anschlüsse für Einbauküche vorhanden, siehe Plan)
- 1 Tageslichtbad, WC, Waschmaschinenanschluss, Wanne mit Dusche
- 1 Flur
- 1 Balkon (Westseite)
- Böden: Fliesenboden (hochwertig, großformatig), Laminat (Eiche Sylt)
- Wände: verputzt
- Heizung zentral, nachträglicher Kamineinbau möglich
- 1 Keller
- Innenhof mit Fahrradabstellplatz, Grillplatz
- Mindestmietdauer: 36 Monate
Besichtigung nach Absprache möglich.
Bitte zunächst eine Mieterselbstauskunft zusenden.
OBJEKTBESCHREIBUNG:
Das Mehrfamilienhaus (Bj. um 1900) wurde liebevoll und umfangreich nach energieeffizienten Gesichtspunkten in 2017 saniert. Durch Wärmedämmung und neue Technik sparen Sie üblichen Kosten für Heizung und Warmwasser! Auf dem Innenhof befindet sich ein Grillplatz sowie Stellmöglichkeiten für Fahrräder. 4 Garagen sind ebenfalls auf dem Grundstück vorhanden.
AUSSTATTUNG:
2,5-Raumwohnung im 2.5 Erdgeschoss (01)
- 1 Wohnzimmer
- 1 Schlafzimmer
- 1 Küche (alle Anschlüsse für Einbauküche vorhanden, siehe Plan)
- 1 Tageslichtbad, WC, Waschmaschinenanschluss, Wanne mit Dusche
- 1 Flur
- 1 Balkon (Westseite)
- Böden: Fliesenboden (hochwertig, großformatig), Laminat (Eiche Sylt)
- Wände: verputzt
- Heizung zentral, nachträglicher Kamineinbau möglich
- 1 Keller
- Innenhof mit Fahrradabstellplatz, Grillplatz
- Mindestmietdauer: 36 Monate
Besichtigung nach Absprache möglich.
Lage
Wachsmuthstraße04229 Leipzig
Leipzig Plagwitz
Der aktuelle durchschnittliche Quadratmeterpreis beträgt 10,27 €/m² in Leipzig - Plagwitz. Der durchschnittliche Quadratmeterpreis in Leipzig liegt derzeit bei 10,52 €/m².
Mit Mietspiegel
Leipzig vergleichen
Was kostet dein Umzug?
Du planst einen Umzug? Finde jetzt die günstigste Umzugsfirma in deiner Region!
Umzugskosten berechnen Schütze dich vor Betrug!
Leiste keinerlei Zahlung im Vorraus!
Beachte unsere Sicherheitshinweise zum Thema Immobilienbetrug und lies, woran du solche Anzeigen erkennen kannst und wie du dich vor Betrügern schützt.
Anzeige melden Beachte unsere Sicherheitshinweise zum Thema Immobilienbetrug und lies, woran du solche Anzeigen erkennen kannst und wie du dich vor Betrügern schützt.
*Anzeige
Ähnliche Wohnungen bei ImmoScout24
Leipzig-Plagwitz
- Miete
- 450 €
- Zimmer
- 2.5 Zi.
- Fläche
- 55 Zi.
Anbieter
privater AnbieterWeitere Ergebnisse für:
Wohnungen
Leipzig;
Immobilien
Leipzig;
Haus mieten
Leipzig;
WG Zimmer
Leipzig;
Wohnung
Leipzig kaufen;
Haus kaufen
Leipzig;
Immobilienpreise
Leipzig Mietspiegel
Leipzig wohnungsboerse.net übernimmt keine Gewähr für von Dritten gemachte Angaben









