
Etagenwohnung in Radeberg
4-Raum-Wohnung über 2 Etage mit Gartennutzung, hochwertig saniert
auf der Karte ansehenUmzugskosten berechnen
- Kaltmiete
- 1.150 €
- Zimmer
- 4
- Fläche
- 108 m²
152 Aufrufe
Objekt-ID: 37115610
| Objekttyp: | Etagenwohnung |
| Zimmer: | 4 |
| Größe: | 108.00 m² |
| Etage: | 3 von 4 |
| Frei ab: | sofort |
Preise & Kosten
| Kaltmiete: | 1.150 € |
| Nebenkosten: | 630 € |
| Gesamtmiete: |
1.780 € |
| Preis/m²: | 10,65 € |
| Mit Mietspiegel Radeberg vergleichen | |
| Kaution: | k.A. |
Immobilie
Garten
Aufzug
Keller
Tiere erlaubt
| Baujahr: | 2005 |
| Befeuerungsart: | Gas |
Objektbeschreibung
Dieses gut gepflegte und schön sanierte Mehrfamilienhaus steht im Herzen der Bierstadt Radeberg. Alle Annehmlichkeiten des täglichen Bedarfs sind fußläufig in wenigen Minuten erreichbar. So gibt es Einkaufsmöglichkeiten, Apotheken, Gaststätten sowie den historischen Marktplatz direkt in Ihrer Nähe. Zusätzlich gibt es im Haus einen Fahrstuhl sowie öffentliche Stellplätze direkt vor der Tür.
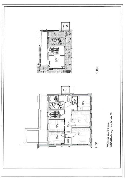
Die Wohnung über 2 Etagen wurde komplett neu und sehr hochwertig saniert, das Bad mit einer großen, ebenerdigen Dusche sowie Designbadewanne, 2 Wachbecken mit Unterschrank, Spiegelschrank und Handtuchheizkörper. Die wunderschönen Designfliesen runden das hochwertige Badezimmer ab. In allen Wohn- und Schlafräumen wurde ein Designbelag verlegt. Die Wohnung verfügt auch über eine Gästetoilette. Über eine Treppe gelangen Sie nach unten, wo sich ein weiterer Raum befindet, der sich sehr gut als Arbeitszimmer eignet.
Die Wohnung über 2 Etagen wurde komplett neu und sehr hochwertig saniert, das Bad mit einer großen, ebenerdigen Dusche sowie Designbadewanne, 2 Wachbecken mit Unterschrank, Spiegelschrank und Handtuchheizkörper. Die wunderschönen Designfliesen runden das hochwertige Badezimmer ab. In allen Wohn- und Schlafräumen wurde ein Designbelag verlegt. Die Wohnung verfügt auch über eine Gästetoilette. Über eine Treppe gelangen Sie nach unten, wo sich ein weiterer Raum befindet, der sich sehr gut als Arbeitszimmer eignet.
Lage
Hauptstraße01454 Radeberg
Radeberg
Der aktuelle durchschnittliche Quadratmeterpreis beträgt 8,64 €/m² in Radeberg.
Mit Mietspiegel
Radeberg vergleichen
Was kostet dein Umzug?
Du planst einen Umzug? Finde jetzt die günstigste Umzugsfirma in deiner Region!
Umzugskosten berechnen Schütze dich vor Betrug!
Leiste keinerlei Zahlung im Vorraus!
Beachte unsere Sicherheitshinweise zum Thema Immobilienbetrug und lies, woran du solche Anzeigen erkennen kannst und wie du dich vor Betrügern schützt.
Anzeige melden Beachte unsere Sicherheitshinweise zum Thema Immobilienbetrug und lies, woran du solche Anzeigen erkennen kannst und wie du dich vor Betrügern schützt.
*Anzeige
Ähnliche Wohnungen bei ImmoScout24
Radeberg
- Miete
- 1.000 €
- Zimmer
- 4 Zi.
- Fläche
- 100 Zi.
Anbieter
Weitere Ergebnisse für:
Wohnungen
Radeberg;
Immobilien
Radeberg;
Haus mieten
Radeberg;
WG Zimmer
Radeberg;
Wohnung
Radeberg kaufen;
Haus kaufen
Radeberg;
Immobilienpreise
Radeberg Mietspiegel
Radeberg wohnungsboerse.net übernimmt keine Gewähr für von Dritten gemachte Angaben