Bauernhof mieten in Karsdorf
WE-Grundstück/Anglerparadies an der Unstrut
auf der Karte ansehenUmzugskosten berechnen
- Kaltmiete
- 200 €
- Zimmer
- 5
- Fläche
- 139 m²
797 Aufrufe
Objekt-ID: 37226684
| Objekttyp: | Bauernhof |
| Zimmer: | 5 |
| Größe: | 139.00 m² |
| Grundstücksfläche: | 1.124,00 m² |
| Etage: | 1 |
| Frei ab: | ab sofort |
Preise & Kosten
| Kaltmiete: | 200 € |
| Nebenkosten: | 60 € |
| Miete für Garage/Stellplatz: | 0 € |
| Gesamtmiete: |
260 € |
| Preis/m²: | 1,44 € |
| Kaution: | 500 |
Immobilie
Garten
Keller
Altbau
Tiere erlaubt
Teilmöbliert
| Baujahr: | 1930 |
| Objektzustand: | renovierungsbedürftig |
| Befeuerungsart: | Strom |
| Energieausweis: | Verbrauchsausweis |
| Energieverbrauchskennwert: | 318,60 kWh/(m²*a) |
| Energieverbrauch für Warmwasser enthalten? | Nein |
Objektbeschreibung
Das beschauliche Örtchen Wetzendorf liegt inmitten der Saale-Unstrut-Region dem nördlichsten Qualitäts-Weinanbaugebiet Deutschlands. Direkt vom Haus aus hat man über das dazugehörige Wiese hinweg einen phänomenalen Weitblick auf die Weinberge und die 2700 m lange imposante Unstruttalbrücke mit Schallschutzwand (ca. 250 m entfernt)).
Die fischreiche Unstrut (LSG) ist etwas abschüssig bequem fußläufig in 4-5 Minuten / nur knapp 300 m Entfernung erreichbar – Anglerparadies ;) !
Die Bebauung besteht aus einem bis 2019 zu Wohnzwecken genutzten EFH (jedoch so nur als Sommerhaus nutzbar) mit 4 tollen Dachgaupen mehreren Stallungen zur Tierhaltung + Werkstatt.
Die rückwärtige Wildwiese hat eine 2. Einfahrt.
Gliederung:
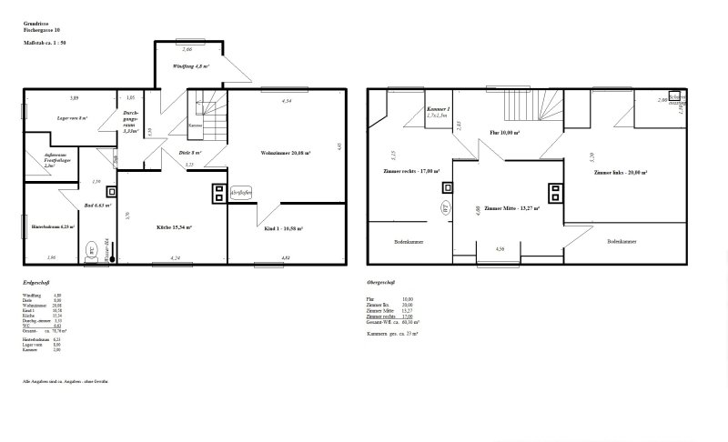
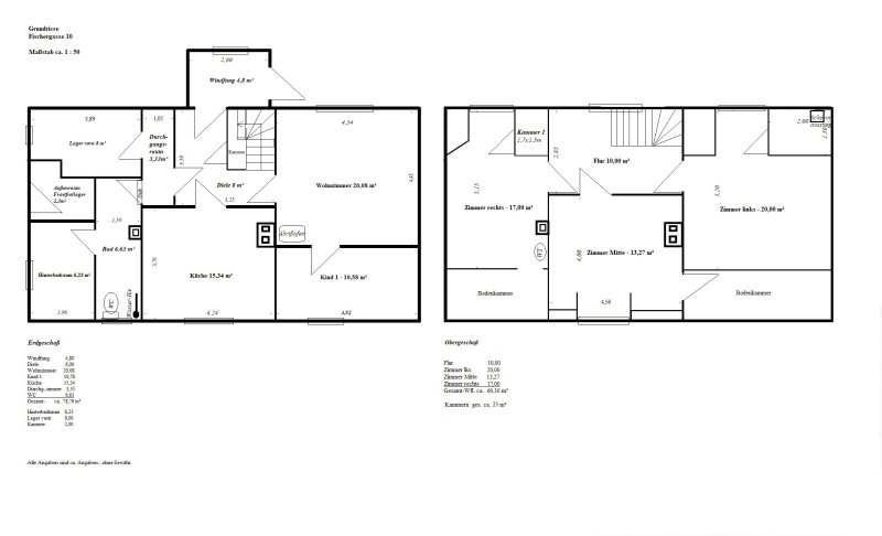
EG - ca. 79 m² (RH 2,2-2,4m) - 2 Zimmer (20+11m²), 5 m² Windfang, 8 m² Diele, 15 m² Küche, 15 m² Keller
7 m² WC/WT(ohne BW/DU), 3 m² Kammer zzgl. 2 Nutzräume (17 m²) mit ca. 2 m RH als Lagermöglichkeit…
OG - ca. 60 m² - 3 Zimmer (20+17+13 m²), 10 m² Flur, Waschtisch im Kinderzimmer, 23 m² Bodenräume (2x)
Ausstattung:
Nachwendesaniert, u.a.: 2014- Dacheindeckungen/Rinnen im Wohnhaus + Schuppendächer, Wasser-PE-Neuanschluss, 2x neue Schornsteinköpfe, teilw. Sparrendämmung,
Sonst: ringsum ca. 50-60 cm (!!) starke Wohnhaus-Umfassungswände, Dielungs- u. Estrichböden, keine Heizung, KEINE Wohnanmeldung möglich ! NUR als WE-Grundstück mit Tierhaltung / Lager.
Verkauf nach Nutzung von mind. 4 Jahren möglich - KEIN MIETKAUF / Vorabverkauf.
Die fischreiche Unstrut (LSG) ist etwas abschüssig bequem fußläufig in 4-5 Minuten / nur knapp 300 m Entfernung erreichbar – Anglerparadies ;) !
Die Bebauung besteht aus einem bis 2019 zu Wohnzwecken genutzten EFH (jedoch so nur als Sommerhaus nutzbar) mit 4 tollen Dachgaupen mehreren Stallungen zur Tierhaltung + Werkstatt.
Die rückwärtige Wildwiese hat eine 2. Einfahrt.
Gliederung:
EG - ca. 79 m² (RH 2,2-2,4m) - 2 Zimmer (20+11m²), 5 m² Windfang, 8 m² Diele, 15 m² Küche, 15 m² Keller
7 m² WC/WT(ohne BW/DU), 3 m² Kammer zzgl. 2 Nutzräume (17 m²) mit ca. 2 m RH als Lagermöglichkeit…
OG - ca. 60 m² - 3 Zimmer (20+17+13 m²), 10 m² Flur, Waschtisch im Kinderzimmer, 23 m² Bodenräume (2x)
Ausstattung:
Nachwendesaniert, u.a.: 2014- Dacheindeckungen/Rinnen im Wohnhaus + Schuppendächer, Wasser-PE-Neuanschluss, 2x neue Schornsteinköpfe, teilw. Sparrendämmung,
Sonst: ringsum ca. 50-60 cm (!!) starke Wohnhaus-Umfassungswände, Dielungs- u. Estrichböden, keine Heizung, KEINE Wohnanmeldung möglich ! NUR als WE-Grundstück mit Tierhaltung / Lager.
Verkauf nach Nutzung von mind. 4 Jahren möglich - KEIN MIETKAUF / Vorabverkauf.
Was kostet dein Umzug?
Du planst einen Umzug? Finde jetzt die günstigste Umzugsfirma in deiner Region!
Umzugskosten berechnen Schütze dich vor Betrug!
Leiste keinerlei Zahlung im Vorraus!
Beachte unsere Sicherheitshinweise zum Thema Immobilienbetrug und lies, woran du solche Anzeigen erkennen kannst und wie du dich vor Betrügern schützt.
Anzeige melden Beachte unsere Sicherheitshinweise zum Thema Immobilienbetrug und lies, woran du solche Anzeigen erkennen kannst und wie du dich vor Betrügern schützt.
*Anzeige
Ähnliche Häuser bei ImmoScout24
Karsdorf
- Miete
- 50 €
- Zimmer
- 5 Zi.
- Fläche
- 130 Zi.
Anbieter
privater AnbieterWeitere Ergebnisse für:
Wohnungen
Karsdorf;
Immobilien
Karsdorf;
Haus mieten
Karsdorf;
WG Zimmer
Karsdorf;
Wohnung
Karsdorf kaufen;
Haus kaufen
Karsdorf;
wohnungsboerse.net übernimmt keine Gewähr für von Dritten gemachte Angaben



















