
Dachgeschosswohnung in Essen-Haarzopf
Helle freundliche Dachgeschosswohnung in Essen-Haarzopf
auf der Karte ansehenUmzugskosten berechnen
- Kaltmiete
- 603,75 €
- Zimmer
- 2.5
- Fläche
- 75 m²
666 Aufrufe
Objekt-ID: 38308419
| Objekttyp: | Dachgeschosswohnung |
| Zimmer: | 2.5 |
| Größe: | 75.00 m² |
| Etage: | 3 von 3 |
| Frei ab: | 1.10.2025 |
Preise & Kosten
| Kaltmiete: | 603,75 € |
| Nebenkosten: | 216,25 € |
| Gesamtmiete: |
820 € |
| Preis/m²: | 8,05 € |
| Mit Mietspiegel Essen vergleichen | |
| Kaution: | k.A. |
Immobilie
Einbauküche
Keller
| Baujahr: | 1928 |
| Befeuerungsart: | Zentralheizung |
| Energieausweis: | Bedarfsausweis |
| Endenergiebedarf: | 110,60 kWh/(m²*a) |
| Energieeffizienzklasse: | D |
Objektbeschreibung
Die angebotene Dachgeschoßwohnung ist eine von 4 Wohnungen in einem gut gepflegten Mehrfamilienhaus. Das Haus ist gut gedämmt, hat eine 2024 erneuerte Gaszentralheizung, die auch zukünftig mit Wasserstoff betrieben werden kann. Der Verzicht auf z.B. einen Fahrstuhl hält die Nebenkosten niedrig.
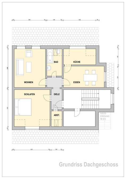
Die Wohnung liegt in der 2. Etage und hat helle Zimmer mit einem weiten Blick ins Land. 2 Zimmer sind vergleichbar groß und eignen sich wahlweise als Schlaf- oder Wohnraum. Über einen Vorraum erreicht man die Küche, welche u.a. über einen Kühlschrank, einen Herd und eine Spülmaschine verfügt. In der Wohnung befinden sich noch ein Bad und ein Abstellraum.
Zuätzlich gibt es einen Keller sowie die Mitbenutzung von Trockenboden und Fahrradabstellraum im Hof. Ein fester PKW-Stellplatz im Hof kann ebenfalls gemietet werden. Ruhiges Haus, sehr gepflegt.
Die Wohnung liegt in der 2. Etage und hat helle Zimmer mit einem weiten Blick ins Land. 2 Zimmer sind vergleichbar groß und eignen sich wahlweise als Schlaf- oder Wohnraum. Über einen Vorraum erreicht man die Küche, welche u.a. über einen Kühlschrank, einen Herd und eine Spülmaschine verfügt. In der Wohnung befinden sich noch ein Bad und ein Abstellraum.
Zuätzlich gibt es einen Keller sowie die Mitbenutzung von Trockenboden und Fahrradabstellraum im Hof. Ein fester PKW-Stellplatz im Hof kann ebenfalls gemietet werden. Ruhiges Haus, sehr gepflegt.
Lage
45149 EssenEssen Haarzopf
Der aktuelle durchschnittliche Quadratmeterpreis beträgt 8,61 €/m² in Essen - Haarzopf. Der durchschnittliche Quadratmeterpreis in Essen liegt derzeit bei 9,88 €/m².
Mit Mietspiegel
Essen vergleichen
Was kostet dein Umzug?
Du planst einen Umzug? Finde jetzt die günstigste Umzugsfirma in deiner Region!
Umzugskosten berechnen Schütze dich vor Betrug!
Leiste keinerlei Zahlung im Vorraus!
Beachte unsere Sicherheitshinweise zum Thema Immobilienbetrug und lies, woran du solche Anzeigen erkennen kannst und wie du dich vor Betrügern schützt.
Anzeige melden Beachte unsere Sicherheitshinweise zum Thema Immobilienbetrug und lies, woran du solche Anzeigen erkennen kannst und wie du dich vor Betrügern schützt.
*Anzeige
Ähnliche Wohnungen bei ImmoScout24
Essen-Haarzopf
- Miete
- 500 €
- Zimmer
- 2.5 Zi.
- Fläche
- 65 Zi.
Weitere Ergebnisse für:
Wohnungen
Essen;
Immobilien
Essen;
Haus mieten
Essen;
WG Zimmer
Essen;
Wohnung
Essen kaufen;
Haus kaufen
Essen;
Immobilienpreise
Essen Mietspiegel
Essen wohnungsboerse.net übernimmt keine Gewähr für von Dritten gemachte Angaben