
Erdgeschosswohnung in Ludwigshafen am Rhein-Nord/Hemshof
Objekt nicht gefunden
auf der Karte ansehenUmzugskosten berechnen
- Kaltmiete
- 1.200 €
- Zimmer
- 4
- Fläche
- 106.03 m²
8 Aufrufe
Objekt-ID: 38472426
Objekttyp: | Erdgeschosswohnung |
Zimmer: | 4 |
Größe: | 106.03 m² |
Frei ab: | 01.12.2025 |
Preise & Kosten
Kaltmiete: | k.A. |
Nebenkosten: | 375 € |
Gesamtmiete: |
k.A. |
Preis/m²: | 11,32 € |
Mit Mietspiegel Ludwigshafen am Rhein vergleichen | |
Kaution: | k.A. |
Immobilie
Keller
Altbau
Tiere erlaubt
Baujahr: | 1904 |
Befeuerungsart: | Gas |
Energieausweis: | Verbrauchsausweis |
Endenergiebedarf: | 109,00 kWh/(m²*a) |
Energieeffizienzklasse: | D |
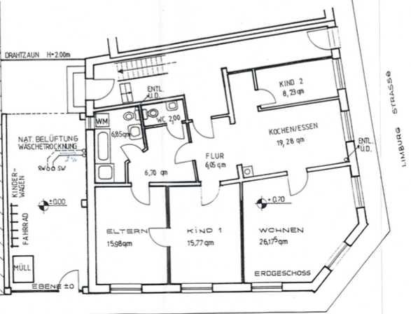
Objektbeschreibung
Diese großzügige Altbauwohnung mit ca. 106 m² befindet sich in einem Mehrfamilienhaus und besticht durch ihren klassischen Charme mit hohen Decken und einem funktionalen Grundriss. Die Wohnung verfügt über vier Zimmer und eignet sich hervorragend für Familien mit Kindern oder als WG – zum Beispiel für Studierende.
Die Wohnung wurde 2023 umfassend renoviert. Nach dem letzten Mietverhältnis wird sie aktuell nochmals frisch überarbeitet, sodass Sie in ein gepflegtes, modernes Zuhause einziehen können.
Die Wohnung wurde 2023 umfassend renoviert. Nach dem letzten Mietverhältnis wird sie aktuell nochmals frisch überarbeitet, sodass Sie in ein gepflegtes, modernes Zuhause einziehen können.
Lage
67063 Ludwigshafen am RheinLudwigshafen am Rhein Nord/Hemshof
Der aktuelle durchschnittliche Quadratmeterpreis beträgt 11,94 €/m² in Ludwigshafen am Rhein - Nord/Hemshof. Der durchschnittliche Quadratmeterpreis in Ludwigshafen am Rhein liegt derzeit bei 11,97 €/m².
Mit Mietspiegel
Ludwigshafen am Rhein vergleichen
Was kostet dein Umzug?
Du planst einen Umzug? Finde jetzt die günstigste Umzugsfirma in deiner Region!
Umzugskosten berechnen Schütze dich vor Betrug!
Leiste keinerlei Zahlung im Vorraus!
Beachte unsere Sicherheitshinweise zum Thema Immobilienbetrug und lies, woran du solche Anzeigen erkennen kannst und wie du dich vor Betrügern schützt.
Anzeige melden Beachte unsere Sicherheitshinweise zum Thema Immobilienbetrug und lies, woran du solche Anzeigen erkennen kannst und wie du dich vor Betrügern schützt.
*Anzeige

Ähnliche Wohnungen bei ImmoScout24
Ludwigshafen am Rhein-Nord/Hemshof
- Miete
- 1.050 €
- Zimmer
- 4 Zi.
- Fläche
- 100 Zi.
Anbieter
privater Anbieter
Diese Anzeige ist momentan deaktiviert. Daher ist eine Kontaktaufnahme nicht möglich.
Weitere Ergebnisse für:
Wohnungen
Ludwigshafen am Rhein;
Immobilien
Ludwigshafen am Rhein;
Haus mieten
Ludwigshafen am Rhein;
WG Zimmer
Ludwigshafen am Rhein;
Wohnung
Ludwigshafen am Rhein kaufen;
Haus kaufen
Ludwigshafen am Rhein;
Immobilienpreise
Ludwigshafen am Rhein Mietspiegel
Ludwigshafen am Rhein wohnungsboerse.net übernimmt keine Gewähr für von Dritten gemachte Angaben