
Dachgeschosswohnung in Burscheid
moderne, barrierefreie Neubau-Whg, 4 Zimmer, 116 m², Decke bis zu 4m
auf der Karte ansehenUmzugskosten berechnen
- Kaltmiete
- 1.627 €
- Zimmer
- 4
- Fläche
- 116 m²
7 Aufrufe
Objekt-ID: 38494800
Objekttyp: | Dachgeschosswohnung |
Zimmer: | 4 |
Größe: | 116.00 m² |
Etage: | 3 von 3 |
Frei ab: | 1.2.2026 |
Preise & Kosten
Kaltmiete: | 1.627 € |
Nebenkosten: | 305 € |
Gesamtmiete: |
1.932 € |
Preis/m²: | 14,03 € |
Mit Mietspiegel Burscheid vergleichen | |
Kaution: | k.A. |
Immobilie
Balkon
Aufzug
Keller
Neubau
Behindertengerecht
Baujahr: | 2025 |
Befeuerungsart: | Wärmepumpe |
Energieausweis: | Verbrauchsausweis |
Endenergiebedarf: | 19,00 kWh/(m²*a) |
Energieeffizienzklasse: | A+ |
Objektbeschreibung
Objektbeschreibung: Wohnung Nr. 8
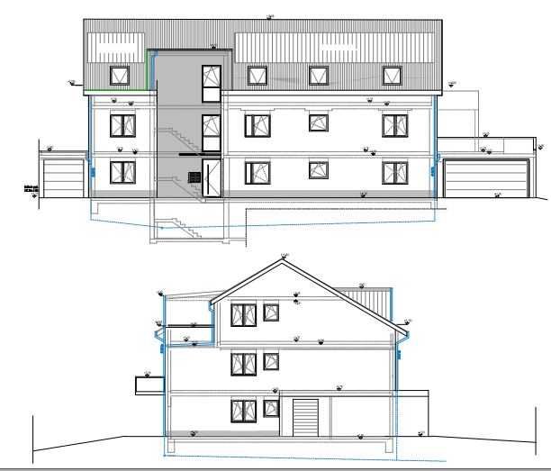
Bei diesem Mehrfamilienhaus mit acht Wohneinheiten handelt es sich um eine Sanierung mit Anbau des Wohnhauses Dünweg 37 in Burscheid (Hilgen).
Auf drei Geschosse (Erdgeschoss, Obergeschoss, Dachgeschoss) erstrecken sich 2-, 3- und 4-Zimmer-Wohneinheiten. Die Größenordnung der Wohnungen bewegen sich von ca. 42 m2 bis ca. 120 m2. Die Flächen der Terrassen/Balkone zählen zur Hälfte zur Wohnfläche. Zusätzliche Kellerräume für ausreichenden Stauraum stehen im Kellergeschoss zur Verfügung. Fahrradabstellmöglichkeiten sind vorhanden. Vor dem Haus bzw. im hinteren Teil des Grundstückes stehen 9 PKW-Stellplätze im Außenbereich zur Verfügung. Zudem gib es eine Doppel- und eine Einzelgarage. Die Stellplätze können separat angemietet werden. Die Wohnungen sind barrierefrei zugänglich, durch einen Personenaufzug gelangt man bequem in alle Stockwerke.
Ein vorzeitiger Energieausweis liegt vor, der Wert liegt bei 19,0 kWh/m2*a, Effizienzklasse A+.
Die Fenster sind 3-fach isolierverglast und überwiegend von außen mit elektrischen Raffstores versehen. Die Wohnungen werden durch eine Fußbodenheizung (mit moderner PVC-Boden) beheizt, die Temperatur kann in jedem Raum individuell durch einen Regler gesteuert werden. Der Hauptwärmeerzeuger ist Luftwärme (Wärmepumpe). Die Bäder und Gäste-WCs sind modern gefliest.
Bei diesem Mehrfamilienhaus mit acht Wohneinheiten handelt es sich um eine Sanierung mit Anbau des Wohnhauses Dünweg 37 in Burscheid (Hilgen).
Auf drei Geschosse (Erdgeschoss, Obergeschoss, Dachgeschoss) erstrecken sich 2-, 3- und 4-Zimmer-Wohneinheiten. Die Größenordnung der Wohnungen bewegen sich von ca. 42 m2 bis ca. 120 m2. Die Flächen der Terrassen/Balkone zählen zur Hälfte zur Wohnfläche. Zusätzliche Kellerräume für ausreichenden Stauraum stehen im Kellergeschoss zur Verfügung. Fahrradabstellmöglichkeiten sind vorhanden. Vor dem Haus bzw. im hinteren Teil des Grundstückes stehen 9 PKW-Stellplätze im Außenbereich zur Verfügung. Zudem gib es eine Doppel- und eine Einzelgarage. Die Stellplätze können separat angemietet werden. Die Wohnungen sind barrierefrei zugänglich, durch einen Personenaufzug gelangt man bequem in alle Stockwerke.
Ein vorzeitiger Energieausweis liegt vor, der Wert liegt bei 19,0 kWh/m2*a, Effizienzklasse A+.
Die Fenster sind 3-fach isolierverglast und überwiegend von außen mit elektrischen Raffstores versehen. Die Wohnungen werden durch eine Fußbodenheizung (mit moderner PVC-Boden) beheizt, die Temperatur kann in jedem Raum individuell durch einen Regler gesteuert werden. Der Hauptwärmeerzeuger ist Luftwärme (Wärmepumpe). Die Bäder und Gäste-WCs sind modern gefliest.
Lage
Dünweg51399 Burscheid
Burscheid
Der aktuelle durchschnittliche Quadratmeterpreis beträgt 10,65 €/m² in Burscheid.
Mit Mietspiegel
Burscheid vergleichen
Was kostet dein Umzug?
Du planst einen Umzug? Finde jetzt die günstigste Umzugsfirma in deiner Region!
Umzugskosten berechnen Schütze dich vor Betrug!
Leiste keinerlei Zahlung im Vorraus!
Beachte unsere Sicherheitshinweise zum Thema Immobilienbetrug und lies, woran du solche Anzeigen erkennen kannst und wie du dich vor Betrügern schützt.
Anzeige melden Beachte unsere Sicherheitshinweise zum Thema Immobilienbetrug und lies, woran du solche Anzeigen erkennen kannst und wie du dich vor Betrügern schützt.
*Anzeige

Ähnliche Wohnungen bei ImmoScout24
Burscheid
- Miete
- 1.500 €
- Zimmer
- 4 Zi.
- Fläche
- 110 Zi.
Weitere Ergebnisse für:
Wohnungen
Burscheid;
Immobilien
Burscheid;
Haus mieten
Burscheid;
WG Zimmer
Burscheid;
Wohnung
Burscheid kaufen;
Haus kaufen
Burscheid;
Immobilienpreise
Burscheid Mietspiegel
Burscheid wohnungsboerse.net übernimmt keine Gewähr für von Dritten gemachte Angaben