
Erdgeschosswohnung in Regensburg-Burgweinting-Harting
Sonnige und seniorengerechte Terrassenwohnung mit Garten! Barrierefrei!!! B1.0.3
auf der Karte ansehenUmzugskosten berechnen
- Kaltmiete
- 650 €
- Zimmer
- 2
- Fläche
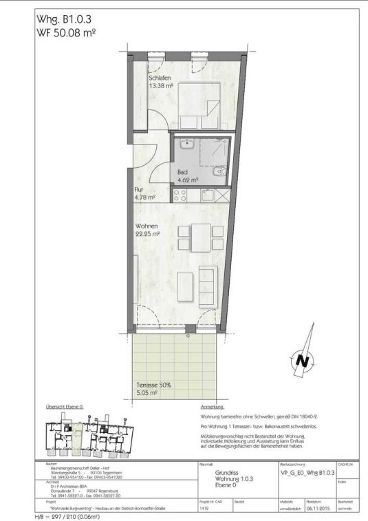
- 50.08 m²
5 Aufrufe
Objekt-ID: 38593692
Objekttyp: | Erdgeschosswohnung |
Zimmer: | 2 |
Größe: | 50.08 m² |
Frei ab: | 15.01.2026 |
Preise & Kosten
Kaltmiete: | 650 € |
Nebenkosten: | 170 € |
Gesamtmiete: |
820 € |
Preis/m²: | 12,98 € |
Mit Mietspiegel Regensburg vergleichen | |
Kaution: | k.A. |
Immobilie
Balkon
Terrasse
Garten
Einbauküche
Aufzug
Keller
Behindertengerecht
Baujahr: | 2016 |
Objektbeschreibung
Die Mietklienten müssen mindestens 60 Jahre oder körperlich beeinträchtigt (mind. 50 %) sein.
Die Mietwohnanlage für seniorengerechtes Wohnen befindet
sich in bester Lage im Zentrum von Burgweinting.
Das Objekt grenzt direkt an ein Nahversorgungszentrum.
Ganz in der Nähe des Objekts befinden sich mehrere
Grünflächen die auf einen Sparziergang und zum Verweilen
einladen.
Die Wohnung verfügt über eine Terrasse.
Die Mietwohnanlage für seniorengerechtes Wohnen befindet
sich in bester Lage im Zentrum von Burgweinting.
Das Objekt grenzt direkt an ein Nahversorgungszentrum.
Ganz in der Nähe des Objekts befinden sich mehrere
Grünflächen die auf einen Sparziergang und zum Verweilen
einladen.
Die Wohnung verfügt über eine Terrasse.
Lage
Dietrich-Bonhoeffer-Str.93055 Regensburg
Regensburg Burgweinting-Harting
Der aktuelle durchschnittliche Quadratmeterpreis beträgt 14,34 €/m² in Regensburg - Burgweinting-Harting. Der durchschnittliche Quadratmeterpreis in Regensburg liegt derzeit bei 14,70 €/m².
Mit Mietspiegel
Regensburg vergleichen
Was kostet dein Umzug?
Du planst einen Umzug? Finde jetzt die günstigste Umzugsfirma in deiner Region!
Umzugskosten berechnen Schütze dich vor Betrug!
Leiste keinerlei Zahlung im Vorraus!
Beachte unsere Sicherheitshinweise zum Thema Immobilienbetrug und lies, woran du solche Anzeigen erkennen kannst und wie du dich vor Betrügern schützt.
Anzeige melden Beachte unsere Sicherheitshinweise zum Thema Immobilienbetrug und lies, woran du solche Anzeigen erkennen kannst und wie du dich vor Betrügern schützt.
*Anzeige

Ähnliche Wohnungen bei ImmoScout24
Regensburg-Burgweinting-Harting
- Miete
- 500 €
- Zimmer
- 2 Zi.
- Fläche
- 45 Zi.
Anbieter
Weitere Ergebnisse für:
Wohnungen
Regensburg;
Immobilien
Regensburg;
Haus mieten
Regensburg;
WG Zimmer
Regensburg;
Wohnung
Regensburg kaufen;
Haus kaufen
Regensburg;
Immobilienpreise
Regensburg Mietspiegel
Regensburg wohnungsboerse.net übernimmt keine Gewähr für von Dritten gemachte Angaben