
Etagenwohnung in Zell am Harmersbach
3 Zimmer Wohnung im Zentrum von Zell a. H.
auf der Karte ansehenUmzugskosten berechnen
- Kaltmiete
- 1.150 €
- Zimmer
- 3
- Fläche
- 106 m²
8 Aufrufe
Objekt-ID: 38628080
Objekttyp: | Etagenwohnung |
Zimmer: | 3 |
Größe: | 106.00 m² |
Etage: | 1 von 1 |
Frei ab: | 01.02.2026 |
Preise & Kosten
Kaltmiete: | 1.150 € |
Nebenkosten: | 150 € |
Gesamtmiete: |
1.300 € |
Preis/m²: | 10,85 € |
Mit Mietspiegel Zell am Harmersbach vergleichen | |
Kaution: | k.A. |
Immobilie
Balkon
Einbauküche
Keller
Baujahr: | 2017 |
Befeuerungsart: | Zentralheizung |
Energieausweis: | Verbrauchsausweis |
Endenergiebedarf: | 53,10 kWh/(m²*a) |
Energieeffizienzklasse: | B |
Objektbeschreibung
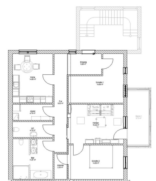
Die angebotene 3-Zimmerwohnung liegt zentral in Zell am Harmersbach und verfügt über 2 Schlafzimmer bzw. ein Schlafzimmer und ein Büro. Das Hauptschlafzimmer verfügt über einen begehbarem Kleiderschrank. Das Wohnzimmer verfügt über einen angeschlossenen Balkon. Das große Badezimmer ist mit Badewanne, großer Dusche und WC ausgestattet. Ferner verfügt die Wohnung über ein großzügiges separates Gäste-WC. In der Wohnung befindet sich zudem ein Abstell- / Waschraum sowie eine großzügige Küche mit Blick in den Stadtpark. Ebenfalls zur Wohnung werden zwei Stellplätze im abgeschlossenen Fahrradraum mit E-Lade-Station sowie ein Kellerraum zur Nutzung überlassen.
Lage
77736 Zell am HarmersbachZell am Harmersbach
Der aktuelle durchschnittliche Quadratmeterpreis beträgt 9,74 €/m² in Zell am Harmersbach.
Mit Mietspiegel
Zell-am-Harmersbach vergleichen
Was kostet dein Umzug?
Du planst einen Umzug? Finde jetzt die günstigste Umzugsfirma in deiner Region!
Umzugskosten berechnen Schütze dich vor Betrug!
Leiste keinerlei Zahlung im Vorraus!
Beachte unsere Sicherheitshinweise zum Thema Immobilienbetrug und lies, woran du solche Anzeigen erkennen kannst und wie du dich vor Betrügern schützt.
Anzeige melden Beachte unsere Sicherheitshinweise zum Thema Immobilienbetrug und lies, woran du solche Anzeigen erkennen kannst und wie du dich vor Betrügern schützt.
*Anzeige

Ähnliche Wohnungen bei ImmoScout24
Zell am Harmersbach
- Miete
- 1.000 €
- Zimmer
- 3 Zi.
- Fläche
- 100 Zi.
Anbieter
Weitere Ergebnisse für:
Wohnungen
Zell am Harmersbach;
Immobilien
Zell am Harmersbach;
Haus mieten
Zell am Harmersbach;
WG Zimmer
Zell am Harmersbach;
Wohnung
Zell am Harmersbach kaufen;
Haus kaufen
Zell am Harmersbach;
Immobilienpreise
Zell am Harmersbach Mietspiegel
Zell am Harmersbach wohnungsboerse.net übernimmt keine Gewähr für von Dritten gemachte Angaben