
Reiheneckhaus mieten in Zeven
Endreihenhaus direkt am Wald
auf der Karte ansehenUmzugskosten berechnen
- Kaltmiete
- 1.200 €
- Zimmer
- 5
- Fläche
- 123.54 m²
2 Aufrufe
Objekt-ID: 38634338
Objekttyp: | Reiheneckhaus |
Zimmer: | 5 |
Größe: | 123.54 m² |
Grundstücksfläche: | 555,00 m² |
Frei ab: | 1.1.2026 |
Preise & Kosten
Kaltmiete: | 1.200 € |
Nebenkosten: | 140 € |
Gesamtmiete: |
1.340 € |
Preis/m²: | 9,71 € |
Mit Mietspiegel Zeven vergleichen | |
Kaution: | k.A. |
Immobilie
Einbauküche
Keller
Tiere erlaubt
Behindertengerecht
Baujahr: | 1970 |
Befeuerungsart: | Gas |
Objektbeschreibung
Das Endreihenhaus befindet sich in schöner Lage direkt an einem Wald. Das 555 qm große Grundstück ist trapezförmig geschnitten. Durch die geschickte Positionierung des Hauses ist der Garten wirklich großzügig geschnitten.
Insgesamt verfügt das Haus über 4 Etagen (Keller-, Erd-, Ober- und Dachgeschoss) und wurde in massiver Bauweise erstellt. Im Jahr 2014 wurde das Haus komplett saniert. So finden eine hochwertige Ausstattung, neue Fenster, neue Elektro- und Sanitärleitungen sowie ein vollgedämmtes Dachgeschoss wieder.
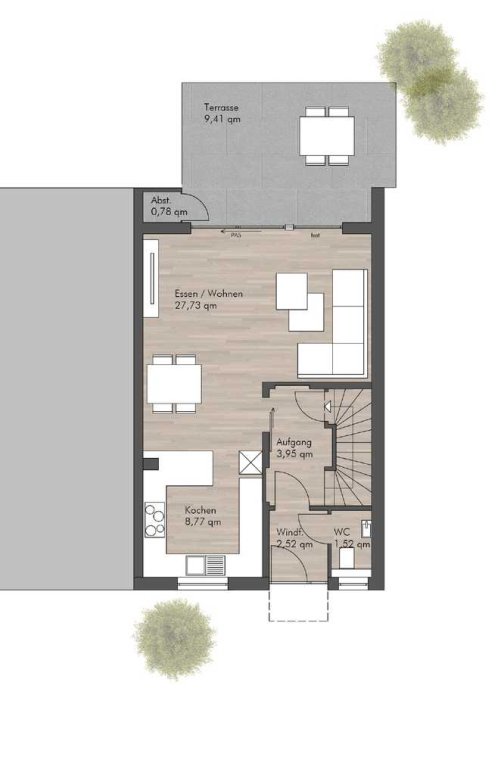
Betritt man das Haus gelangt man zunächst in den Windfang, von dem aus das moderne Gäste-WC abgeht. Anschließend geht es in den Treppenaufgang, ehe der großzügige Koch-, Ess- und Wohnbereich folgt.
Die Küche liegt zur Eingangsseite hin. Sie wurde von einem Tischler gefertigt und verfügt über große Schubladen, eine Kochinsel und hochwertige E-Geräte. Zum Garten hin folgt zunächst der Ess- und dann der Wohnbereich. Dieser Bereich ist sehr lichtdurchflutet und beinhaltet als Highlight eine Parallel-Abstell-Schiebetür zum Garten.
Das Kellergeschoss verfügt über eine gute Deckenhöhe und beinhaltet einen Waschraum sowie einen großen Mehrzweckraum. Hier sind der Kreativität keine Grenzen gesetzt.
Aus dem Erdgeschoss gelangt man über die Treppe mit dunkelbraunen Massivholzstufen in das Obergeschoss. Hier befindet sich zunächst das großzügige Schlafzimmer mit riesiger Stellfläche für einen Kleiderschrank und direktem Zugang zur Loggia.
Auch eins der beiden Kinderzimmer auf dieser Etage verfügt über einen weiteren Zugang zur Loggia.
Auf der Eingangsseite befindet sich das schöne, helle Bad. In sandfarben gestaltet verfügt es über eine bodengleiche Dusche sowie über hochwertigste Badmöbel – ebenfalls vom Tischler.
Über die offene Holztreppe geht es weiter nach oben ins voll ausgebaute und effizient-gedämmte Dachgeschoss. Hier befinden sich zwei weitere Räume, die vielseitig genutzt werden können. Das tolle ist, dass der Treppenaufgang mit viel Tageslicht durch
Insgesamt verfügt das Haus über 4 Etagen (Keller-, Erd-, Ober- und Dachgeschoss) und wurde in massiver Bauweise erstellt. Im Jahr 2014 wurde das Haus komplett saniert. So finden eine hochwertige Ausstattung, neue Fenster, neue Elektro- und Sanitärleitungen sowie ein vollgedämmtes Dachgeschoss wieder.
Betritt man das Haus gelangt man zunächst in den Windfang, von dem aus das moderne Gäste-WC abgeht. Anschließend geht es in den Treppenaufgang, ehe der großzügige Koch-, Ess- und Wohnbereich folgt.
Die Küche liegt zur Eingangsseite hin. Sie wurde von einem Tischler gefertigt und verfügt über große Schubladen, eine Kochinsel und hochwertige E-Geräte. Zum Garten hin folgt zunächst der Ess- und dann der Wohnbereich. Dieser Bereich ist sehr lichtdurchflutet und beinhaltet als Highlight eine Parallel-Abstell-Schiebetür zum Garten.
Das Kellergeschoss verfügt über eine gute Deckenhöhe und beinhaltet einen Waschraum sowie einen großen Mehrzweckraum. Hier sind der Kreativität keine Grenzen gesetzt.
Aus dem Erdgeschoss gelangt man über die Treppe mit dunkelbraunen Massivholzstufen in das Obergeschoss. Hier befindet sich zunächst das großzügige Schlafzimmer mit riesiger Stellfläche für einen Kleiderschrank und direktem Zugang zur Loggia.
Auch eins der beiden Kinderzimmer auf dieser Etage verfügt über einen weiteren Zugang zur Loggia.
Auf der Eingangsseite befindet sich das schöne, helle Bad. In sandfarben gestaltet verfügt es über eine bodengleiche Dusche sowie über hochwertigste Badmöbel – ebenfalls vom Tischler.
Über die offene Holztreppe geht es weiter nach oben ins voll ausgebaute und effizient-gedämmte Dachgeschoss. Hier befinden sich zwei weitere Räume, die vielseitig genutzt werden können. Das tolle ist, dass der Treppenaufgang mit viel Tageslicht durch
Lage
27404 ZevenZeven
Der aktuelle durchschnittliche Quadratmeterpreis beträgt 9,26 €/m² in Zeven.
Mit Mietspiegel
Zeven vergleichen
Was kostet dein Umzug?
Du planst einen Umzug? Finde jetzt die günstigste Umzugsfirma in deiner Region!
Umzugskosten berechnen Schütze dich vor Betrug!
Leiste keinerlei Zahlung im Vorraus!
Beachte unsere Sicherheitshinweise zum Thema Immobilienbetrug und lies, woran du solche Anzeigen erkennen kannst und wie du dich vor Betrügern schützt.
Anzeige melden Beachte unsere Sicherheitshinweise zum Thema Immobilienbetrug und lies, woran du solche Anzeigen erkennen kannst und wie du dich vor Betrügern schützt.
*Anzeige

Ähnliche Häuser bei ImmoScout24
Zeven
- Miete
- 1.050 €
- Zimmer
- 5 Zi.
- Fläche
- 115 Zi.
Weitere Ergebnisse für:
Wohnungen
Zeven;
Immobilien
Zeven;
Haus mieten
Zeven;
WG Zimmer
Zeven;
Wohnung
Zeven kaufen;
Haus kaufen
Zeven;
Immobilienpreise
Zeven Mietspiegel
Zeven wohnungsboerse.net übernimmt keine Gewähr für von Dritten gemachte Angaben