
Wohnung in Swisttal
2-Zimmer Neubauwohnung WBS erforderlich
auf der Karte ansehenUmzugskosten berechnen
- Kaltmiete
- 396,64 €
- Zimmer
- 2
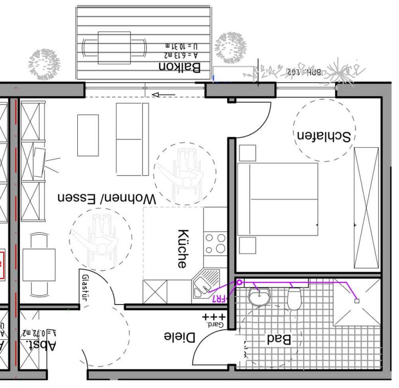
- Fläche
- 59.2 m²
10 Aufrufe
Objekt-ID: 38635844
Objekttyp: | Keine Angabe |
Zimmer: | 2 |
Größe: | 59.20 m² |
Etage: | 1 von 3 |
Frei ab: | 15.01.2026 |
Preise & Kosten
Kaltmiete: | 396,64 € |
Nebenkosten: | 184,20 € |
Gesamtmiete: |
580,84 € |
Preis/m²: | 6,70 € |
Mit Mietspiegel Swisttal vergleichen | |
Kaution: | k.A. |
Immobilie
Balkon
Aufzug
Keller
Neubau
Tiere erlaubt
Behindertengerecht
Baujahr: | 2026 |
Befeuerungsart: | Umweltwärme |
Energieausweis: | Energieausweis in Vorbereitung |
Objektbeschreibung
Ein aktueller Energieausweis liegt zur Besichtigung vor. Das Objekt ist barrierefrei und lässt sich bequem über einen Fahrstuhl erreichen. Den Balkon können Sie an sonnigen Tagen zum zweiten Wohnzimmer machen. Im vorhandenen Kellerraum können Sie Ihr Hab und Gut bequem unterbringen.
Lage
53913 SwisttalSwisttal
Der aktuelle durchschnittliche Quadratmeterpreis beträgt 10,32 €/m² in Swisttal.
Mit Mietspiegel
Swisttal vergleichen
Was kostet dein Umzug?
Du planst einen Umzug? Finde jetzt die günstigste Umzugsfirma in deiner Region!
Umzugskosten berechnen Schütze dich vor Betrug!
Leiste keinerlei Zahlung im Vorraus!
Beachte unsere Sicherheitshinweise zum Thema Immobilienbetrug und lies, woran du solche Anzeigen erkennen kannst und wie du dich vor Betrügern schützt.
Anzeige melden Beachte unsere Sicherheitshinweise zum Thema Immobilienbetrug und lies, woran du solche Anzeigen erkennen kannst und wie du dich vor Betrügern schützt.
*Anzeige

Ähnliche Wohnungen bei ImmoScout24
Swisttal
- Miete
- 250 €
- Zimmer
- 2 Zi.
- Fläche
- 50 Zi.
Anbieter
Weitere Ergebnisse für:
Wohnungen
Swisttal;
Immobilien
Swisttal;
Haus mieten
Swisttal;
WG Zimmer
Swisttal;
Wohnung
Swisttal kaufen;
Haus kaufen
Swisttal;
Immobilienpreise
Swisttal Mietspiegel
Swisttal wohnungsboerse.net übernimmt keine Gewähr für von Dritten gemachte Angaben