
Erdgeschosswohnung in Minden
Moderne 4-Zimmer-Neubauwohnung mit Terrasse in Minden – Erstbezug ab 01.12.2025
auf der Karte ansehenUmzugskosten berechnen
- Kaltmiete
- 1.467 €
- Zimmer
- 4
- Fläche
- 109 m²
15 Aufrufe
Objekt-ID: 38654751
| Objekttyp: | Erdgeschosswohnung |
| Zimmer: | 4 |
| Größe: | 109.00 m² |
| Frei ab: | 01.12.2025 |
Preise & Kosten
| Kaltmiete: | 1.467 € |
| Nebenkosten: | 326 € |
| Gesamtmiete: |
1.793 € |
| Preis/m²: | 13,46 € |
| Mit Mietspiegel Minden vergleichen | |
| Kaution: | k.A. |
Immobilie
Balkon
Terrasse
Einbauküche
Aufzug
Keller
Neubau
Tiere erlaubt
| Baujahr: | 2025 |
| Befeuerungsart: | Wärmepumpe |
Objektbeschreibung
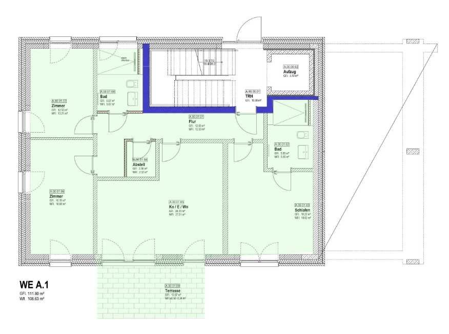
Im Erdgeschoss des Hauses A erwartet Sie eine moderne 4-Zimmer-Neubauwohnung mit ca. 109 m² Wohnfläche.
Das Herzstück bildet der helle Wohn- und Essbereich mit direktem Zugang zur Terrasse, der viel Platz für gemeinsames Wohnen bietet. Drei Schlafzimmer, ein modernes Badezimmer, ein zusätzliches Gäste-WC sowie eine hochwertige Einbauküche (Einbau bis Ende Oktober 2025) machen diese Wohnung besonders attraktiv.
Durch den Erstbezug profitieren Sie von einer zeitgemäßen Ausstattung und einem neuwertigen Zustand – ideal für Paare oder Familien mit Platzbedarf.
Das Herzstück bildet der helle Wohn- und Essbereich mit direktem Zugang zur Terrasse, der viel Platz für gemeinsames Wohnen bietet. Drei Schlafzimmer, ein modernes Badezimmer, ein zusätzliches Gäste-WC sowie eine hochwertige Einbauküche (Einbau bis Ende Oktober 2025) machen diese Wohnung besonders attraktiv.
Durch den Erstbezug profitieren Sie von einer zeitgemäßen Ausstattung und einem neuwertigen Zustand – ideal für Paare oder Familien mit Platzbedarf.
Lage
32425 MindenMinden
Der aktuelle durchschnittliche Quadratmeterpreis beträgt 9,88 €/m² in Minden.
Mit Mietspiegel
Minden vergleichen
Was kostet dein Umzug?
Du planst einen Umzug? Finde jetzt die günstigste Umzugsfirma in deiner Region!
Umzugskosten berechnen Schütze dich vor Betrug!
Leiste keinerlei Zahlung im Vorraus!
Beachte unsere Sicherheitshinweise zum Thema Immobilienbetrug und lies, woran du solche Anzeigen erkennen kannst und wie du dich vor Betrügern schützt.
Anzeige melden Beachte unsere Sicherheitshinweise zum Thema Immobilienbetrug und lies, woran du solche Anzeigen erkennen kannst und wie du dich vor Betrügern schützt.
*Anzeige
Ähnliche Wohnungen bei ImmoScout24
Minden
- Miete
- 1.350 €
- Zimmer
- 4 Zi.
- Fläche
- 100 Zi.
Anbieter
Weitere Ergebnisse für:
Wohnungen
Minden;
Immobilien
Minden;
Haus mieten
Minden;
WG Zimmer
Minden;
Wohnung
Minden kaufen;
Haus kaufen
Minden;
Immobilienpreise
Minden Mietspiegel
Minden wohnungsboerse.net übernimmt keine Gewähr für von Dritten gemachte Angaben