
Etagenwohnung in Fürth-Südstadt
3- Zimmer, Kernsanierter hochwertiger Jugendstil – für Liebhaber und alle, die es werden möchten
auf der Karte ansehenUmzugskosten berechnen
- Kaltmiete
- 1.350 €
- Zimmer
- 3
- Fläche
- 84 m²
4 Aufrufe
Objekt-ID: 38671079
Objekttyp: | Etagenwohnung |
Zimmer: | 3 |
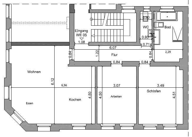
Größe: | 84.00 m² |
Etage: | 2 von 5 |
Frei ab: | 1.11.2025 |
Preise & Kosten
Kaltmiete: | 1.350 € |
Nebenkosten: | 250 € |
Gesamtmiete: |
1.600 € |
Preis/m²: | 16,07 € |
Mit Mietspiegel Fürth vergleichen | |
Kaution: | k.A. |
Immobilie
Einbauküche
Keller
Tiere erlaubt
Baujahr: | 1903 |
Befeuerungsart: | Gas |
Energieausweis: | Energieausweis nicht notwendig (Denkmalschutz) |
Objektbeschreibung
Willkommen in der charmanten Südstadt von Fürth! In der Balbiererstraße erwartet Sie Ihr neues Zuhause: eine stilvolle, kernsanierte 3-Zimmer-Wohnung mit ca. 83 m² Wohnfläche, die modernes Wohnen mit historischem Flair verbindet. Ein gepflegtes Haus mit einer guten Mischung an Eigentümern und Mietern runden die Immobilie ab.
Highlights der Wohnung:
Badezimmer mit bodengleicher Dusche (Echtglasduschwand), großer Badewanne, 1-Meter-Waschtisch und breitem Spiegel
Separates Gäste-WC mit Handwaschbecken (Warm- und Kaltwasser) – ideal für Besuch und Ihre Privatsphäre
Hochwertige Einbauküche mit Geräten von NEFF, Bosch/Siemens, Liebherr sowie Franke Spüle und Armatur
Großzügiger Wohn-/Essbereich mit fünf Fenstern – lichtdurchflutet von Mittag bis Abend
Moderne Ausstattung: Einbauspots (dimmbare Beleuchtung in Wohn-, Arbeits- und Schlafzimmer), Gira E2 Schalter/Steckdosen, Multimediaverteiler mit Netzwerkdosen in allen Räumen
Bodenbeläge: Objekt-Vinyl in Eiche-Nachbildung in den Wohnräumen, hochwertige Fliesen in Bad, WC und Flur
Komplett kernsaniert: Fenster, Türen, Heizkörper, Elektro- und Rohrleitungen wurden erneuert. Die Wände sind weiß und glatt gestrichen – Sie müssen nur noch Ihre Möbel mitbringen!
Wer den Haken sucht... Parkplätze - schwierig aber nicht unmöglich, zusätzlich kann man einen Parkplatz auf einer Brachfläche 60 Meter entfernt anmieten.
Hinweis:
Aktuell befinden wir uns noch in der finalen Phase der Kernsanierung. Die Fenster werden noch ausgetauscht nächste Woche. Ebenfalls müssen noch die finalen Arbeiten im Bad abgeschlossen werden und die Heizkörper und Sockelleisten montiert werden. Wie auch die Endmontage der Küche (Spüle &Herd) Weitere Aufnahmen sind auf Anfrage verfügbar.
Vereinbaren Sie gerne einen Besichtigungstermin für einen noch besseren Eindruck.
Highlights der Wohnung:
Badezimmer mit bodengleicher Dusche (Echtglasduschwand), großer Badewanne, 1-Meter-Waschtisch und breitem Spiegel
Separates Gäste-WC mit Handwaschbecken (Warm- und Kaltwasser) – ideal für Besuch und Ihre Privatsphäre
Hochwertige Einbauküche mit Geräten von NEFF, Bosch/Siemens, Liebherr sowie Franke Spüle und Armatur
Großzügiger Wohn-/Essbereich mit fünf Fenstern – lichtdurchflutet von Mittag bis Abend
Moderne Ausstattung: Einbauspots (dimmbare Beleuchtung in Wohn-, Arbeits- und Schlafzimmer), Gira E2 Schalter/Steckdosen, Multimediaverteiler mit Netzwerkdosen in allen Räumen
Bodenbeläge: Objekt-Vinyl in Eiche-Nachbildung in den Wohnräumen, hochwertige Fliesen in Bad, WC und Flur
Komplett kernsaniert: Fenster, Türen, Heizkörper, Elektro- und Rohrleitungen wurden erneuert. Die Wände sind weiß und glatt gestrichen – Sie müssen nur noch Ihre Möbel mitbringen!
Wer den Haken sucht... Parkplätze - schwierig aber nicht unmöglich, zusätzlich kann man einen Parkplatz auf einer Brachfläche 60 Meter entfernt anmieten.
Hinweis:
Aktuell befinden wir uns noch in der finalen Phase der Kernsanierung. Die Fenster werden noch ausgetauscht nächste Woche. Ebenfalls müssen noch die finalen Arbeiten im Bad abgeschlossen werden und die Heizkörper und Sockelleisten montiert werden. Wie auch die Endmontage der Küche (Spüle &Herd) Weitere Aufnahmen sind auf Anfrage verfügbar.
Vereinbaren Sie gerne einen Besichtigungstermin für einen noch besseren Eindruck.
Lage
Balbiererstraße90763 Fürth
Fürth Südstadt
Der aktuelle durchschnittliche Quadratmeterpreis beträgt 12,96 €/m² in Fürth - Südstadt. Der durchschnittliche Quadratmeterpreis in Fürth liegt derzeit bei 13,00 €/m².
Mit Mietspiegel
Fürth vergleichen
Was kostet dein Umzug?
Du planst einen Umzug? Finde jetzt die günstigste Umzugsfirma in deiner Region!
Umzugskosten berechnen Schütze dich vor Betrug!
Leiste keinerlei Zahlung im Vorraus!
Beachte unsere Sicherheitshinweise zum Thema Immobilienbetrug und lies, woran du solche Anzeigen erkennen kannst und wie du dich vor Betrügern schützt.
Anzeige melden Beachte unsere Sicherheitshinweise zum Thema Immobilienbetrug und lies, woran du solche Anzeigen erkennen kannst und wie du dich vor Betrügern schützt.
*Anzeige

Ähnliche Wohnungen bei ImmoScout24
Fürth-Südstadt
- Miete
- 1.200 €
- Zimmer
- 3 Zi.
- Fläche
- 75 Zi.
Weitere Ergebnisse für:
Wohnungen
Fürth;
Immobilien
Fürth;
Haus mieten
Fürth;
WG Zimmer
Fürth;
Wohnung
Fürth kaufen;
Haus kaufen
Fürth;
Immobilienpreise
Fürth Mietspiegel
Fürth wohnungsboerse.net übernimmt keine Gewähr für von Dritten gemachte Angaben