
Dachgeschosswohnung in Delbrück
Lichtdurchflutete 2-Zimmer-Staffelgeschosswohnung mit Balkon, 2 Stellplätzen & Gartenmitnutzung – ze
auf der Karte ansehenUmzugskosten berechnen
- Kaltmiete
- 750 €
- Zimmer
- 2
- Fläche
- 79 m²
19 Aufrufe
Objekt-ID: 38674985
| Objekttyp: | Dachgeschosswohnung |
| Zimmer: | 2 |
| Größe: | 79.00 m² |
| Etage: | 2 von 2 |
| Frei ab: | 1.1.2026 |
Preise & Kosten
| Kaltmiete: | 750 € |
| Nebenkosten: | 150 € |
| Gesamtmiete: |
900 € |
| Preis/m²: | 9,49 € |
| Mit Mietspiegel Delbrück vergleichen | |
| Kaution: | k.A. |
Immobilie
Balkon
Garten
Keller
| Baujahr: | 2018 |
| Befeuerungsart: | Fussbodenheizung |
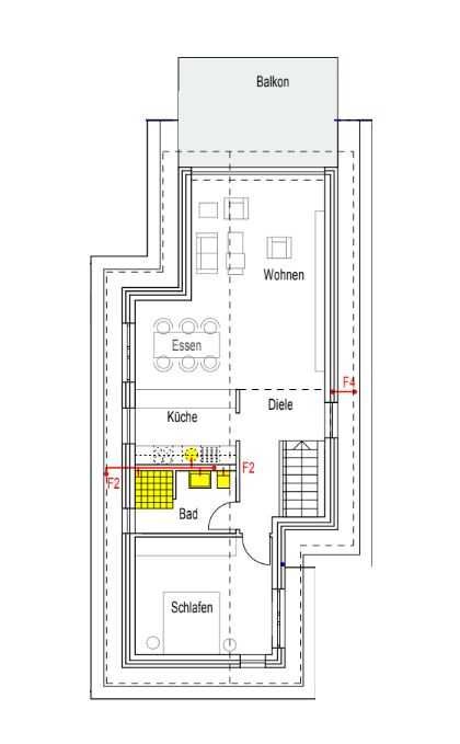
Objektbeschreibung
79 m² | 2 Zimmer | Balkon | Luft-Wärmepumpe | 2 Stellplätze (Tandem) | 3-Parteienhaus
Highlights
Wohnfläche ca. 79 m² im Staffelgeschoss eines Hauses mit nur 3 Wohneinheiten
Großzügiger Wohn-/Ess-/Kochbereich mit direktem Zugang zum Balkon
Hohe Decken für ein luftiges Raumgefühl
Einbauküche sowie weitere Möbelübernahme möglich (nach Absprache mit der/ dem Vormieter*in)
Energieeffiziente Luft-Wärmepumpe (Heizkosten bereits in NK enthalten)
2 Stellplätze (hintereinanderliegend) inklusive
Eigener Kellerraum, gemeinsamer Waschraum und gemeinsamer Trockenraum
Gartenmitbenutzung gewünscht, sowie eine kleine Gartenhütte als Fahrrad-Unterstand vorhanden
Objektbeschreibung:
Willkommen in Ihrem neuen Zuhause: Diese charmante 2-Zimmer-Wohnung im Staffelgeschoss überzeugt mit einem offenen Grundriss, viel Licht und hohen Decken. Der weitläufige Wohn-Ess-Bereich mit integrierter Küche öffnet sich zum sonnigen Balkon. Das Schlafzimmer bietet ruhige Rückzugsmöglichkeiten; das Tageslichtbad rundet das Raumangebot ab.
Ausstattung:
Bodenbeläge: Laminat im Schlafzimmer, Fliesen in den übrigen Bereichen
Luft-Wärmepumpe als Energieträger (unten ist zwar Erdwärme und Strom angegeben, aber Luft-Wärmepumpe war leider nicht auswählbar).
Balkon mit schönem Ausblick
Kellerabteil, Wasch- und Trockenraum zur gemeinschaftlichen Nutzung
2 PKW-Stellplätze (Tandem) direkt am Haus
Garten zur Mitbenutzung, Hütte als Unterstellmöglichkeit für Fahrräder
Sonstiges:
Die Wohnung eignet sich ideal für Singles oder Paare, die komfortables Wohnen mit zentrumsnaher Lage verbinden möchten. Interesse? Wir freuen uns auf Ihre Anfrage und vereinbaren gerne einen Besichtigungstermin.
Highlights
Wohnfläche ca. 79 m² im Staffelgeschoss eines Hauses mit nur 3 Wohneinheiten
Großzügiger Wohn-/Ess-/Kochbereich mit direktem Zugang zum Balkon
Hohe Decken für ein luftiges Raumgefühl
Einbauküche sowie weitere Möbelübernahme möglich (nach Absprache mit der/ dem Vormieter*in)
Energieeffiziente Luft-Wärmepumpe (Heizkosten bereits in NK enthalten)
2 Stellplätze (hintereinanderliegend) inklusive
Eigener Kellerraum, gemeinsamer Waschraum und gemeinsamer Trockenraum
Gartenmitbenutzung gewünscht, sowie eine kleine Gartenhütte als Fahrrad-Unterstand vorhanden
Objektbeschreibung:
Willkommen in Ihrem neuen Zuhause: Diese charmante 2-Zimmer-Wohnung im Staffelgeschoss überzeugt mit einem offenen Grundriss, viel Licht und hohen Decken. Der weitläufige Wohn-Ess-Bereich mit integrierter Küche öffnet sich zum sonnigen Balkon. Das Schlafzimmer bietet ruhige Rückzugsmöglichkeiten; das Tageslichtbad rundet das Raumangebot ab.
Ausstattung:
Bodenbeläge: Laminat im Schlafzimmer, Fliesen in den übrigen Bereichen
Luft-Wärmepumpe als Energieträger (unten ist zwar Erdwärme und Strom angegeben, aber Luft-Wärmepumpe war leider nicht auswählbar).
Balkon mit schönem Ausblick
Kellerabteil, Wasch- und Trockenraum zur gemeinschaftlichen Nutzung
2 PKW-Stellplätze (Tandem) direkt am Haus
Garten zur Mitbenutzung, Hütte als Unterstellmöglichkeit für Fahrräder
Sonstiges:
Die Wohnung eignet sich ideal für Singles oder Paare, die komfortables Wohnen mit zentrumsnaher Lage verbinden möchten. Interesse? Wir freuen uns auf Ihre Anfrage und vereinbaren gerne einen Besichtigungstermin.
Lage
Windthorststraße33129 Delbrück
Delbrück
Der aktuelle durchschnittliche Quadratmeterpreis beträgt 10,02 €/m² in Delbrück.
Mit Mietspiegel
Delbrueck vergleichen
Was kostet dein Umzug?
Du planst einen Umzug? Finde jetzt die günstigste Umzugsfirma in deiner Region!
Umzugskosten berechnen Schütze dich vor Betrug!
Leiste keinerlei Zahlung im Vorraus!
Beachte unsere Sicherheitshinweise zum Thema Immobilienbetrug und lies, woran du solche Anzeigen erkennen kannst und wie du dich vor Betrügern schützt.
Anzeige melden Beachte unsere Sicherheitshinweise zum Thema Immobilienbetrug und lies, woran du solche Anzeigen erkennen kannst und wie du dich vor Betrügern schützt.
*Anzeige
Ähnliche Wohnungen bei ImmoScout24
Delbrück
- Miete
- 600 €
- Zimmer
- 2 Zi.
- Fläche
- 70 Zi.
Weitere Ergebnisse für:
Wohnungen
Delbrück;
Immobilien
Delbrück;
Haus mieten
Delbrück;
WG Zimmer
Delbrück;
Wohnung
Delbrück kaufen;
Haus kaufen
Delbrück;
Immobilienpreise
Delbrück Mietspiegel
Delbrück wohnungsboerse.net übernimmt keine Gewähr für von Dritten gemachte Angaben