
Sonstige in Plüderhausen
Teilmöblierte 4-Zimmer-Wohnung in Plüderhausen in Höhenlage
auf der Karte ansehenUmzugskosten berechnen
- Kaltmiete
- 1.450 €
- Zimmer
- 4
- Fläche
- 135 m²
8 Aufrufe
Objekt-ID: 38703042
| Objekttyp: | Sonstige |
| Zimmer: | 4 |
| Größe: | 135.00 m² |
| Etage: | 2 von 2 |
| Frei ab: | 1.11.2025 |
Preise & Kosten
| Kaltmiete: | 1.450 € |
| Nebenkosten: | 250 € |
| Gesamtmiete: |
1.700 € |
| Preis/m²: | 10,74 € |
| Mit Mietspiegel Plüderhausen vergleichen | |
| Kaution: | k.A. |
Immobilie
Möbliert
Balkon
Garten
Einbauküche
Teilmöbliert
| Baujahr: | 1979 |
| Befeuerungsart: | Öl |
| Energieausweis: | Energieausweis in Vorbereitung |
Objektbeschreibung
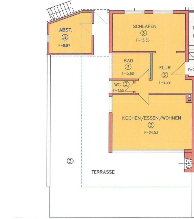
Diese großzügige 4-Zimmer-Wohnung mit ca. 135 m² Wohnfläche in Plüderhausen in Höhenlage mit bester Sicht über Plüderhausen und bei gutem Wetter bis Stuttgart steht ab dem 01.11.2025 zur Vermietung. Die Wohnung bietet viel Platz und Potenzial für individuelle Gestaltung. Die Heizkosten sind bereits in den Nebenkosten enthalten, was eine einfache und überschaubare Abrechnung ermöglicht. Die Wohnfläche ist ideal für Familien oder Paare, die Wert auf Raum legen.
Die Wohnung befindet sich über 2 Etagen, die 2 Wohnungen sind über eine Treppe im Flur verbunden. Im unteren Bereich befinden sich 2 Zimmer, ein Bad und ein WC. Zugang zur Terrasse und Garten befinden sich auch dort. Im Dachgeschoss ist der Zugang zum großen Balkon, außerdem befinden sich dort ein Zimmer, ein Bad und der großzügige Wohn- und Essbereich.
Die Wohnung befindet sich über 2 Etagen, die 2 Wohnungen sind über eine Treppe im Flur verbunden. Im unteren Bereich befinden sich 2 Zimmer, ein Bad und ein WC. Zugang zur Terrasse und Garten befinden sich auch dort. Im Dachgeschoss ist der Zugang zum großen Balkon, außerdem befinden sich dort ein Zimmer, ein Bad und der großzügige Wohn- und Essbereich.
Lage
Am Spittelberg73655 Plüderhausen
Plüderhausen
Der aktuelle durchschnittliche Quadratmeterpreis beträgt 11,39 €/m² in Plüderhausen.
Mit Mietspiegel
Pluederhausen vergleichen
Was kostet dein Umzug?
Du planst einen Umzug? Finde jetzt die günstigste Umzugsfirma in deiner Region!
Umzugskosten berechnen Schütze dich vor Betrug!
Leiste keinerlei Zahlung im Vorraus!
Beachte unsere Sicherheitshinweise zum Thema Immobilienbetrug und lies, woran du solche Anzeigen erkennen kannst und wie du dich vor Betrügern schützt.
Anzeige melden Beachte unsere Sicherheitshinweise zum Thema Immobilienbetrug und lies, woran du solche Anzeigen erkennen kannst und wie du dich vor Betrügern schützt.
*Anzeige
Ähnliche Wohnungen bei ImmoScout24
Plüderhausen
- Miete
- 1.300 €
- Zimmer
- 4 Zi.
- Fläche
- 125 Zi.
Weitere Ergebnisse für:
Wohnungen
Plüderhausen;
Immobilien
Plüderhausen;
Haus mieten
Plüderhausen;
WG Zimmer
Plüderhausen;
Wohnung
Plüderhausen kaufen;
Haus kaufen
Plüderhausen;
Immobilienpreise
Plüderhausen Mietspiegel
Plüderhausen wohnungsboerse.net übernimmt keine Gewähr für von Dritten gemachte Angaben