
Etagenwohnung in Wickede (Ruhr)
Sanierte 3-Raum-Wohnung mit Balkon und Einbauküche in Wickede
auf der Karte ansehenUmzugskosten berechnen
- Kaltmiete
- 650 €
- Zimmer
- 3
- Fläche
- 70 m²
15 Aufrufe
Objekt-ID: 38708884
| Objekttyp: | Etagenwohnung |
| Zimmer: | 3 |
| Größe: | 70.00 m² |
| Etage: | 1 von 1 |
| Frei ab: | 1.1.2026 |
Preise & Kosten
| Kaltmiete: | 650 € |
| Nebenkosten: | 250 € |
| Gesamtmiete: |
900 € |
| Preis/m²: | 9,29 € |
| Mit Mietspiegel Wickede (Ruhr) vergleichen | |
| Kaution: | k.A. |
Immobilie
Balkon
Garten
Einbauküche
Keller
| Baujahr: | 1995 |
| Befeuerungsart: | Öl |
| Energieausweis: | Energieausweis in Vorbereitung |
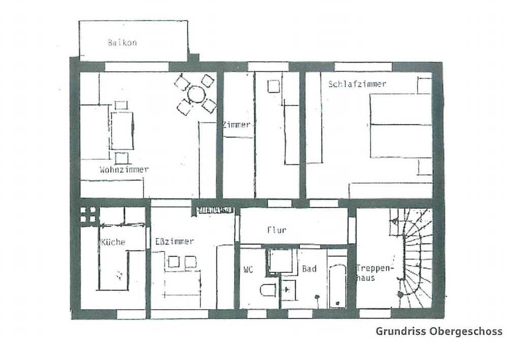
Objektbeschreibung
Diese freundliche und sanierte Wohnung liegt im ersten Stock. Sie kann zum 01.01.2026 bezogen werden. Zu der Wohnung zählen neben drei attraktiven Zimmern nicht nur ein Badezimmer, sondern auch ein separates Gäste-WC. Durch eine zurückliegende Modernisierung (2020) sind niedrige Energiekosten gewährleistet, ein aktueller Energieausweis liegt zur Besichtigung vor. Eine Besonderheit ist, dass es nicht nur einen Balkon gibt, sondern Sie auch den Garten am Haus zu Ihrer Erholung nutzen können. Außerdem gehört ein Keller zur Immobilie, der Ihnen ausreichend Stauraum bietet. Ihnen steht außerdem eine Einbauküche zur Verfügung.
ACHTUNG: Bitte um Verständnis, dass wir keine Besichtigung ohne eine positive Selbstauskunft durchführen werden.
ACHTUNG: Bitte um Verständnis, dass wir keine Besichtigung ohne eine positive Selbstauskunft durchführen werden.
Lage
58739 Wickede (Ruhr)Wickede (Ruhr)
Der aktuelle durchschnittliche Quadratmeterpreis beträgt 8,64 €/m² in Wickede (Ruhr).
Mit Mietspiegel
Wickede-Ruhr vergleichen
Was kostet dein Umzug?
Du planst einen Umzug? Finde jetzt die günstigste Umzugsfirma in deiner Region!
Umzugskosten berechnen Schütze dich vor Betrug!
Leiste keinerlei Zahlung im Vorraus!
Beachte unsere Sicherheitshinweise zum Thema Immobilienbetrug und lies, woran du solche Anzeigen erkennen kannst und wie du dich vor Betrügern schützt.
Anzeige melden Beachte unsere Sicherheitshinweise zum Thema Immobilienbetrug und lies, woran du solche Anzeigen erkennen kannst und wie du dich vor Betrügern schützt.
*Anzeige
Ähnliche Wohnungen bei ImmoScout24
Wickede (Ruhr)
- Miete
- 500 €
- Zimmer
- 3 Zi.
- Fläche
- 60 Zi.
Weitere Ergebnisse für:
Wohnungen
Wickede (Ruhr);
Immobilien
Wickede (Ruhr);
Haus mieten
Wickede (Ruhr);
WG Zimmer
Wickede (Ruhr);
Wohnung
Wickede (Ruhr) kaufen;
Haus kaufen
Wickede (Ruhr);
Immobilienpreise
Wickede (Ruhr) Mietspiegel
Wickede (Ruhr) wohnungsboerse.net übernimmt keine Gewähr für von Dritten gemachte Angaben