
Etagenwohnung in Bad Reichenhall
Gut geschnittene 3-Zimmer-Wohnung mit zwei Loggien in Bad Reichenhall
auf der Karte ansehenUmzugskosten berechnen
- Kaltmiete
- 875 €
- Zimmer
- 3
- Fläche
- 73.05 m²
8 Aufrufe
Objekt-ID: 38720807
Objekttyp: | Etagenwohnung |
Zimmer: | 3 |
Größe: | 73.05 m² |
Etage: | 2 von 4 |
Frei ab: | 1.11.2025 |
Preise & Kosten
Kaltmiete: | 875 € |
Nebenkosten: | 260 € |
Gesamtmiete: |
1.135 € |
Preis/m²: | 11,98 € |
Mit Mietspiegel Bad Reichenhall vergleichen | |
Kaution: | k.A. |
Immobilie
Balkon
Keller
Befeuerungsart: | Zentralheizung |
Energieausweis: | Verbrauchsausweis |
Endenergiebedarf: | 102,00 kWh/(m²*a) |
Energieeffizienzklasse: | D |
Objektbeschreibung
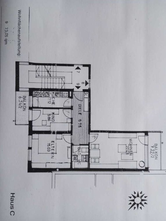
Diese gut geschnittene 3-Zimmer-Wohnung mit ca. 73 m² Wohnfläche befindet sich im 2. OG eines gepflegten Mehrfamilienhauses. Die unmöblierte Wohnung verfügt über eine Küche, zwei Schlafzimmer, Diele, Bad und Wohnzimmer. Die beiden modernen, großzügigen Loggien laden zum Entspannen ein.
Das Bad ist gefliest, in allen anderen Räumen sind helle Laminatfußböden verlegt. Sämtliche Türen und Fenster sind energetisch modernisiert. Zudem ist das Gebäude mit einer Solaranlage ausgestattet. Ein eigenes Kellerabteil bietet zusätzlichen Stauraum, ebenso ein Einbauschrank in der Diele.
Ein Wasch-, ein Trockenraum sowie ein Fahrradraum können mitbenutzt werden.
Die Wohnung ist ab dem 1. November 2025 verfügbar und soll idealerweise langfristig an Nichtraucher (Rauchverbot als Individualvereinbarung) vermietet werden. Haustiere sind nicht erlaubt.
Der TG-Stellplatz kann optional mit angemietet werden.
Das Bad ist gefliest, in allen anderen Räumen sind helle Laminatfußböden verlegt. Sämtliche Türen und Fenster sind energetisch modernisiert. Zudem ist das Gebäude mit einer Solaranlage ausgestattet. Ein eigenes Kellerabteil bietet zusätzlichen Stauraum, ebenso ein Einbauschrank in der Diele.
Ein Wasch-, ein Trockenraum sowie ein Fahrradraum können mitbenutzt werden.
Die Wohnung ist ab dem 1. November 2025 verfügbar und soll idealerweise langfristig an Nichtraucher (Rauchverbot als Individualvereinbarung) vermietet werden. Haustiere sind nicht erlaubt.
Der TG-Stellplatz kann optional mit angemietet werden.
Lage
Barbarossastraße83435 Bad Reichenhall
Bad Reichenhall
Der aktuelle durchschnittliche Quadratmeterpreis beträgt 12,99 €/m² in Bad Reichenhall.
Mit Mietspiegel
Bad-Reichenhall vergleichen
Was kostet dein Umzug?
Du planst einen Umzug? Finde jetzt die günstigste Umzugsfirma in deiner Region!
Umzugskosten berechnen Schütze dich vor Betrug!
Leiste keinerlei Zahlung im Vorraus!
Beachte unsere Sicherheitshinweise zum Thema Immobilienbetrug und lies, woran du solche Anzeigen erkennen kannst und wie du dich vor Betrügern schützt.
Anzeige melden Beachte unsere Sicherheitshinweise zum Thema Immobilienbetrug und lies, woran du solche Anzeigen erkennen kannst und wie du dich vor Betrügern schützt.
*Anzeige

Ähnliche Wohnungen bei ImmoScout24
Bad Reichenhall
- Miete
- 750 €
- Zimmer
- 3 Zi.
- Fläche
- 65 Zi.
Weitere Ergebnisse für:
Wohnungen
Bad Reichenhall;
Immobilien
Bad Reichenhall;
Haus mieten
Bad Reichenhall;
WG Zimmer
Bad Reichenhall;
Wohnung
Bad Reichenhall kaufen;
Haus kaufen
Bad Reichenhall;
Immobilienpreise
Bad Reichenhall Mietspiegel
Bad Reichenhall wohnungsboerse.net übernimmt keine Gewähr für von Dritten gemachte Angaben