
Hochparterre-Wohnung in Berlin-Dahlem
Provisionsfrei, Erstbezug nach Sanierung: Traumhafte, moderne 3-Zimmer-Wohnung am Messelpark
auf der Karte ansehenUmzugskosten berechnen
- Kaltmiete
- 1.988,78 €
- Zimmer
- 3
- Fläche
- 88.39 m²
120 Aufrufe
Objekt-ID: 38754944
| Objekttyp: | Hochparterre-Wohnung |
| Zimmer: | 3 |
| Größe: | 88.39 m² |
| Frei ab: | nach Vereinbarung |
Preise & Kosten
| Kaltmiete: | 1.988,78 € |
| Nebenkosten: | 366,82 € |
| Gesamtmiete: |
2.355,60 € |
| Preis/m²: | 22,50 € |
| Mit Mietspiegel Berlin vergleichen | |
| Kaution: | k.A. |
Immobilie
Balkon
Garten
Einbauküche
Keller
Tiere erlaubt
| Befeuerungsart: | Gas |
| Energieausweis: | Energieausweis in Vorbereitung |
Objektbeschreibung
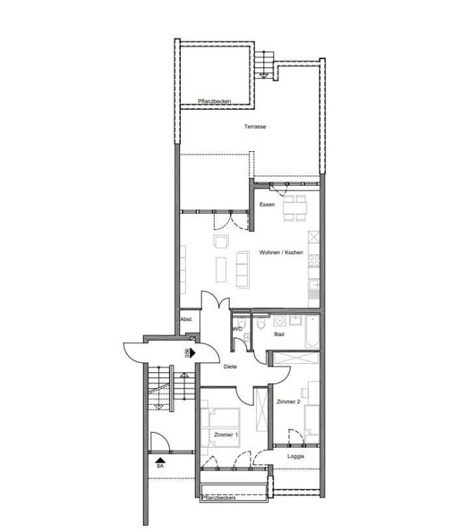
Die ansprechend geschnittene Wohnung befindet sich im Mezzaningeschoss eines gepflegten, dreigeschossigen Mehrfamilienhauses in einer ruhigen Wohn- und Parkanlage. Auf einer Wohnfläche von ca. 88 m² bietet sie ein modernes, komfortables Zuhause mit drei gut proportionierten Zimmern, einer hochwertig ausgestatteten Einbauküche, einem modernen Badezimmer sowie einem separaten Gäste-WC.
Die Wohnung wird derzeit umfassend kernsaniert – inklusive neuer Elektrik, Bodenbeläge, Türen, Sanitärinstallationen und einer komplett neuen Einbauküche – und präsentiert sich nach Abschluss der Arbeiten in erstklassigem, neuwertigem Zustand.
Die moderne Einbauküche wird mit hochwertigen Geräten ausgestattet, darunter ein Backofen mit Cerankochfeld, Dunstabzugshaube, großer Kühlschrank mit Gefrierfach sowie ein Geschirrspüler. Die angrenzende Esszone fügt sich harmonisch in den offenen Wohnbereich ein und schafft ein helles, kommunikatives Ambiente.
Das geräumige Wohnzimmer überzeugt durch seine großen Fensterflächen und den Zugang zur sonnigen West-Terrasse, die zu entspannten Stunden im Freien einlädt. Zwei weitere, nahezu gleich große Zimmer bieten flexible Nutzungsmöglichkeiten als Schlaf-, Arbeits- oder Kinderzimmer. Beide Räume verfügen zudem über einen direkten Zugang zur Terrasse in Ostausrichtung.
Das Badezimmer erhält eine moderne Ausstattung mit einer Badewannen-/Duschkombination, einem großen Waschtisch und stilvollen LED-Downlights. Ergänzt wird das Raumangebot durch ein separates Gäste-WC sowie eine praktische Abstellkammer im Flur, die zusätzlichen Stauraum bietet.
Zur Wohnung gehört ein großzügiger Kellerraum mit ca. 24 m² Nutzfläche, der vielseitig verwendet werden kann – ideal etwa als Hobby-, Lager- oder Vorratsraum.
Ein Tiefgaragenstellplatz kann auf Wunsch zusätzlich angemietet werden. Die Tiefgarage ist komfortabel über ein elektrisch betriebenes Rolltor zugänglich.
Insgesamt vereint diese Wohnung klassische Wohnqualität, moderne Ausstattung und ruhige Lage zu einem besonders attraktiven Gesamtpaket.
Die Wohnung wird derzeit umfassend kernsaniert – inklusive neuer Elektrik, Bodenbeläge, Türen, Sanitärinstallationen und einer komplett neuen Einbauküche – und präsentiert sich nach Abschluss der Arbeiten in erstklassigem, neuwertigem Zustand.
Die moderne Einbauküche wird mit hochwertigen Geräten ausgestattet, darunter ein Backofen mit Cerankochfeld, Dunstabzugshaube, großer Kühlschrank mit Gefrierfach sowie ein Geschirrspüler. Die angrenzende Esszone fügt sich harmonisch in den offenen Wohnbereich ein und schafft ein helles, kommunikatives Ambiente.
Das geräumige Wohnzimmer überzeugt durch seine großen Fensterflächen und den Zugang zur sonnigen West-Terrasse, die zu entspannten Stunden im Freien einlädt. Zwei weitere, nahezu gleich große Zimmer bieten flexible Nutzungsmöglichkeiten als Schlaf-, Arbeits- oder Kinderzimmer. Beide Räume verfügen zudem über einen direkten Zugang zur Terrasse in Ostausrichtung.
Das Badezimmer erhält eine moderne Ausstattung mit einer Badewannen-/Duschkombination, einem großen Waschtisch und stilvollen LED-Downlights. Ergänzt wird das Raumangebot durch ein separates Gäste-WC sowie eine praktische Abstellkammer im Flur, die zusätzlichen Stauraum bietet.
Zur Wohnung gehört ein großzügiger Kellerraum mit ca. 24 m² Nutzfläche, der vielseitig verwendet werden kann – ideal etwa als Hobby-, Lager- oder Vorratsraum.
Ein Tiefgaragenstellplatz kann auf Wunsch zusätzlich angemietet werden. Die Tiefgarage ist komfortabel über ein elektrisch betriebenes Rolltor zugänglich.
Insgesamt vereint diese Wohnung klassische Wohnqualität, moderne Ausstattung und ruhige Lage zu einem besonders attraktiven Gesamtpaket.
Lage
Dohnenstieg14195 Berlin
Berlin Dahlem
Der aktuelle durchschnittliche Quadratmeterpreis beträgt 18,76 €/m² in Berlin - Dahlem. Der durchschnittliche Quadratmeterpreis in Berlin liegt derzeit bei 20,02 €/m².
Mit Mietspiegel
Berlin vergleichen
Was kostet dein Umzug?
Du planst einen Umzug? Finde jetzt die günstigste Umzugsfirma in deiner Region!
Umzugskosten berechnen Schütze dich vor Betrug!
Leiste keinerlei Zahlung im Vorraus!
Beachte unsere Sicherheitshinweise zum Thema Immobilienbetrug und lies, woran du solche Anzeigen erkennen kannst und wie du dich vor Betrügern schützt.
Anzeige melden Beachte unsere Sicherheitshinweise zum Thema Immobilienbetrug und lies, woran du solche Anzeigen erkennen kannst und wie du dich vor Betrügern schützt.
*Anzeige
Ähnliche Wohnungen bei ImmoScout24
Berlin-Dahlem
- Miete
- 1.850 €
- Zimmer
- 3 Zi.
- Fläche
- 80 Zi.
Anbieter
Weitere Ergebnisse für:
Wohnungen
Berlin;
Immobilien
Berlin;
Haus mieten
Berlin;
WG Zimmer
Berlin;
Wohnung
Berlin kaufen;
Haus kaufen
Berlin;
Immobilienpreise
Berlin Mietspiegel
Berlin wohnungsboerse.net übernimmt keine Gewähr für von Dritten gemachte Angaben